SECOND YEAR UNDERGRADUATE
Anjali Dawani—Minto Sustainability Award
![]()
Anjali Dawani—Minto Sustainability Award
About the Award
This award is for a student in architectural science for an outstanding studio project with a focus on sustainable design.
  
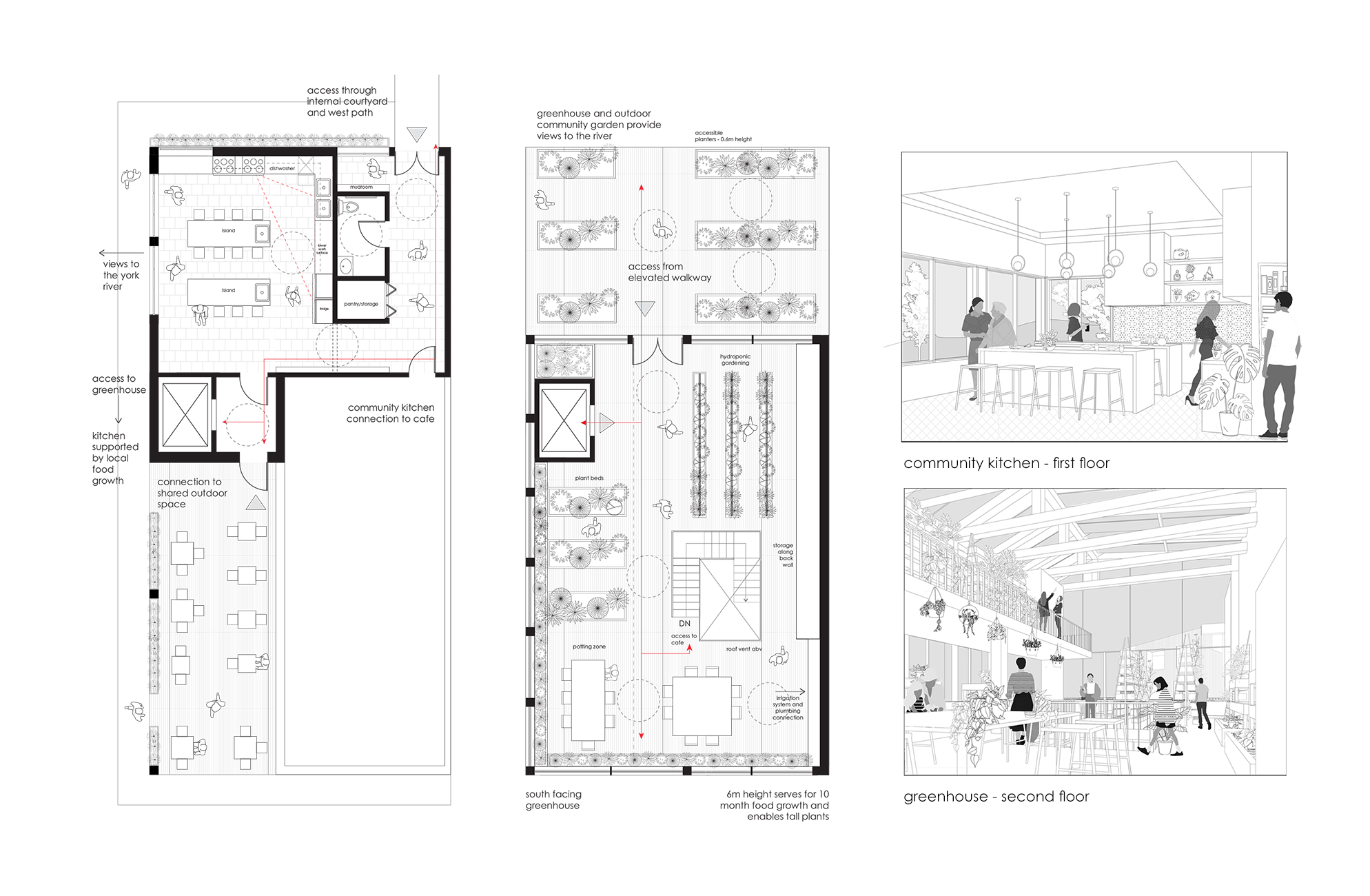
Block'd Housing is a co-op located in the small town of Bancroft, Ontario. The project aims to form a connection between the river and surrounding conditions, while emphasizing community engagement. The mass addresses domesticity through its materiality and fragmented form, while the open spaces promote a sense of community. The housing is unified by a central courtyard and greenhouse, which serve the desires of the neighbourhood.
This award is for a student in architectural science for an outstanding studio project with a focus on sustainable design.
Block'd Housing is a co-op located in the small town of Bancroft, Ontario. The project aims to form a connection between the river and surrounding conditions, while emphasizing community engagement. The mass addresses domesticity through its materiality and fragmented form, while the open spaces promote a sense of community. The housing is unified by a central courtyard and greenhouse, which serve the desires of the neighbourhood.
 
 
 
 
 
 
 
 
 
