UNDERGRADUATE
Cason Micallef—Hanscomb Award
![]()
Cason Micallef—Hanscomb Award

About the Award
For the student with the best average in ASC 522 and ASC 622.
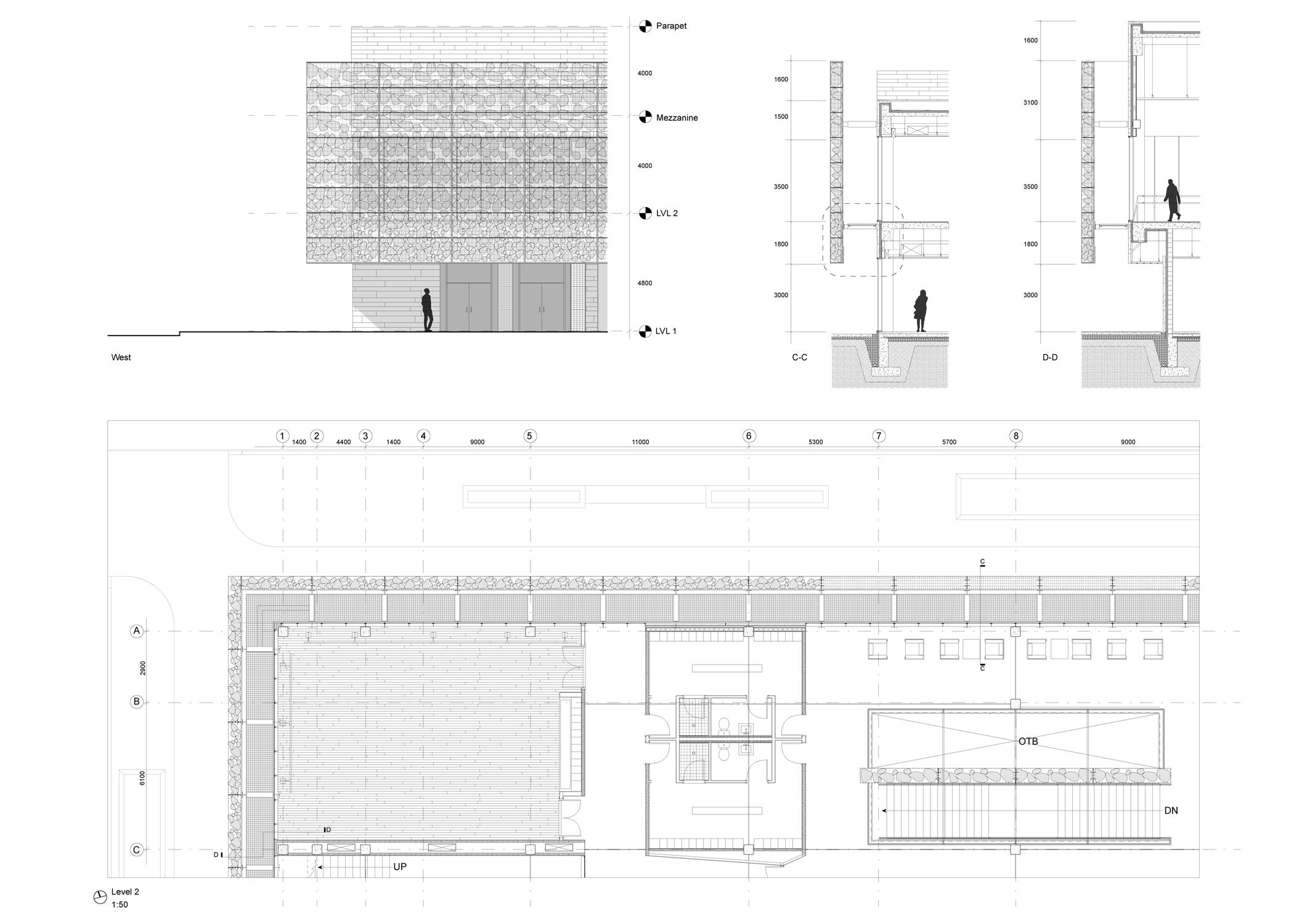
Connectivity as an underlying value to the public is the forefront of a civic space. Inducing a feeling of vast weight on the street lifted above a clear plane enforces the atmospheric qualities of mystery. As such, a cave can impose movement and direction, softly embedding itself within the earth. These movements allow an ability to blend into the landscape with a hard rough exterior that cuts dramatically through the entire building. Then, the distinctive planes are able to dictate and suggest paths of occupant travel, creating a realm that is both connected to the surrounding context, and isolated in places of privacy and relaxation.
A building that addresses the public needs to be both monumental and suggestive to its occupants. A place that can be viewed as merely an aquatic center may become a place of gathering, sentiment, relaxation, community, friendships, and new beginnings. Thus, isolation and connection instinctively carve the paths within the building’s axis, pulling people from the street within and around to experience the design as a context that feels welcoming and permanent to its users. The building becomes of great importance through the smallest of details, from how a wall meets the ground, to its overall movements of its surrounding context, and how it stitches the urban landscape together within the scale of a human.
For the student with the best average in ASC 522 and ASC 622.
Connectivity as an underlying value to the public is the forefront of a civic space. Inducing a feeling of vast weight on the street lifted above a clear plane enforces the atmospheric qualities of mystery. As such, a cave can impose movement and direction, softly embedding itself within the earth. These movements allow an ability to blend into the landscape with a hard rough exterior that cuts dramatically through the entire building. Then, the distinctive planes are able to dictate and suggest paths of occupant travel, creating a realm that is both connected to the surrounding context, and isolated in places of privacy and relaxation.
A building that addresses the public needs to be both monumental and suggestive to its occupants. A place that can be viewed as merely an aquatic center may become a place of gathering, sentiment, relaxation, community, friendships, and new beginnings. Thus, isolation and connection instinctively carve the paths within the building’s axis, pulling people from the street within and around to experience the design as a context that feels welcoming and permanent to its users. The building becomes of great importance through the smallest of details, from how a wall meets the ground, to its overall movements of its surrounding context, and how it stitches the urban landscape together within the scale of a human.









