DANIELA DIAZ
ATV Museum
![]()
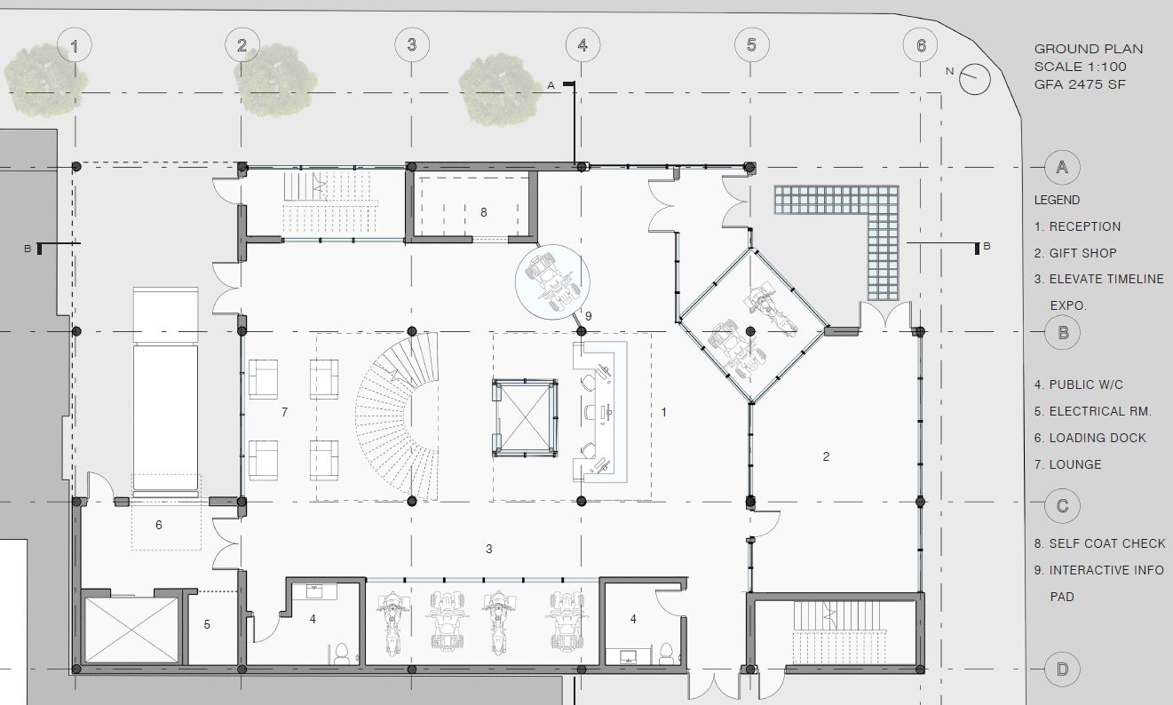
The Bombardier ATV museum is located at the heart of the downtown core. The main intersections being Wellington St.E, Church St, and Front street, provide a lot of vehicle and pedestrian circulation. This is a key location for the museum to showcase their ATV since the entire block is commercialized. The museum showcases the evolution of the ATVs and bikes through history and interactive videos. This museum also aims to target all types of visitors; therefore, it was designed to be a creative and interactive space. Visitors get a chance to fulfil the Bombardier motto of exploring their creativity, by designing and 3D printing their own bikes. After being inspired, what better way than to test out the bombardier bikes! There is a track on the fifth floor when minibikes can be used.
ATV Museum
The Bombardier ATV museum is located at the heart of the downtown core. The main intersections being Wellington St.E, Church St, and Front street, provide a lot of vehicle and pedestrian circulation. This is a key location for the museum to showcase their ATV since the entire block is commercialized. The museum showcases the evolution of the ATVs and bikes through history and interactive videos. This museum also aims to target all types of visitors; therefore, it was designed to be a creative and interactive space. Visitors get a chance to fulfil the Bombardier motto of exploring their creativity, by designing and 3D printing their own bikes. After being inspired, what better way than to test out the bombardier bikes! There is a track on the fifth floor when minibikes can be used.