Hajer Dawood, Dea Permana, Nohemi Lopez Taylor, Eric Bowen
Carbon Positive Affordable Housing: WM Housing
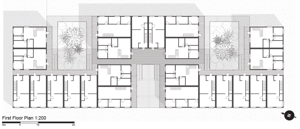
Taking inspiration from vernacular Indian design of stilt houses, this project aims to provide modular and affordable communal housing to those in flood prone areas. In the case of this site in Mumbai, the proposal is located next to a fishing village, only 400 meters from the shore. Moreover, India is experiencing extreme weather due to climate change. The stilts and elevated ground floor acts as a method of resilience to tackle the flooding problem. The courtyard behaves like a sponge during a rainstorm and a park on normal days. In this location the design has been organized in a more spacious pattern, however, the units may be rearranged for other sites and cities to be more compact. Manually operable windows and an open plan in between the kitchen and living room in each unit were designed to increase the airflow through the space, which helps to dehumidify and control the temperature. Solar energy collection and rainwater harvesting, as well as locally sourced material such as bamboo, are key elements in keeping the building’s carbon net positive. Additionally, these same features help to reduce the living cost of the residence, for instance collecting rainwater is cheaper than buying drinkable water.
Carbon Positive Affordable Housing: WM Housing
Taking inspiration from vernacular Indian design of stilt houses, this project aims to provide modular and affordable communal housing to those in flood prone areas. In the case of this site in Mumbai, the proposal is located next to a fishing village, only 400 meters from the shore. Moreover, India is experiencing extreme weather due to climate change. The stilts and elevated ground floor acts as a method of resilience to tackle the flooding problem. The courtyard behaves like a sponge during a rainstorm and a park on normal days. In this location the design has been organized in a more spacious pattern, however, the units may be rearranged for other sites and cities to be more compact. Manually operable windows and an open plan in between the kitchen and living room in each unit were designed to increase the airflow through the space, which helps to dehumidify and control the temperature. Solar energy collection and rainwater harvesting, as well as locally sourced material such as bamboo, are key elements in keeping the building’s carbon net positive. Additionally, these same features help to reduce the living cost of the residence, for instance collecting rainwater is cheaper than buying drinkable water.






