Lena Ma
Hashimoto House
The client for the light house is Mana Hashimoto, who is a blind contemporary dancer and choreographer. Born in Tokyo, Japan, Hashimoto received discrimination due to her visual impairment, as disabilities are often seen as shameful in the country. In response to this negative stigma, this light house is situated in Tokyo and consists of her residential quarters and dance studio for blind students.
Due to the unique circumstances of the client and program, the project uses light as an invisible manifestation to expose the senses, to guide navigation, and to track time through the curation of architecture. This is supported by the use of thermal and tactile qualities and unique forms of the building.
It is hoped that this exploration of design for the blind increases the scope and sensitivity of architecture through our non-visual senses to enhance our relationship with light and perception to the environment.
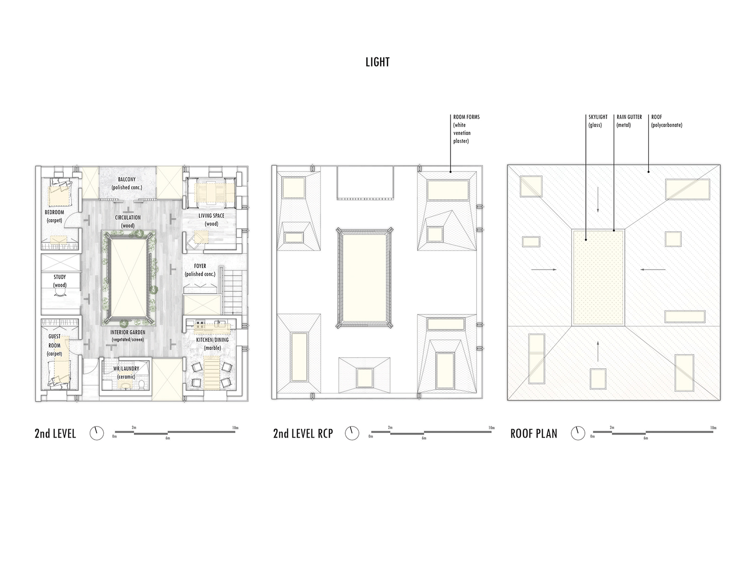
Hashimoto House
The client for the light house is Mana Hashimoto, who is a blind contemporary dancer and choreographer. Born in Tokyo, Japan, Hashimoto received discrimination due to her visual impairment, as disabilities are often seen as shameful in the country. In response to this negative stigma, this light house is situated in Tokyo and consists of her residential quarters and dance studio for blind students.
Due to the unique circumstances of the client and program, the project uses light as an invisible manifestation to expose the senses, to guide navigation, and to track time through the curation of architecture. This is supported by the use of thermal and tactile qualities and unique forms of the building.
It is hoped that this exploration of design for the blind increases the scope and sensitivity of architecture through our non-visual senses to enhance our relationship with light and perception to the environment.


 
 

 
 


