MIN JUNG KIM
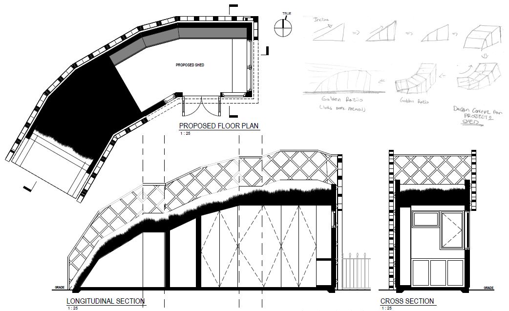
Garden Potting and
Storage Shed





The project is a design for a small garden potting shed/storage space for a community garden. This is to be located in Allan Gardens, Toronto – for the expansion of Edible Allan Gardens, a vegetable, herb and fruit garden for the community. The project should demonstrate an understanding of wood construction and how to design and draw a very small structure.



Toronto Metropolitan Department of  Architectural Science Toronto, CA.