
MUHAMMAD ALAM & KRISTEN SARMIENTO
Parkdale Idea Exchange
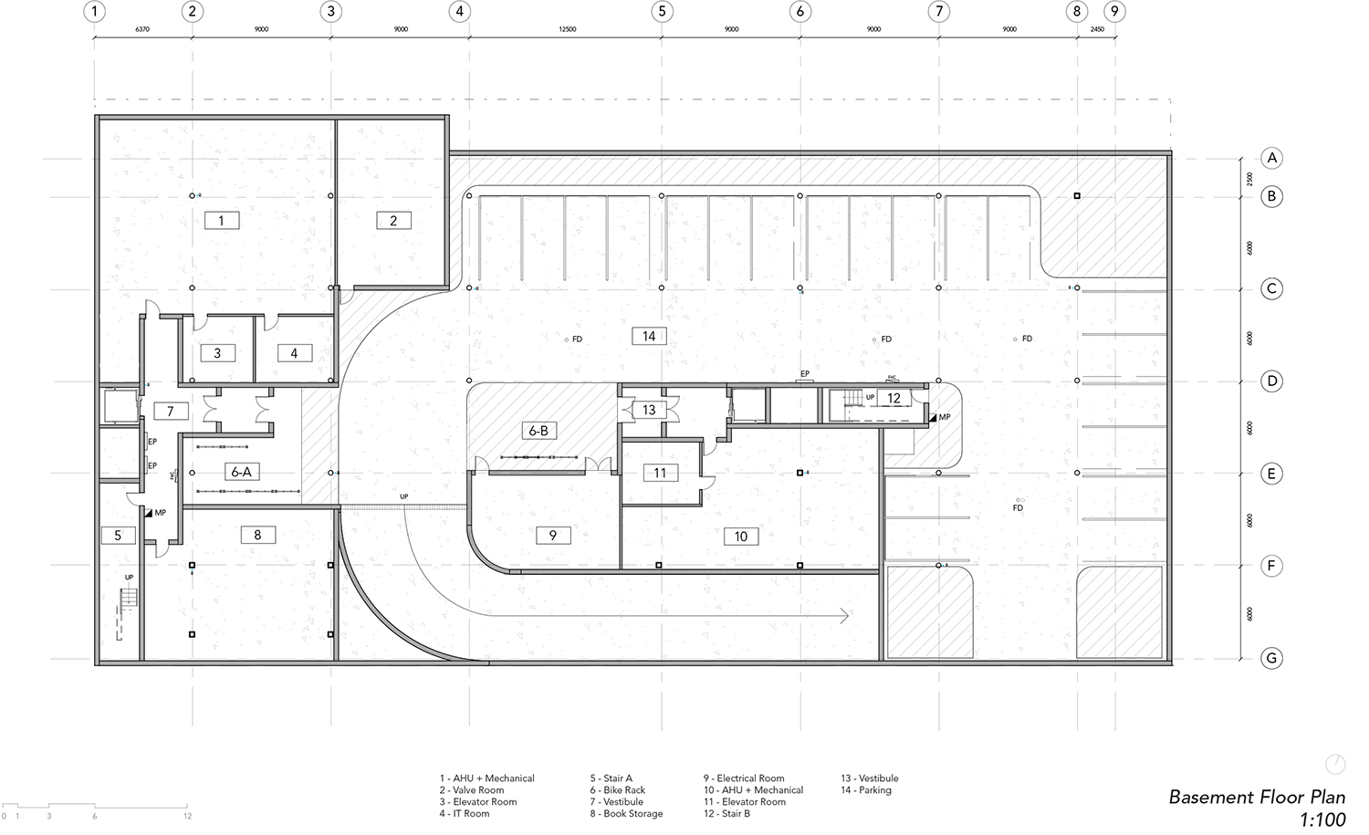
This project is a continuation of the previous semester's Integration Studio (ASC520), in which the studio project is taken further in depth. It is brought to Design Development stage, in which technical aspects are integrated, such as structural and mechanical systems, building code requirements, and envelope detail conditions. These systems are the driving mechanisms for the further development and innovations of the design.
Parkdale Idea Exchange
This project is a continuation of the previous semester's Integration Studio (ASC520), in which the studio project is taken further in depth. It is brought to Design Development stage, in which technical aspects are integrated, such as structural and mechanical systems, building code requirements, and envelope detail conditions. These systems are the driving mechanisms for the further development and innovations of the design.
 
 
 
 
 
 
 
 
 
 
 
