GENERAL UNDERGRADUATE (OPEN TO ALL YEARS)
Noah Spivak—Creative Infill Award
![]()
Noah Spivak—Creative Infill Award

About the Award
This award will have demonstrated, through submission of a studio project, a high level of design merit that incorporates creative, thoughtful, and sustainable strategies in an urban infill project.
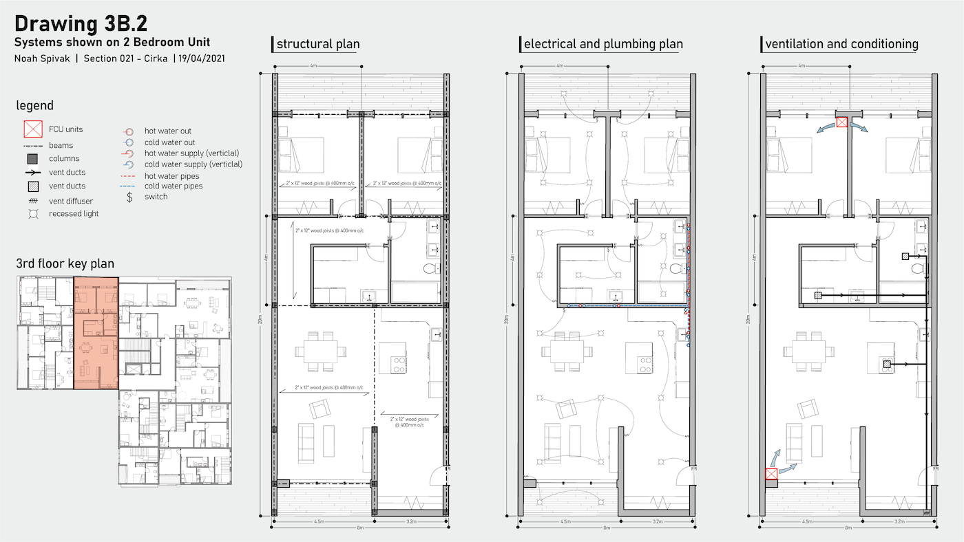
H x S Residences is a low-rise apartment building planned for Bancroft, Ontario. The design’s interlocking unit configurations create a unique floor plan for each unit, to appeal to a variety of residents of the town. This configuration also minimizes circulation space creating an efficient layout. The Building has a retail frontage on both Hastings and Station Street as well as a community library and green space, open for all the residents of Bancroft to enjoy.
This award will have demonstrated, through submission of a studio project, a high level of design merit that incorporates creative, thoughtful, and sustainable strategies in an urban infill project.
H x S Residences is a low-rise apartment building planned for Bancroft, Ontario. The design’s interlocking unit configurations create a unique floor plan for each unit, to appeal to a variety of residents of the town. This configuration also minimizes circulation space creating an efficient layout. The Building has a retail frontage on both Hastings and Station Street as well as a community library and green space, open for all the residents of Bancroft to enjoy.









