OLIVIA NUNN
Martin Road Estate Winery: Extension
	Martin Road Estate Winery: Extension
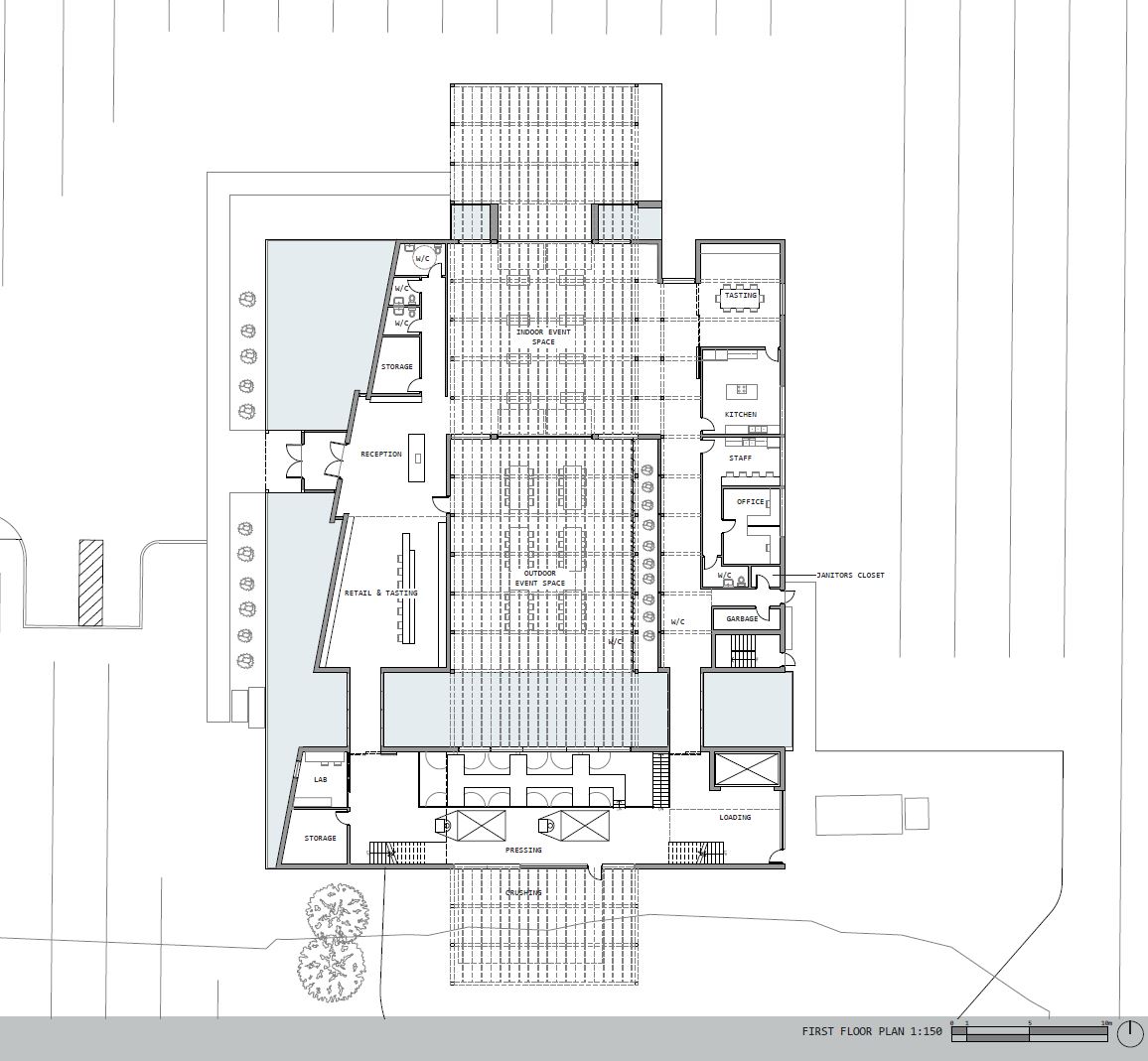
The Martin Road Estate Winery is
seamless with the landscape of the vineyards. The approach forms a bold
transition as there is feeling of unknown for the user for what is beyond the
wall. Crossing over the water way creates a feeling of bringing the site into
the building’s space. Once in the building the idea of bringing the site to
life within the over arching structure is apparent. The operable doors create
an opening from the site, through the event space, to an open courtyard,
through the production space and out to continue the site on the opposing side.
This accentuating void allows for a formal connectivity of the building to the
site. This connection is heightened through the linear structure that mimics
the vine formation on site and the elongating barrel cellar below. The wine
process, human experience and accentuated site features are all connected to
provide an all-encompassing journey through the space.
 
