About the Award
To recognize students who demonstrate emerging talent in conveying design through 3D architectural visualization.
YEAR 3 & 4
Paulina Panus—Norm Li Award
![]()
Paulina Panus—Norm Li Award

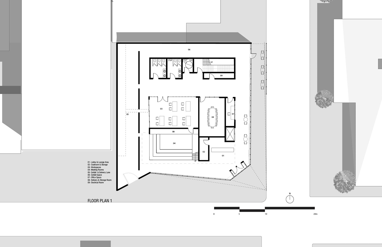
The
Architecture Centre is a structure intended to connect people with design,
merging the two elements within its space. The glass façade works as a screen,
projecting what is taking place within the structure. It enables the movement
and atmosphere to spill out, on to the street and for the dynamics of the
context to flow into the rooms, changing the appearance of the space. The
different times of day, types of occasions, seasons will influence the
connection of the building with the individual and their overall experience. Varying
transparencies on the inside create flexible barriers, between the public and
the private permitting the connection between people and all the spaces, giving
an insight of what is taking place and allowing for workshops and workspaces to
become exhibits of their own. The grander experienced within the voids, in
comparison to the scale of the human, feels as if the building has combined the
individual with its parts, where they are one of many fragments that generate
its being and form a union. The Architecture Centre’s numerous layers of
multiple elements, allow for the creation of different perspectives, enabling a
different experience for every individual, within its spaces.
The
following images are intended to demonstrate the effects of light on
architecture. The glass façade works as a mechanism that remains opaque from
the light during the day, reflecting the dynamic of the street. At night, the
façade projects what is taking place within the structure, enabling the movements
and atmosphere to spill out, on to the street. There is no restraint on
openings since the building is one massive glass shell. The interior view
functions in the same way, where there light affects how the interior space is
perceived, by constraining the light to only enter through certain openings,
highlighting the items on display, drawing the attention towards them.
The visualizations were approached through the careful considerations of arrangement of the views and choice in colours to depict the qualities of light. The design was completed by modelling the massing of the building in Rhinoceros. All the main components such as the structure, walls, materials, were designed to be able to test lighting within the spaces and understand this concept. Once modelled, the building was rendered with the chosen views and taken into Photoshop for postproduction, where context, people, and other design elements were added to create more active spaces.
The visualizations were approached through the careful considerations of arrangement of the views and choice in colours to depict the qualities of light. The design was completed by modelling the massing of the building in Rhinoceros. All the main components such as the structure, walls, materials, were designed to be able to test lighting within the spaces and understand this concept. Once modelled, the building was rendered with the chosen views and taken into Photoshop for postproduction, where context, people, and other design elements were added to create more active spaces.






