THIRD YEAR UNDERGRADUATE
Rachel Kim—Matthew and Anne Tomljenovic Awards
![]()
Rachel Kim—Matthew and Anne Tomljenovic Awards

About the Award
Matthew and Anne Tomljenovic Awards:
Highest CGPA average among 2nd year Architecture courses.
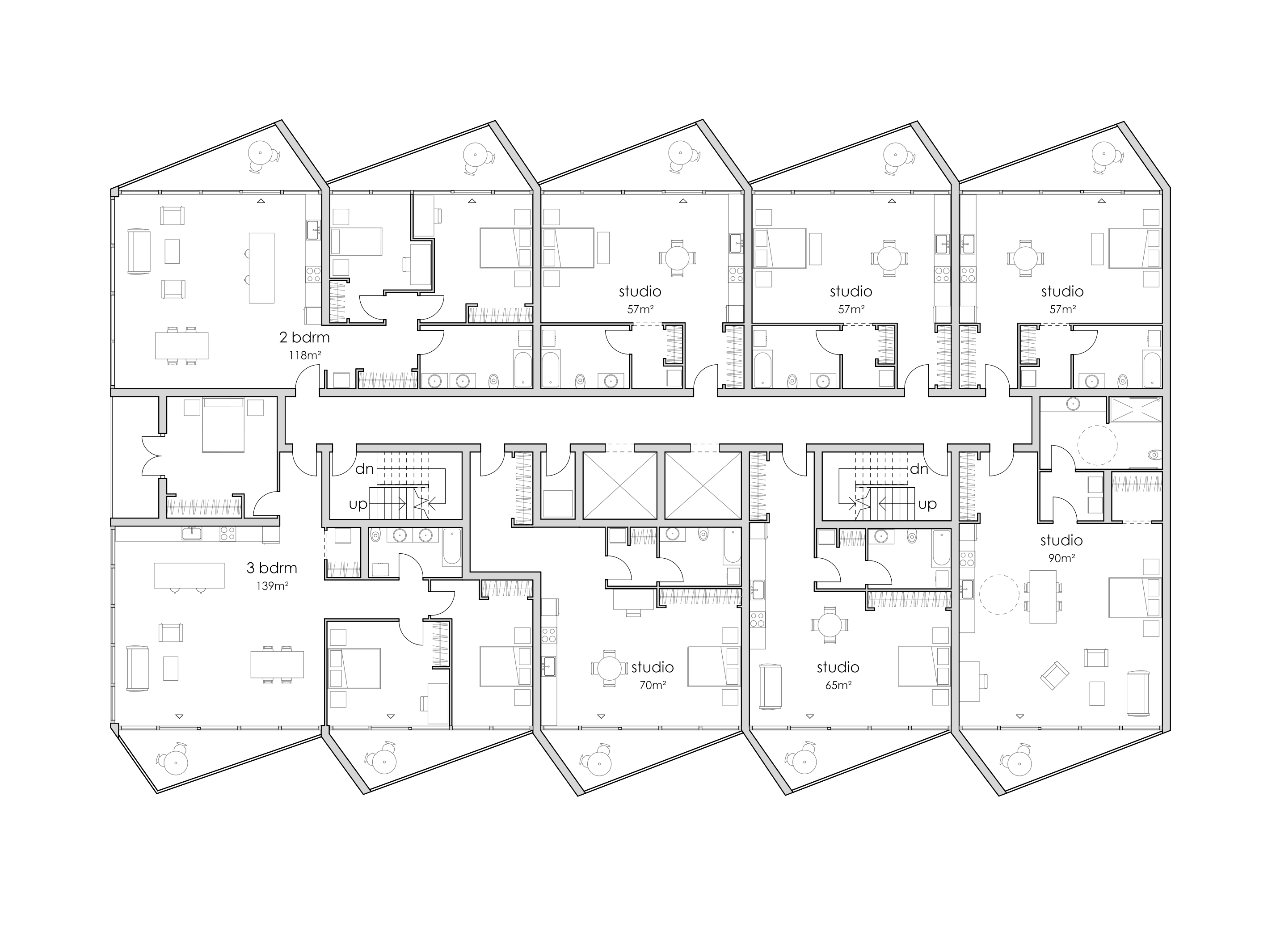
The Sherbourne midrise was designed to create a comfortable living experience that encourages a harmonious balance between communal spaces and private retreats. Integrated with its surroundings, the building is oriented to draw residents' attention towards Allan Gardens, with units positioned to the green space. This design choice enhances the views from the residences, offering a connection to the park.
The Sherbourne midrise responds to the evolving needs of urban living, aligning with the ideas explored in the modern movement's approach to collective housing. Designed with a focus on balancing communal spaces and private retreats, it embraces a harmonious relationship with its environment by orienting to connect residents with the natural landscape of Allan Gardens, fostering a sense of community and wellbeing.
In contrast to the historical separation of uses—where living was isolated from working—the Sherbourne midrise embodies a modern approach that integrates these functions. The thoughtful placement of units towards the park enhances views while promoting a lifestyle that encourages engagement with both the urban fabric and the natural world.
The project’s focus aligns with the shift towards more humane, compact, and socially engaging communities. The Sherbourne midrise, through its blend of private and communal spaces, exemplifies how contemporary housing can contribute to creating more livable and equitable cities. By reimagining urban living in this way, the project reflects the course’s investigation into urban housing typologies and their capacity to shape the future of our cities.
Matthew and Anne Tomljenovic Awards:
Highest CGPA average among 2nd year Architecture courses.
The Sherbourne midrise was designed to create a comfortable living experience that encourages a harmonious balance between communal spaces and private retreats. Integrated with its surroundings, the building is oriented to draw residents' attention towards Allan Gardens, with units positioned to the green space. This design choice enhances the views from the residences, offering a connection to the park.
The Sherbourne midrise responds to the evolving needs of urban living, aligning with the ideas explored in the modern movement's approach to collective housing. Designed with a focus on balancing communal spaces and private retreats, it embraces a harmonious relationship with its environment by orienting to connect residents with the natural landscape of Allan Gardens, fostering a sense of community and wellbeing.
In contrast to the historical separation of uses—where living was isolated from working—the Sherbourne midrise embodies a modern approach that integrates these functions. The thoughtful placement of units towards the park enhances views while promoting a lifestyle that encourages engagement with both the urban fabric and the natural world.
The project’s focus aligns with the shift towards more humane, compact, and socially engaging communities. The Sherbourne midrise, through its blend of private and communal spaces, exemplifies how contemporary housing can contribute to creating more livable and equitable cities. By reimagining urban living in this way, the project reflects the course’s investigation into urban housing typologies and their capacity to shape the future of our cities.




