SECOND YEAR UNDERGRADUATE
Renee Trajano—Ledcor Architecture Scholarship in Honour of Stewart Crawford
![]()
Renee Trajano—Ledcor Architecture Scholarship in Honour of Stewart Crawford

About the Award
Ledcor Architecture Scholarship in Honour of Stewart Crawford:
For overall academic excellence and excellence in technical courses in first year.
High Park
As Toronto’s largest public park, High Park is a beloved location for Torontonians and Canadians alike. Its rich history began far before the land’s establishment as a public park, donated by John and Jemima Howard in 1873. This land was used as a rest point for traders, used by indigenous peoples for thousands of years. Their history and practices continue to be seen and acknowledged through the bent “marker” trees that occur throughout the park and current events, including the prescribed burns of the park’s oak savannah and more.
The abundance of wildlife in High Park is a stark contrast to the wildlife in Toronto’s urban built context surrounding it. High Park’s numerous creeks, vegetation species, mammals, reptiles, and bird species display its importance as a protected environment in Toronto. The park features many programs, attracting a diverse range of visitors, including eateries, greenhouses, playgrounds, a zoo, and hiking trails.
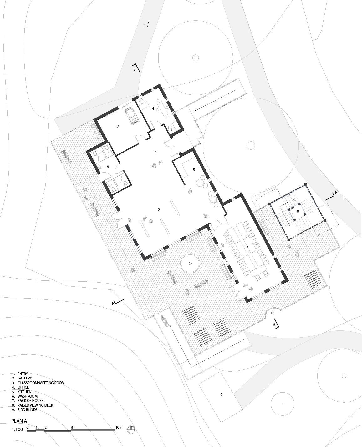
The Taiaiako’n High Park Bird Centre and Observatory project works to support bird protection and education as a response to the threat of climate change and habitat loss of the birds of High Park. As both an educational and recreational space, this observatory promotes and educates Toronto’s community on bird watching, bird species, bird-friendly architecture, and the significance of High Park’s diverse and rich ecosystem.
Rhythm of Nature
Under the guidance of studio instructor Monica Hutton in the Winter 2025 semester, the studio explored relationships between the birds, trees, biodiversity, and program on this High Park site. ‘The Rhythm of Nature’ began by exploring and investigating one of High Park’s native species, the hairy woodpecker. This bird is adaptive and resourceful, known for creating nests and laying their eggs within dead trees. Hairy woodpeckers display the relationship between life and death within nature. Dead trees hold immense capacities for life, allowing for other species to flourish. Translating this connection to architecture is seen in ‘The Rhythm of Nature’. Placing galleries and learning spaces adjacent to the site’s dead trees creates conversation and observation of the flourishing ecosystem of a dead tree. The facade, made from charred wood and a green roof, further symbolizes the connection between life and death.
In Gratitude
Being a part of the Department of Architectural Science has expanded my knowledge of architecture, design processes, and my worldview as a whole. Coming to the DAS campus in downtown Toronto has allowed me to immerse myself into the city’s diverse architecture. Exploring, learning, and visiting Toronto’s buildings has helped me understand content learned in classes, seeing concepts, and materials used in real–world contexts.I am honoured to be recognized for this award, and I am thankful for my peers who have motivated, inspired, and encouraged me along the way. Their constant support allowed me to develop skills and knowledge in technical courses. I am also appreciative of Dr. Javeriya Hasan as our Structures I professor. She ensured we had additional resources to assist our understanding, gave us hands on assignments, and helped us understand the importance of structural considerations within our own design projects.
Ledcor Architecture Scholarship in Honour of Stewart Crawford:
For overall academic excellence and excellence in technical courses in first year.
High Park
As Toronto’s largest public park, High Park is a beloved location for Torontonians and Canadians alike. Its rich history began far before the land’s establishment as a public park, donated by John and Jemima Howard in 1873. This land was used as a rest point for traders, used by indigenous peoples for thousands of years. Their history and practices continue to be seen and acknowledged through the bent “marker” trees that occur throughout the park and current events, including the prescribed burns of the park’s oak savannah and more.
The abundance of wildlife in High Park is a stark contrast to the wildlife in Toronto’s urban built context surrounding it. High Park’s numerous creeks, vegetation species, mammals, reptiles, and bird species display its importance as a protected environment in Toronto. The park features many programs, attracting a diverse range of visitors, including eateries, greenhouses, playgrounds, a zoo, and hiking trails.
The Taiaiako’n High Park Bird Centre and Observatory project works to support bird protection and education as a response to the threat of climate change and habitat loss of the birds of High Park. As both an educational and recreational space, this observatory promotes and educates Toronto’s community on bird watching, bird species, bird-friendly architecture, and the significance of High Park’s diverse and rich ecosystem.
Rhythm of Nature
Under the guidance of studio instructor Monica Hutton in the Winter 2025 semester, the studio explored relationships between the birds, trees, biodiversity, and program on this High Park site. ‘The Rhythm of Nature’ began by exploring and investigating one of High Park’s native species, the hairy woodpecker. This bird is adaptive and resourceful, known for creating nests and laying their eggs within dead trees. Hairy woodpeckers display the relationship between life and death within nature. Dead trees hold immense capacities for life, allowing for other species to flourish. Translating this connection to architecture is seen in ‘The Rhythm of Nature’. Placing galleries and learning spaces adjacent to the site’s dead trees creates conversation and observation of the flourishing ecosystem of a dead tree. The facade, made from charred wood and a green roof, further symbolizes the connection between life and death.
In Gratitude
Being a part of the Department of Architectural Science has expanded my knowledge of architecture, design processes, and my worldview as a whole. Coming to the DAS campus in downtown Toronto has allowed me to immerse myself into the city’s diverse architecture. Exploring, learning, and visiting Toronto’s buildings has helped me understand content learned in classes, seeing concepts, and materials used in real–world contexts.I am honoured to be recognized for this award, and I am thankful for my peers who have motivated, inspired, and encouraged me along the way. Their constant support allowed me to develop skills and knowledge in technical courses. I am also appreciative of Dr. Javeriya Hasan as our Structures I professor. She ensured we had additional resources to assist our understanding, gave us hands on assignments, and helped us understand the importance of structural considerations within our own design projects.