2021 Year End Show
Ryerson’s Department of Architectural Science encourages its students to test boundaries, explore new possibilities, and apply their skill to prevailing issues present within their evolving surroundings. Our second virtual Year End Show presents the culmination of the 2020/21 academic term, showcasing the impressive and cutting-edge works of our top students in all four years of study and at the graduate level.
2021 Year End Show Sponsors:
AZURE
Montgomery Sisam
Pella Architectural Solutions
RAW Design
Baldassarra Architects
All Projects ︎︎︎
2021 Year End Show
Ryerson’s Department of Architectural Science encourages its students to test boundaries, explore new possibilities, and apply their skill to prevailing issues present within their evolving surroundings. Our second virtual Year End Show presents the culmination of the 2020/21 academic term, showcasing the impressive and cutting-edge works of our top students in all four years of study and at the graduate level.
2021 Year End Show Sponsors:
AZURE
Montgomery Sisam
Pella Architectural Solutions
RAW Design
Baldassarra Architects
Monica Zheng
Building Roots Cafe
Building Roots Cafe
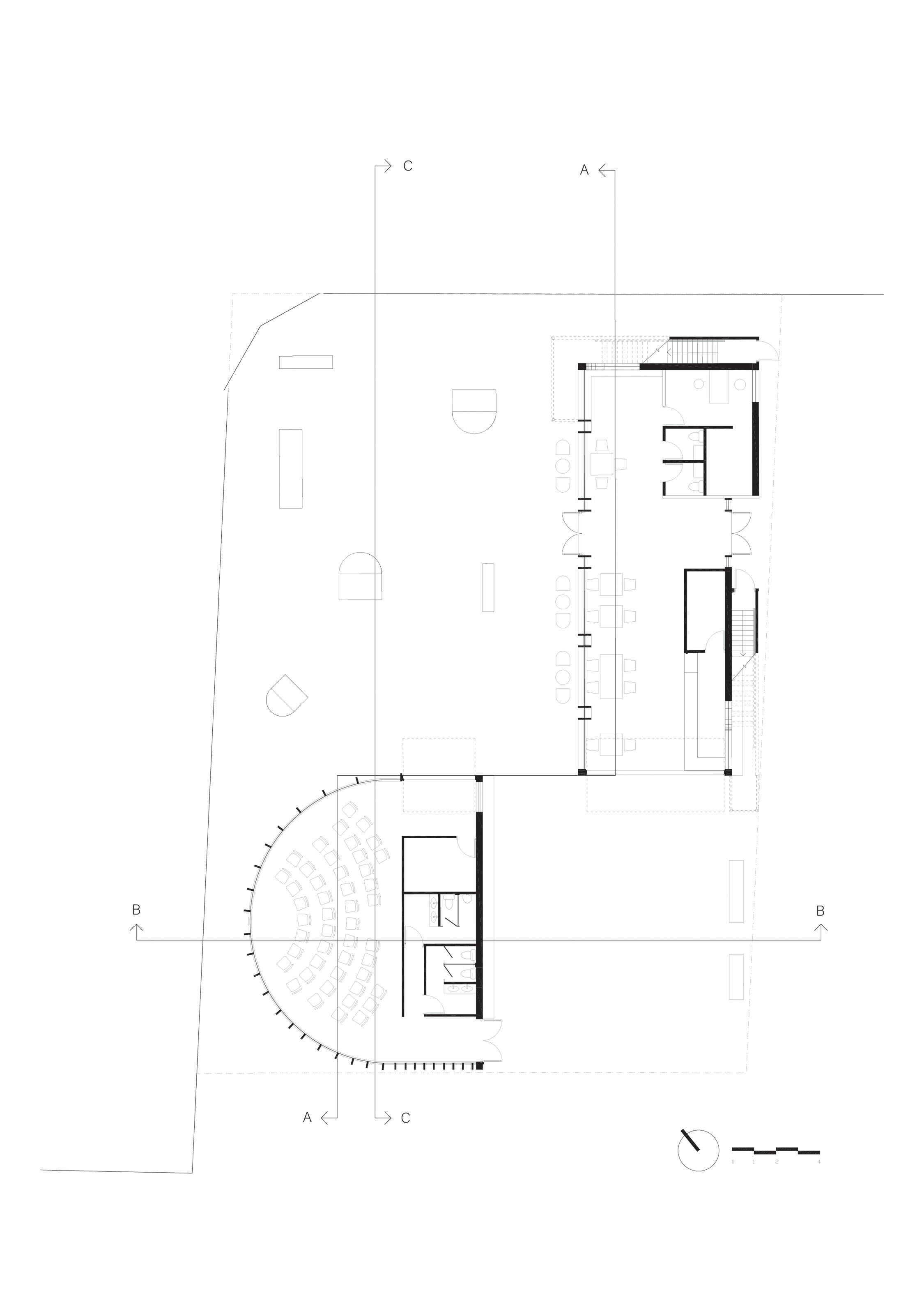
In project 2 students developed an understanding of wood construction and how to design and draw a very small structure.
Their mission: To design a small serving building for an outdoor café for the Building Roots food hub at Moss Park, Toronto. (see https://buildingroots.ca/) The building will serve customers through a window/counter and have a small workspace inside. It needs to have a fun, community-building presence in the Building Roots spirit.
Building Roots is a non-profit that runs community gardens and a CSA (community supported agriculture - bags or boxes of food directly from farmers and chefs, usually picked up weekly). They have recently expanded their existing program for accessible, affordable CSA food pickup. During the pandemic they saw the need to feed more people, create a sense of community, and bring joy through music and other entertainment at their site in Toronto’s Moss Park neighbourhood. The café is meant to aid in this endeavor, using food and entertainment to help a community through trying times.
Through a series of sketches and study models you are to create a space that is appropriately scaled for Moss Park.
Their mission: To design a small serving building for an outdoor café for the Building Roots food hub at Moss Park, Toronto. (see https://buildingroots.ca/) The building will serve customers through a window/counter and have a small workspace inside. It needs to have a fun, community-building presence in the Building Roots spirit.
Building Roots is a non-profit that runs community gardens and a CSA (community supported agriculture - bags or boxes of food directly from farmers and chefs, usually picked up weekly). They have recently expanded their existing program for accessible, affordable CSA food pickup. During the pandemic they saw the need to feed more people, create a sense of community, and bring joy through music and other entertainment at their site in Toronto’s Moss Park neighbourhood. The café is meant to aid in this endeavor, using food and entertainment to help a community through trying times.
Through a series of sketches and study models you are to create a space that is appropriately scaled for Moss Park.








Jana Stojanovska
Building Roots Cafe
Building Roots Cafe
In project 2 students developed an understanding of wood construction and how to design and draw a very small structure.
Their mission: To design a small serving building for an outdoor café for the Building Roots food hub at Moss Park, Toronto. (see https://buildingroots.ca/) The building will serve customers through a window/counter and have a small workspace inside. It needs to have a fun, community-building presence in the Building Roots spirit.
Building Roots is a non-profit that runs community gardens and a CSA (community supported agriculture - bags or boxes of food directly from farmers and chefs, usually picked up weekly). They have recently expanded their existing program for accessible, affordable CSA food pickup. During the pandemic they saw the need to feed more people, create a sense of community, and bring joy through music and other entertainment at their site in Toronto’s Moss Park neighbourhood. The café is meant to aid in this endeavor, using food and entertainment to help a community through trying times.
Through a series of sketches and study models you are to create a space that is appropriately scaled for Moss Park.
Their mission: To design a small serving building for an outdoor café for the Building Roots food hub at Moss Park, Toronto. (see https://buildingroots.ca/) The building will serve customers through a window/counter and have a small workspace inside. It needs to have a fun, community-building presence in the Building Roots spirit.
Building Roots is a non-profit that runs community gardens and a CSA (community supported agriculture - bags or boxes of food directly from farmers and chefs, usually picked up weekly). They have recently expanded their existing program for accessible, affordable CSA food pickup. During the pandemic they saw the need to feed more people, create a sense of community, and bring joy through music and other entertainment at their site in Toronto’s Moss Park neighbourhood. The café is meant to aid in this endeavor, using food and entertainment to help a community through trying times.
Through a series of sketches and study models you are to create a space that is appropriately scaled for Moss Park.








Todd Collis
Building Roots Cafe
Building Roots Cafe
In project 2 students developed an understanding of wood construction and how to design and draw a very small structure.
Their mission: To design a small serving building for an outdoor café for the Building Roots food hub at Moss Park, Toronto. (see https://buildingroots.ca/) The building will serve customers through a window/counter and have a small workspace inside. It needs to have a fun, community-building presence in the Building Roots spirit.
Building Roots is a non-profit that runs community gardens and a CSA (community supported agriculture - bags or boxes of food directly from farmers and chefs, usually picked up weekly). They have recently expanded their existing program for accessible, affordable CSA food pickup. During the pandemic they saw the need to feed more people, create a sense of community, and bring joy through music and other entertainment at their site in Toronto’s Moss Park neighbourhood. The café is meant to aid in this endeavor, using food and entertainment to help a community through trying times.
Through a series of sketches and study models you are to create a space that is appropriately scaled for Moss Park.
Their mission: To design a small serving building for an outdoor café for the Building Roots food hub at Moss Park, Toronto. (see https://buildingroots.ca/) The building will serve customers through a window/counter and have a small workspace inside. It needs to have a fun, community-building presence in the Building Roots spirit.
Building Roots is a non-profit that runs community gardens and a CSA (community supported agriculture - bags or boxes of food directly from farmers and chefs, usually picked up weekly). They have recently expanded their existing program for accessible, affordable CSA food pickup. During the pandemic they saw the need to feed more people, create a sense of community, and bring joy through music and other entertainment at their site in Toronto’s Moss Park neighbourhood. The café is meant to aid in this endeavor, using food and entertainment to help a community through trying times.
Through a series of sketches and study models you are to create a space that is appropriately scaled for Moss Park.







Hui Shan Cao
Building Roots Cafe
Building Roots Cafe
In project 2 students developed an understanding of wood construction and how to design and draw a very small structure.
Their mission: To design a small serving building for an outdoor café for the Building Roots food hub at Moss Park, Toronto. (see https://buildingroots.ca/) The building will serve customers through a window/counter and have a small workspace inside. It needs to have a fun, community-building presence in the Building Roots spirit.
Building Roots is a non-profit that runs community gardens and a CSA (community supported agriculture - bags or boxes of food directly from farmers and chefs, usually picked up weekly). They have recently expanded their existing program for accessible, affordable CSA food pickup. During the pandemic they saw the need to feed more people, create a sense of community, and bring joy through music and other entertainment at their site in Toronto’s Moss Park neighbourhood. The café is meant to aid in this endeavor, using food and entertainment to help a community through trying times.
Through a series of sketches and study models you are to create a space that is appropriately scaled for Moss Park.
Their mission: To design a small serving building for an outdoor café for the Building Roots food hub at Moss Park, Toronto. (see https://buildingroots.ca/) The building will serve customers through a window/counter and have a small workspace inside. It needs to have a fun, community-building presence in the Building Roots spirit.
Building Roots is a non-profit that runs community gardens and a CSA (community supported agriculture - bags or boxes of food directly from farmers and chefs, usually picked up weekly). They have recently expanded their existing program for accessible, affordable CSA food pickup. During the pandemic they saw the need to feed more people, create a sense of community, and bring joy through music and other entertainment at their site in Toronto’s Moss Park neighbourhood. The café is meant to aid in this endeavor, using food and entertainment to help a community through trying times.
Through a series of sketches and study models you are to create a space that is appropriately scaled for Moss Park.







The Venice Storytelling Centre
Located at the Giardino delle Vergini, the Venice Storytelling Centre introduces a space that allows an alternative way to experience a story, attempting to expand what a story may be.
With pathways on the West, North, and East sides of the site, the project encourages the idea of arrival. Vertical revolving fins along all sides of the open courtyard creates the relationship between physical interaction and interior space. As pedestrians walk along the North path, they are provided with a peripheral glimpse of an informal story being told within the courtyard, sparking an interest to investigate further. An intended relationship between the adjacent Biennale pavilions and the site is constructed by matching the roof slope and eaves height of the new office mass sheltering the cafe. While their relationship is strong, their differences are clearly defined.
With pathways on the West, North, and East sides of the site, the project encourages the idea of arrival. Vertical revolving fins along all sides of the open courtyard creates the relationship between physical interaction and interior space. As pedestrians walk along the North path, they are provided with a peripheral glimpse of an informal story being told within the courtyard, sparking an interest to investigate further. An intended relationship between the adjacent Biennale pavilions and the site is constructed by matching the roof slope and eaves height of the new office mass sheltering the cafe. While their relationship is strong, their differences are clearly defined.
The revolving bright pink fins define the interior courtyard space, while the golden fins along the West define Caffé d’Oro, the Golden Coffee. The two elements work in unison, defining the loggia. The sky-blue office mass creates the relationship to the bright blue sky, golden fins connect with the city’s Byzantine heritage, and vibrant colours model admiration for the beautiful colours used in Venetian blown glass and glass mosaics. The vibrant colours surrounding the storytelling space over-stimulate the senses - senses which are then under-stimulated when attention is turned to the storytelling space, emphasizing the story itself.
Upon entry to the storytelling space, one’s senses begin to calm through the muted gray exterior then interior space. Light only from the slight void in the roof and the dim glow from the punched holes through the wall connect one with a greater sense of the infinite. As one lays down on the mesh, they are suspended, leaving them motionless as the story progresses. The listeners are fully immersed in the story being told - no matter the tone, the importance is held on the voice and the story itself. The storytelling space is its own story yet suits any tale being told. Whether the story is being told nearby or disconnected through the sound of an echo, the storyteller controls the emotion of the occupants, no matter their proximity.
Upon entry to the storytelling space, one’s senses begin to calm through the muted gray exterior then interior space. Light only from the slight void in the roof and the dim glow from the punched holes through the wall connect one with a greater sense of the infinite. As one lays down on the mesh, they are suspended, leaving them motionless as the story progresses. The listeners are fully immersed in the story being told - no matter the tone, the importance is held on the voice and the story itself. The storytelling space is its own story yet suits any tale being told. Whether the story is being told nearby or disconnected through the sound of an echo, the storyteller controls the emotion of the occupants, no matter their proximity.










Building Stories
The primary goal of this project is to capture the essence of storytelling by allowing the visitors to connect and share. Our stories pass on from person to person, spreading out much like how water ripples and flows. The movement of water is the inspiration for creating a space that encourages sharing of these stories.










Building Stories
Project Description:
Storytelling can be a dreamlike experience that reveals new things about the world and puts the vastness of the universe in perspective. This Storytelling Biennale pavilion reaches up into the sky and opens up to the corner of the site. The smaller of the two public spaces acts as the threshold with views deep into the café, places to relax and a narrow transitional opening into the vast storytelling space while the second brings people together at the edge of a beautiful view. Unifying the three program areas are the elongated café bookshelves that act as both window frame and mullion, stretching endlessly into the clouds.
Storytelling can be a dreamlike experience that reveals new things about the world and puts the vastness of the universe in perspective. This Storytelling Biennale pavilion reaches up into the sky and opens up to the corner of the site. The smaller of the two public spaces acts as the threshold with views deep into the café, places to relax and a narrow transitional opening into the vast storytelling space while the second brings people together at the edge of a beautiful view. Unifying the three program areas are the elongated café bookshelves that act as both window frame and mullion, stretching endlessly into the clouds.
Assignment Context:
The Venice Biennale (La Biennale di Venezia) has decided to construct a new facility dedicated to storytelling on the grounds of the Arsenale in Venice. You have been commissioned to propose a design for the new building. The building will contain a café (potentially replacing one of the existing Biennale cafes), a space for storytelling gatherings that can be used for other purposes (able to hold an audience of about 50), and office space for a staff of 2 to 4 people as well as a manager.
The Venice Biennale (La Biennale di Venezia) has decided to construct a new facility dedicated to storytelling on the grounds of the Arsenale in Venice. You have been commissioned to propose a design for the new building. The building will contain a café (potentially replacing one of the existing Biennale cafes), a space for storytelling gatherings that can be used for other purposes (able to hold an audience of about 50), and office space for a staff of 2 to 4 people as well as a manager.










Hide & Seek
Building Stories is a design project for a storytelling space for the Venice Biennale. In this intimate site, different levels of opacity and materiality are used throughout the design of the buildings to bring visitors on a journey of exploring the hidden and the seen spaces.








McGall Baraceros
The intent of this project is to introduce the fundamental process of seeing architecture as a whole and the sum of its parts. Through a break down and reassembly of a small building, the Student will be exposed to the process of construction and the rationale of architectural form and aesthetic generation.
Project No. 2 - Architecture as a Whole and a Sum of its Parts
The intent of this project is to introduce the fundamental process of seeing architecture as a whole and the sum of its parts. Through a break down and reassembly of a small building, the Student will be exposed to the process of construction and the rationale of architectural form and aesthetic generation.

Mary Gozum
The intent of this project is to introduce the fundamental process of seeing architecture as a whole and the sum of its parts. Through a break down and reassembly of a small building, the Student will be exposed to the process of construction and the rationale of architectural form and aesthetic generation.
Project No. 2 - Architecture as a Whole and a Sum of its Parts
The intent of this project is to introduce the fundamental process of seeing architecture as a whole and the sum of its parts. Through a break down and reassembly of a small building, the Student will be exposed to the process of construction and the rationale of architectural form and aesthetic generation.

Jana Stojanovska
The intent of this project is to introduce the fundamental process of seeing architecture as a whole and the sum of its parts. Through a break down and reassembly of a small building, the Student will be exposed to the process of construction and the rationale of architectural form and aesthetic generation.
Project No. 2 - Architecture as a Whole and a Sum of its Parts
The intent of this project is to introduce the fundamental process of seeing architecture as a whole and the sum of its parts. Through a break down and reassembly of a small building, the Student will be exposed to the process of construction and the rationale of architectural form and aesthetic generation.

Jackson Rothenburg,
Julia Sider, Katy Cao, Muhammad Ghaffar Alhambra Palace
Alhambra Palace
The meaning of each monument must be analyzed within the context of the civilization from which it was created. Cultural, economic, social and other conditions should be understood and connected to demonstrate the meaning and the connection between time and place, and the language of architecture.
View full poster HERE.
View full poster HERE.


Christina Vo,
Jana Stojanovska,
Marc Fernandez, Nirav Mistry Saint Mark's Basilica
Saint Mark's Basilica
The history of architecture is a study of the built environments of humanity in all ages and places. In the broad survey of the ways, means and reasons why humans have shaped their built environments one would look at a number of significant structures which stand as prominent examples of that creative impulse. Each of these monuments, in its own way, in its time and place, stands as a representation of the aspiration, beliefs and values of its creators. Despite the separation in time and culture, we are able to appreciate these built environments and ‘decode’ their meaning as signifiers of their respectful civilizations.
View full poster HERE.
View full poster HERE.

Amanda Lang, Charissa Medrano, Dea Permana, Erika ArriolaJantar Mantar
Jantar Mantar
Overview
The Jantar Mantars are astronomical observatories constructed at five sites in west-central India between 1724 and 1735.1 The first observatory was built at Delhi (shown here), followed by Mathura, Ujjain, Varanasi and Jaipur.1 These are open-air sites containing massive masonry instruments, called yantras, that are large enough to make astronomical observations with the naked eye.1
Cultural Context
Astronomy and cosmology were strongly linked to religious and philosophical beliefs in 18th-century India. It was widely believed that the gods communicated through celestial phenomena such as the movement and position of the stars.2 The accuracy of astronomical observations was deemed crucial as they impacted all aspects of life, from the scheduling of religious rituals and agricultural practices to decisions about marriage, succession or waging war.3
Arts and architectural works at the time were almost exclusively commissioned by the ruling Mughal emperors as expressions of social status.4 The Jantar Mantars were built to improve decision-making by correcting key astronomical records, such as the Table of Zij, and to create places for cosmological practitioners to gather.5
Design & Construction
Maharaja Sawai Jai Singh II, the regional ruler credited with building the Jantar Mantars, was an astronomer, a mathematician, a planner, and a scholar.6 He secured commissions from the Mughal Emperor to build the instruments after uncovering troubling discrepancies in existing astronomical records.6
Although telescopes were available, these massive instruments were favored in order to promote Indian religious and philosophical virtues such as interconnectedness, decentralization, and multiple uses.1 Enabling observers to scan the skies as a whole, orient themselves with particular celestial objects, and deepen their relationship with the universe promoted interconnectedness.1 Instrument design that required minimal training for use and allowed anyone to develop their own powers of observation and analysis served to decentralize access to knowledge.1 Multiple-use was incorporated by ensuring each instrument could be used to take a variety of readings.1 The construction of the Jantar Mantars was precise, using materials with perfect stability and paying close attention to geometry, location, and latitude.7 The composition of each instrument was based on the highly-respected Ptolemaic structure of positional astronomy.5 Although relatively unadorned, architectural details such as ogee arches, sandstone, and marble reflected the traditional Mughal style of architecture.4
View full poster HERE.
The Jantar Mantars are astronomical observatories constructed at five sites in west-central India between 1724 and 1735.1 The first observatory was built at Delhi (shown here), followed by Mathura, Ujjain, Varanasi and Jaipur.1 These are open-air sites containing massive masonry instruments, called yantras, that are large enough to make astronomical observations with the naked eye.1
Cultural Context
Astronomy and cosmology were strongly linked to religious and philosophical beliefs in 18th-century India. It was widely believed that the gods communicated through celestial phenomena such as the movement and position of the stars.2 The accuracy of astronomical observations was deemed crucial as they impacted all aspects of life, from the scheduling of religious rituals and agricultural practices to decisions about marriage, succession or waging war.3
Arts and architectural works at the time were almost exclusively commissioned by the ruling Mughal emperors as expressions of social status.4 The Jantar Mantars were built to improve decision-making by correcting key astronomical records, such as the Table of Zij, and to create places for cosmological practitioners to gather.5
Design & Construction
Maharaja Sawai Jai Singh II, the regional ruler credited with building the Jantar Mantars, was an astronomer, a mathematician, a planner, and a scholar.6 He secured commissions from the Mughal Emperor to build the instruments after uncovering troubling discrepancies in existing astronomical records.6
Although telescopes were available, these massive instruments were favored in order to promote Indian religious and philosophical virtues such as interconnectedness, decentralization, and multiple uses.1 Enabling observers to scan the skies as a whole, orient themselves with particular celestial objects, and deepen their relationship with the universe promoted interconnectedness.1 Instrument design that required minimal training for use and allowed anyone to develop their own powers of observation and analysis served to decentralize access to knowledge.1 Multiple-use was incorporated by ensuring each instrument could be used to take a variety of readings.1 The construction of the Jantar Mantars was precise, using materials with perfect stability and paying close attention to geometry, location, and latitude.7 The composition of each instrument was based on the highly-respected Ptolemaic structure of positional astronomy.5 Although relatively unadorned, architectural details such as ogee arches, sandstone, and marble reflected the traditional Mughal style of architecture.4
View full poster HERE.



MISRA YANTRA
Well known for its ‘heart shaped form’, the Misra Yantra utilizes five instruments that work
together to identify the longest and shortest days of the year.1 It is also capable of indicating noon
in various locations, regardless of their distance from the Dehli site.1 It is the only instrument
that was not constructed by Jai Singh II, but by his son after his passing.1
SAMRAT YANTRA
Also known as the “Supreme Instrument,” the Samrat Yantra is a large equinoctial sundial.1 It measures time precisely to an accuracy of two seconds.1 It is approximately 70 ft. high and 10 ft.thick with a triangle-shaped body called the gnomon in the centre.1 On a sunny day when the sun passes, the shadow cast by the gnomon falls onto the scale of the quadrants which indicates the time in hours, minutes, and seconds.1 The one in Jaipur is considered the world’s largest sundial.1
JAI PRAKASH YANTRA
The Jai Prakash Yantra is two hollowed out hemispheres with different markings on the interior surface.1 Each bowl shape has a crosswire and sighting plate across the top which allows the observer to make observations from below the instrument.1 It can also provide the coordinates of celestial objects in the sky.1
RAMA YANTRA
The Rama Yantra consists of two large cylindrical structures that measure the altitude of the stars and planets and the azimuth (the angle between North around the observer’s horizon and a celestial body).1
Well known for its ‘heart shaped form’, the Misra Yantra utilizes five instruments that work
together to identify the longest and shortest days of the year.1 It is also capable of indicating noon
in various locations, regardless of their distance from the Dehli site.1 It is the only instrument
that was not constructed by Jai Singh II, but by his son after his passing.1
SAMRAT YANTRA
Also known as the “Supreme Instrument,” the Samrat Yantra is a large equinoctial sundial.1 It measures time precisely to an accuracy of two seconds.1 It is approximately 70 ft. high and 10 ft.thick with a triangle-shaped body called the gnomon in the centre.1 On a sunny day when the sun passes, the shadow cast by the gnomon falls onto the scale of the quadrants which indicates the time in hours, minutes, and seconds.1 The one in Jaipur is considered the world’s largest sundial.1
JAI PRAKASH YANTRA
The Jai Prakash Yantra is two hollowed out hemispheres with different markings on the interior surface.1 Each bowl shape has a crosswire and sighting plate across the top which allows the observer to make observations from below the instrument.1 It can also provide the coordinates of celestial objects in the sky.1
RAMA YANTRA
The Rama Yantra consists of two large cylindrical structures that measure the altitude of the stars and planets and the azimuth (the angle between North around the observer’s horizon and a celestial body).1
1. Mukherji, Anisha Shekhar. "Time and Space in the Jantar Mantars." In Celestial Mirror: The Astronomical Observatories of Jai Singh II, by Perlus Barry, Ix-Xviii. New Haven; London: Yale University Press, 2020. Accessed February 23, 2021. doi:10.2307/j.ctv12fw7
2. Vellu, Iswen. Jantar Mantar: The Science of Indian Conjecture. www.tracyanddale.50megs.com/India/Rajasthan/HTML/Jantar%20Mantar.pdf.
3. The Astronomical Observatories of Jai Singh. www.jantarmantar.org.
4. Blair, Sheila S., Jonathan M. Bloom, and R. Nath. "Mughal family." Grove Art Online. 2003; Accessed 21 Feb. 2021. https://www.oxfordartonline.com/groveart/view/10.1093/gao/9781884446054.001.0001/oao-9781884446054-e-7000060146.
5. UNESCO. “Nomination of The Jantar Mantar, Jaipur for Inclusion on World Heritage List.” 2010, https://whc.unesco.org/uploads/nominations/1338.pdf. Accessed 18 February 2021.
6. The British Museum. n.d. Maharaja Sawai Jai Singh II. Accessed March 11, 2021. https://www.britishmuseum.org/collection/term/BIOG110197.
7. Sherring, Matthew Atmore. 1868. The Sacred City of the Hindus: An Account of Benares in Ancient and Modern Times. Varanasi: Trübner & Company. https://books.google.ca/books?id=HlQOAAAAQAAJ&pg=PA134&lpg=PA134&dq=%22of+stone+and+lime+of+perfect+stability,+with+attention+to+the+rules+of+geometry+and+adjustment+to+the+meridian+and+to+the+latitude+of+the+place%22&source=bl&ots=tA5_dkrFpb&sig=ACfU3U0S.
8. Winzer, A. 2005. File:Jantar Mantar Delhi 27-05-2005.jpg. June 12. Accessed March 27, 2021. https://commons.wikimedia.org/wiki/File:Jantar_Mantar_Delhi_27-05-2005.jpg.
2. Vellu, Iswen. Jantar Mantar: The Science of Indian Conjecture. www.tracyanddale.50megs.com/India/Rajasthan/HTML/Jantar%20Mantar.pdf.
3. The Astronomical Observatories of Jai Singh. www.jantarmantar.org.
4. Blair, Sheila S., Jonathan M. Bloom, and R. Nath. "Mughal family." Grove Art Online. 2003; Accessed 21 Feb. 2021. https://www.oxfordartonline.com/groveart/view/10.1093/gao/9781884446054.001.0001/oao-9781884446054-e-7000060146.
5. UNESCO. “Nomination of The Jantar Mantar, Jaipur for Inclusion on World Heritage List.” 2010, https://whc.unesco.org/uploads/nominations/1338.pdf. Accessed 18 February 2021.
6. The British Museum. n.d. Maharaja Sawai Jai Singh II. Accessed March 11, 2021. https://www.britishmuseum.org/collection/term/BIOG110197.
7. Sherring, Matthew Atmore. 1868. The Sacred City of the Hindus: An Account of Benares in Ancient and Modern Times. Varanasi: Trübner & Company. https://books.google.ca/books?id=HlQOAAAAQAAJ&pg=PA134&lpg=PA134&dq=%22of+stone+and+lime+of+perfect+stability,+with+attention+to+the+rules+of+geometry+and+adjustment+to+the+meridian+and+to+the+latitude+of+the+place%22&source=bl&ots=tA5_dkrFpb&sig=ACfU3U0S.
8. Winzer, A. 2005. File:Jantar Mantar Delhi 27-05-2005.jpg. June 12. Accessed March 27, 2021. https://commons.wikimedia.org/wiki/File:Jantar_Mantar_Delhi_27-05-2005.jpg.
Justin Lieberman
Deflection Theatre
Deflection Theatre uses specific curved gestures to allow light to be deflected and absorbed into spaces. Natural and artificial light deflects and travels along materiality's to illuminate each programmatic space. A specific louver system also reduces and controls sound transmission when vocal control is preferred. In the community spaces, the louver distancing is larger to allow for vocal and visual engagement. The building has community facilities at the forefront of Dundas Street, a light well for circulation, then near the back, the private stage space. Deflection Theatre uses curved gestures therefore allowing light to be reflected and absorbed, reduce sound transmission, and define programmatic location.










Hunter Kauremszky
Veil and Expose
Veil and Expose
Theatre is a carefully crafted art where the structure of the show – including the sound, the set, the lighting, the music, and the performers – come together to create the experience we see on stage. People can have a greater appreciation for the masquerade of theatre if the mechanics are revealed to them. This play between veil and expose is paramount to appreciating both the function and the experience of theatre.
The intent is to juxtapose transparency with concealment to draw attention to and celebrate the dual nature of theatre: performance and production.
ASC301 challenged us to explore the possible means by which an architectural intention can manifest itself in a project. The brief of the project was to design a modest performance hall with a performance of our choice that conveys a clear manifestation of an architectural intention through the use of several means of architectural expression (i.e. materiality, form, light and shadow).
The intent is to juxtapose transparency with concealment to draw attention to and celebrate the dual nature of theatre: performance and production.
ASC301 challenged us to explore the possible means by which an architectural intention can manifest itself in a project. The brief of the project was to design a modest performance hall with a performance of our choice that conveys a clear manifestation of an architectural intention through the use of several means of architectural expression (i.e. materiality, form, light and shadow).










Horia Curteanu
Reflective Duality
To embody the elements of duality found within the site to create a multi-functional and interconnected occupational volume. The specific themes of duality that were incorporated into the project are the themes nature and manmade, high and low, old and new. From the varying heights and locations that create different experiences and connections with the visitors, to the combination of organically shaped paneling to ramp up green spaces, all these decisions were a consequence of the built environment around the site.









Ariel Weiss
Superimposition
Located adjacent to the AGO in downtown Toronto, Grange Park is a historic park - turned active outdoor space for its surrounding residents. With the growing number of residents who live close to the park, as well as visitors who might use the park occasionally, Grange Park acts as a “backyard space” for its users. In creating a performance pavilion, Superimposition not only attempts to impose a new program onto the park but also strives to maintain and extend its existing program at the same time. The Pavilion is composed out of two mirrored forms. One being an extension of the existing program, and the other being an imposition of a new one. In using two opposing forms, the pavilion can achieve its dichotomous program. Its thin-shell concrete structure allows the upper form to maintain a subtle and informal program during the day, while its lower foundational form supports a distinct and formal program at night. The relationship between both of the two forms then becomes an embodiment of the coexistence between site and program.










Ring Road Homes
The goal of this project is to develop a housing design in the Town of Bancroft. Community spaces, such as a quiet area, café, outdoor garden, and rooftop terrace, are scattered throughout the 10-unit complex to attract all ages of the Bancroft community, creating an inclusive social hub by the river. A flexible indoor community space allows for different public events including an annual food market, which sells food grown from the community garden. Residents can engage with the community in semi-private spaces located throughout the project, yet also maintain their privacy in residential zones.









Nexus Square
Located on 16 Station Street in Bancroft, Ontario, Nexus Square is a mixed-use development that provides careful consideration towards the York River. The ground floor serves as a public square, accommodating commercial and cultural uses while residential units are located on upper floors. The main focus of this development is on community-building and the gathering of townspeople. There is also an emphasis on creating a visual and physical connection to the river, hence the courtyard-style layout.
This project explores the recessed courtyard form in tandem with tectonics to deliver variability in public, private, and semi-private spaces. It establishes an architectural response to the lack of a "town square," breathing new life into the intimate town of Bancroft, Ontario.









Evergreen Community Housing
This project assigned students to design a housing complex for the small town of Bancroft, Ontario. The brief required students to study housing types, row houses & court houses, and apply modifications to suit the conditions of the site.
This design intends to enhance the transition from the public realm of Hastings street, to the private residential area through the use of landscaping and building orientation. The community space, located on the north east corner allowing the opportunity to open directly to the park, serves as flexible rental space and can host a local farmers market in the warmer seasons. This orientation allows pathways to the public park proposal, and provides a private green space for the residents of the complex.
This design intends to enhance the transition from the public realm of Hastings street, to the private residential area through the use of landscaping and building orientation. The community space, located on the north east corner allowing the opportunity to open directly to the park, serves as flexible rental space and can host a local farmers market in the warmer seasons. This orientation allows pathways to the public park proposal, and provides a private green space for the residents of the complex.










Madawaska Suites - Bancroft, Ontario
The Madawaska Suites is a ten-unit townhouse complex located at 1 Madawaska Street in Bancroft, Ontario. The complex houses four family and couple units, one live-work unit and one barrier-free unit. Additionally, the site also provides a communal building for all residents of Bancroft where they will be able to engage with one another by hosting arts and crafts sessions and tutorials, informal presentations and potluck meals. The site also contains a central outdoor space for residents within the complex to come together and share moments with each other in a space for relaxation where they can take in Bancroft’s exterior landscape.









Tyler Chui
Nia Centre for the Arts
Nia Centre for the Arts
The ASC 520 studio integration was to design a performing Arts Centre for the company NIA located in Toronto’s Little Jamaica community. NIA is an organization for the appreciation of arts across the African Diaspora and is a hub for the community that showcases art and provides youth mentorship programs and workshops. To create a neighborhood hub, the proposal responds to the surrounding infrastructure with creating storefronts that undulate along the façade. This allows for variety and human scale when walking along Oakwood Ave. To activate the North intersection, the proposal’s roof reaches into the outdoor public space as a canopy with the sense of enclosure and security while still being outdoors.






Mathieu Howard
Nia Centre for the Arts
Nia Centre for the Arts
The proposal for the new NIA Centre For The Arts is centered around the idea of creating relationships between the community and the building by giving back something greater to the people of little Jamaica. The uninterrupted views from the interior program of the building to the street and vice-versa create a visual continuity between adjacent streets and the NIA Centre For The Arts through. The transparent ground floor contributes largely to this visual continuity, being clad entirely in glazing. The upper floors are clad in a sawtooth facade influenced by the street traffic and circulation on the site. The sawtooth facade is composed of glazing and aluminum panels overlaid with artwork. This gesture shows off artwork created by artists of the African diaspora and of the NIA Centre and creates a public exhibition of art. A reinforced relationship to the street created by the exposition of artwork on the facade fortifies the NIA Centre For The Arts as a datum for the neighborhood and as a symbol of identity for the community.









Ludovica Pasini
Nia Centre for the Arts
Nia Centre for the Arts
The proposed NIA center for the arts is situated in the heart of Little Jamaica, on Eglinton Ave W. The exercise aims to bring students to the acknowledgment of how context and culture are the key driving forces of a design. In consideration of this the Nia Center wants to act as a cultural hub for the black artist community, by performing as a meeting point to the adjacent school, library, park, while the front facade of the building will interact with pedestrians on the main street of Eglinton Ave W. The appearance of the building will mimic the verticality conveyed by the neighborhood, with the use of vertical rotating wood composite panels, and aims to evoke curiosity through space and form mutation, resulting in the beginning of a cultural attitude.








Adneth Marie Kaze
Nia Centre for the Arts
Nia Centre for the Arts
The Nia Centre is a Toronto-based not-for-profit organization that supports, showcases, and promotes an appreciation of arts from across the African Diaspora. The vision for the Nia Centre is to create a safe space for young black creatives to express their creativity freely. There is a need for a gathering space free from the mainstream stereotypes and marginalization that permeate every other societal space.
The concept revolves around the idea that the black experience is not a monolith and includes multiple facets interacting together to create a culture. The design strategies follow the ideas of diversity and connectivity as it includes a central courtyard connecting to the three levels and all the program of the building. The program is organized in a way that maximizes interconnecting floor space and open spaces. By scattering the program all over the building, it allows for users to be exposed to different activities taken part in the building. This sense of diversity within this community allows the building to become a whole.
The Nia Center Is more than a Performing Arts Centre, it becomes a tool to strengthen the sense of community within Little Jamaica. For this project, I chose to build on the Oakwood Avenue and Vaughan Road “Five Points” Intersection, representing, by itself a focal point connecting to the rest of the neighbourhood.
The concept revolves around the idea that the black experience is not a monolith and includes multiple facets interacting together to create a culture. The design strategies follow the ideas of diversity and connectivity as it includes a central courtyard connecting to the three levels and all the program of the building. The program is organized in a way that maximizes interconnecting floor space and open spaces. By scattering the program all over the building, it allows for users to be exposed to different activities taken part in the building. This sense of diversity within this community allows the building to become a whole.
The Nia Center Is more than a Performing Arts Centre, it becomes a tool to strengthen the sense of community within Little Jamaica. For this project, I chose to build on the Oakwood Avenue and Vaughan Road “Five Points” Intersection, representing, by itself a focal point connecting to the rest of the neighbourhood.







Nia Centre for the Arts - Integration and Innovation Synthesis
The NIA Centre for the Arts is an arts focused community centre specifically dedicated to the African Canadian community. They hold art courses, gallery shows, lectures, and performances. The project takes place in Little Jamaica in Toronto. The neighbourhood is mainly residential and low-rise. At the beginning of the year, we investigated 5 different sites in the neighbourhood. The chosen site at the intersection of Oakwood Ave and Vaughan Rd has very clear and long views and has proximity to educational buildings. The site is also known as the ‘5 points’ due to its location at the convergence of several roads in the area. The Little Jamaica neighbourhood is becoming gentrified however there are many murals all over the neighbourhood which solidify the arts as a unifying factor in the culture, which makes an arts focused building more important to the community.
The building is split into three public portions on the site and each has a kind of destination pertaining to the uses of the building. In the middle it is outdoors while on either side there are indoor paths parallel. This configuration on the site connects the public outdoor spaces to the public indoor spaces and organizes the program and activities. The two forms wrap around the public space in this way. The design pulls back from the front of the site and angles inward to draw the public in and lead people to the outdoor destination which becomes connected to the indoor activities.









NIA Centre for the Arts
The NIA Centre for the arts aims to integrate the unique culture and artistic expression of the surrounding little Jamaica neighborhood into a building which becomes a beacon within the community. The centre supports the existing local artistic community while fostering the next generation of creative minds. The building aims to become a place that community members can take advantage of throughout their daily lives.










Phase 02 DD: Integration and Innovation Synthesis - Rise
Based on previous site research, we found that the black and African diaspora could greatly benefit from a more impactful community hub within Little Jamaica, binding the streetscape of Eglinton with the previously existing greenspace located behind the site.
Our design performs as a gateway between the streetscape of Eglinton Ave W and the greenspace that lies behind the site, reintroducing the pre existing greenspace to the public realm. The building rises upwards at the east and west edges of the site, allowing a valley to form in the middle, creating a visual connection between occupants of the building, the pedestrians passing through, and the busy Eglinton streetscape. The structures have been divided based on use, resulting in a public and private tower on either side of the site, connected by two storeys below grade that act as a collaborative, educational space.









Phase 02 C: Integration and Innovation Synthesis
- Interactivity
The intent of this design seeks to actively connect the bustle of the exterior environment to the creative activities of interior space, ultimately bridging the gap between NIA’s inner community and Toronto at large. Specifically, by creating an ensemble through compartmentalization of program into three structurally independent entities, an informal interior streetscape is established. This streetscape allows users to circulate about the perimeter of the building, fostering a direct connection with the exterior streetscape below. Further, an atmosphere of lightness is employed at large through a double-skin envelope condition. Large areas of diffuse glazing and operable glazing elements serve to allow for natural light and fresh air to permeate into various modular interior spaces within the ensemble, ultimately augmenting user experience.










House for J.S. Bach
A residence for the famous composer and organist explores the fugal music structure through an architectural lens as an organizational approach to the architecture through play with fragmentation. Fragmentation of realities and cadences emerge from subdivision of spaces, fenestration, and light as well as from the segmentation of planes and materials.
Bach is well known for his Fugue compositions, musical pieces created using overlapping voices. As the organ instrument provides the organist with multiple manuals, the fugal structure capitalizes on this multiplicity by overlaying repeating melodies in different keys, thereby generating counterpoint. This music structure is explored as an organizational approach for the architecture through play with fragmentation.
Bach is well known for his Fugue compositions, musical pieces created using overlapping voices. As the organ instrument provides the organist with multiple manuals, the fugal structure capitalizes on this multiplicity by overlaying repeating melodies in different keys, thereby generating counterpoint. This music structure is explored as an organizational approach for the architecture through play with fragmentation.
A fragmented journey through the house, follows the experience of the client as they occupy the spaces. Entering from the dock, they enter the public living spaces. The central stairway serves to connect the various levels, with visitors able to ascend above to the bedrooms or descend below to the organ and composing rooms. Throughout the project, fugal musical structure is employed through fragmentation which is emphasized via the placement and form of architectural planes, but also by the light access and the placement of the artificial illumination.









Caitlin Chin
Project 2A - Individual Advanced Construction Tectonic and Material Study
Project 2A - Individual Advanced Construction Tectonic and Material Study
This assignment objective is to develop a deep understanding of the concept of Architecture as current and future artistic expression of tectonic materiality in an advanced constructed building, in a geographically relevant place. Students will look at the system of elements, techniques and technologies, current and as forecast and their affect on the practice of Architecture, the construction industry and sustainable futures. In addition, the project goal is to provide applied construction techniques and manufacturing in order to prepare the student for future professional engagement.




This building is a concrete building through and through. The main structure is made of reinforced concrete and the gabion cage is the exterior cladding. These gabion walls are filled with ballasts that is crushed concrete instead of stone which speaks their intention of recycling concrete. Because the gabion cage still allows rain and snow to interact directly with the structural wall, there is a sealant applied to the exterior side of the wall. Next will be the insulation, plywood and gypsum layers used for the interior finish of the wall. Douglas fir wood was also used as an accent material in this detail for the interior window frame. Their wood accents speak to their intention to reconnect with nature and their sustainable approach to concrete as the building is right beside Mt. Sobaek National Park.
How it relates to the Overall Conception:
The Hanil cement plant, the client of the Hanil Visitor Centre & Guest House, acknowledges the environmental impact of concrete as a problem. The intention of the visitor centre and guest house is to educate visitors about recycled concrete. The building itself showcases the potential of recycled concrete through different types of formwork and casting techniques in its own construction. As mentioned before the ballasts used for the gabion wall was crushed, leftover concrete of the east wall which supports their goal into looking at new ways of recycling concrete. This introduces the concept of a closed loop construction process between the waste of the east wall to be reused in the south wall. The crushed concrete was also used for the roof, interior railings in gabion cages and larger ballasts were integrated into the landscape design. The future for this interpretation of the gabion wall provides opportunity of using recycled concrete ballasts without worrying about the structural integrity of the concrete.



Why the Detail was Chosen:
The chosen detail is the south gabion wall of the Hanil Visitor Centre & Guest House in Korea. This wall acts as one of the main facades of the building along with the east fabric formed wall. The construction of the wall is significant because it reinterprets the typical use of a gabion wall. Traditionally, gabion walls are filled with stone and used as a retaining wall, but in this project the leftover concrete from the east wall was crushed to take the place of the stone. Therefore, the gabion wall acts more as a cladding element that is attached to the reinforced concrete wall behind it.
Caitlin Chin
Project 2B - Tectonic and Material Design, Innovation, and Entrepreneurship
Project 2B - Tectonic and Material Design, Innovation, and Entrepreneurship
The assignment objective is to develop in the students the primary ingredients of design, innovation and entrepreneurship required for the architectural and construction industries. The professional scope of the Architect is changing dramatically in the 21st century. In the future, Architect’s ideas will permeate the fabrication process in its entirety. A new relationship is being established between the Architect’s traditional responses towards advanced construction in terms of tectonics and materiality.
The Hanil Visitor Centre and Guest House
Location: 77, Pyeong-ri, Maepo-eup, Danyang-gun, Chungbuk, Korea
Architect: Byoung-soo Cho (BCHO Architects)
Client: Hanil Cement Plant
![]()
Refabrication: New Material Concept
The Hanil cement plant, the client of the Hanil Visitor Centre & Guest House, acknowledges the environmental impact of concrete as a problem. Within the visitor and guest house contains samples of different ways the Hanil Cement Plant has been experimenting with various methods of using concrete. They have the intention of coming up with new ways to use concrete in non-typical ways and combining it with other materials and methods. The south wall currently has the exterior cladding as a gabion cage wall that uses recycled concrete as ballasts. However, the construction currently in place has the cage connected flat against the solid surface of the structural reinforced concrete wall. The program of the ground floor can benefit from natural daylight. The specific detail is of the electrical room that is indicated on the plan. So instead of the gabion cage, the translucent tile that the center has been experimenting with can be an alternate cladding material to allow light to enter the interior space and to display another method of recycling concrete on the building. Also in the current detail there is no interior or exterior insulation for this space, which allows for some material experimentation.
The material alternative is an option seen on the right. The tile has the crushed concrete and then resin is poured over the ballasts. The amount of concrete within the tile and the pattern that the concrete pieces can make is all customizable. As seen on the examples on display, some tiles have the concrete emerging from the resin while in others the concrete is fully submerged. It can also have different finish qualities to the surface. It can be glossy or matte.
Location: 77, Pyeong-ri, Maepo-eup, Danyang-gun, Chungbuk, Korea
Architect: Byoung-soo Cho (BCHO Architects)
Client: Hanil Cement Plant

Refabrication: New Material Concept
The Hanil cement plant, the client of the Hanil Visitor Centre & Guest House, acknowledges the environmental impact of concrete as a problem. Within the visitor and guest house contains samples of different ways the Hanil Cement Plant has been experimenting with various methods of using concrete. They have the intention of coming up with new ways to use concrete in non-typical ways and combining it with other materials and methods. The south wall currently has the exterior cladding as a gabion cage wall that uses recycled concrete as ballasts. However, the construction currently in place has the cage connected flat against the solid surface of the structural reinforced concrete wall. The program of the ground floor can benefit from natural daylight. The specific detail is of the electrical room that is indicated on the plan. So instead of the gabion cage, the translucent tile that the center has been experimenting with can be an alternate cladding material to allow light to enter the interior space and to display another method of recycling concrete on the building. Also in the current detail there is no interior or exterior insulation for this space, which allows for some material experimentation.
The material alternative is an option seen on the right. The tile has the crushed concrete and then resin is poured over the ballasts. The amount of concrete within the tile and the pattern that the concrete pieces can make is all customizable. As seen on the examples on display, some tiles have the concrete emerging from the resin while in others the concrete is fully submerged. It can also have different finish qualities to the surface. It can be glossy or matte.


Resin Material Properties:
Casting resin is specifically designed to be casted into molds, forms, and figures. The two components of casting resin that makes it an interesting material is the low-viscosity and the ability to harden over time. Because of these properties casting resin can be used for projects that require a thicker application/ depth. Casting resin differs from epoxy resin. Epoxy resin is more viscous, has a faster curing time but can only be applied to projects with a maximum depth of 2cm (Resin Expert, 2020).
Looking into specific products for casting resin is a thermosetting resin, specifically made from polyethylene terephthalate. It is highly transparent and stiff, and it has excellent gas barrier properties. Some example of products that are made from this material is insulation, and high-performance optical films (Daido Chemical Corporation).
When in the process of casting, formwork needs to be considered. It is recommended to use silicone molds to allow for a smooth finish but also allows for easy removal of the mold. The first step would be to have a thin layer of resin in the mold to begin with and then to add the desired amount and pattern of the recycled concrete pieces. Next, additional casting resin will be poured over concrete pieces and to reach the desired thickness. It is recommended to dry for 24 hours but it also varies based on the thickness of the piece casted.
I am looking at the thin resin tiles that the Hanil Cement Plant has experimented with and making it into something that is thicker, and block like. I will be looking at glass blocks and their construction methods of wall construction for the proposed resin blocks.
Glass Block History:
The invention of glass has made a huge impact on the building industry as it allows natural daylight and views to be accessible from the interior of the building. The use of glass blocks has been reinvented over the years as it has varied in use as an interior or exterior element in the form of walls, ceilings, and floors. Glass blocks have been important in the interior architectural design to illuminate adjacent rooms and hallways mainly. The glass can be manufactured to provide the desired degree of visibility to allow for privacy and light permeability. In the exterior context, glass blocks maximize natural light to reduce energy required for artificial lighting (Architectural Products and Services, 2018).
In 1907, Deutsche Luxfer-Prismen-Gesellschaft patented the glass block strengthening process where the two pieces of glass are joined but the centre is hollow. The “air gap” within enhances the insulating qualities that glass blocks and helps with sound deadening, and fireproofing. In present day context, the pattern, texture degree of transparency and size can all be customized for any project. Additionally, over the years different mortars and silicones have been improving to join the glass blocks together (Architectural Products and Services, 2018).
I am hoping to explore and treat the resin concrete blocks similarly to the glass block construction. I will be referring to different modern examples that used glass blocks in an innovative way and looking at different details that I can learn from for the resin concrete blocks.
![]()
The invention of glass has made a huge impact on the building industry as it allows natural daylight and views to be accessible from the interior of the building. The use of glass blocks has been reinvented over the years as it has varied in use as an interior or exterior element in the form of walls, ceilings, and floors. Glass blocks have been important in the interior architectural design to illuminate adjacent rooms and hallways mainly. The glass can be manufactured to provide the desired degree of visibility to allow for privacy and light permeability. In the exterior context, glass blocks maximize natural light to reduce energy required for artificial lighting (Architectural Products and Services, 2018).
In 1907, Deutsche Luxfer-Prismen-Gesellschaft patented the glass block strengthening process where the two pieces of glass are joined but the centre is hollow. The “air gap” within enhances the insulating qualities that glass blocks and helps with sound deadening, and fireproofing. In present day context, the pattern, texture degree of transparency and size can all be customized for any project. Additionally, over the years different mortars and silicones have been improving to join the glass blocks together (Architectural Products and Services, 2018).
I am hoping to explore and treat the resin concrete blocks similarly to the glass block construction. I will be referring to different modern examples that used glass blocks in an innovative way and looking at different details that I can learn from for the resin concrete blocks.





Chanel Wase
Project 2A - Individual Advanced Construction Tectonic and Material Study
Project 2A - Individual Advanced Construction Tectonic and Material Study
SANAA New Contemporary Art Museum
This assignment objective is to develop a deep understanding of the concept of Architecture as current and future artistic expression of tectonic materiality in an advanced constructed building, in a geographically relevant place. Students will look at the system of elements, techniques and technologies, current and as forecast and their affect on the practice of Architecture, the construction industry and sustainable futures. In addition, the project goal is to provide applied construction techniques and manufacturing in order to prepare the student for future professional engagement.

The detail being studied is taken from the overhang at the entrance of The New Art Museum by SANAA architects (Figure 1). The concept behind the building was to create shifting boxes which fit in and reflect the New York cityscape where it is located. From a distance, the building is seen to be clean and monochrome, and fits in well with the cityscape, but upon closer inspection, it is made up of a more industrial continuous mesh facade. This can be seen as a metaphor for the New York cityscape in general.
The building’s facade is made up of an anodized expanded aluminium mesh bolted directly to aluminum panelled walls (Figure 4). Aluminum was chosen due to its light weight and cost efficiency. This aluminum mesh skin wraps the entire building, softening its edges and hiding the windows throughout the day. This was meant to allow the building to melt into its surroundings and increase its sense of transparency and lightness. The mesh panels themselves are made to a standard size to reduce costs, each 4’ long with 6 diamond shapes of width. The separate panels are overlapped at the centre of the diamond shape to hide the joints and allow for the appearance of a continuous wall. The clips which attach the aluminum mesh to the interior aluminum panels are steel, which may cause problems in the future due to being a different metal. However, they are strong supports, and are made at an angle in relation to the angled diamond shapes of the mesh panels, which allows them to remain hidden out of view, also contributing to the continuous look of the facade.


The expanded aluminium mesh on the facade is a material usually used for fencing, but SANAA was able to demonstrate a new way to use this material as a continuous skin for a building. Their research into this detail is not yet perfect, as the joints at the corner of the building are not continuous, and they are criticized for the interior look of the mesh through the windows. However, this use of aluminum mesh may be, and has been, re-fabricated and customized into other similar building facades. It is a good precedent to see how a non-traditional material can be used for aesthetic and building purposes as a skin on a facade.

In order to demonstrate transparency to the outside world, the main entrance of the New Art Museum has a large glass wall, and continues the exterior concrete sidewalk into the interior (Figure 1). This entrance includes a small overhang of the building above. Unlike other overhangs present in the building, which simply use white panels to close off the overhang’s bottom, this one is more visible to passerby, and is more detailed to accommodate this. The bottom of the overhang is covered by a small metal mesh which turns up to seamlessly hide behind where the aluminum mesh panels of the wall’s facade hang down (Figure 3). The use of a mesh below the overhang allows for the continuous feeling of the building’s facade to remain unbroken to people walking under.
This overhang mesh detail also imitates the building’s interior skylights, which are one of the main natural light sources inside of the building, created in the spaces between the shifting box shapes. By putting lights behind the overhang’s mesh where the structure is, the overhang shines down light at night, just like the actual skylights which shine in the interior (Figure 2). This also enforces the concept of transparency and connection between interior and exterior.


Chanel Wase
Project 2B - Tectonic and Material Design, Innovation, and Entrepreneurship
Project 2B - Tectonic and Material Design, Innovation, and Entrepreneurship
Metal Mesh Facade
The assignment objective is to develop in the students the primary ingredients of design, innovation and entrepreneurship required for the architectural and construction industries. The professional scope of the Architect is changing dramatically in the 21st century. In the future, Architect’s ideas will permeate the fabrication process in its entirety. A new relationship is being established between the Architect’s traditional responses towards advanced construction in terms of tectonics and materiality.
The facade detail of the New Art Museum by SANAA architects has been greatly studied for the completion of this assignment. The concept behind the building was to create shifting boxes which fit in and reflect the New York cityscape where it is located. From a distance, the building is seen to be clean and monochrome, and fits in well with the cityscape, but upon closer inspection, it is made up of a more industrial continuous mesh facade. This can be seen as a metaphor of the New York cityscape in general.
The expanded aluminium mesh on the facade skin wraps the entire building, softening its edges and hiding the windows throughout the day. This was meant to allow the building to melt into its surroundings and increase its sense of transparency and lightness, as well as give it a sense of blurred lines and edges. The use of aluminum panels behind the mesh also give a shallow depth and clean look to the facade.
Upon studying this detail, one of the main critiques which can be found is the fact that the facade is not actually as continuous as it is meant to appear. For example, at the corners of the building, the mesh skin does not join together, and at the bottom of the overhangs, a completely different mesh is used. Perhaps due to the budget, or because “the quality of craftsmanship in New York is known to be substandard” the building is not as detailed as it could have been in some specific areas (Ouroussoff 2007). The interior look of the mesh through the windows is also criticized, as it does not act as a true shading device, and has a very cold look to it. “Seen from outside, the strip windows there emit a blurred glow through the mesh. But from within, the metal creates a dispiritingly correctional effect: inmates look through the grate at a skyline partitioned into little diamonds” (Davidson 2001).
The most critical detail of this building is, of course, the mesh skin. However, it can also be considered as one of the main issues with the facade of the building. When looking into this detail, it can be considered that perhaps a certain change in materiality and nature may fix many of the issues noted above, while still remaining true to the nature of the building and its design concept.
The new proposed detail offers a look at the use of a metal fabric, as opposed to the expanded aluminium mesh. Metal fabric involves small strips or wires of metal which are weaved into a kind of fabric mesh. There is a wide diversity of mesh weave types, and a very wide range of colour options, allowing for expansive design possibilities and mass-customization.
For this new detail, the fabric could be made of an aluminum metal mesh fabric, with connections of the same metal, in order to relate to the aluminum side panels beneath. The mesh is quite small, so it acts as a much better light filter than the New Art Museum’s current large expanded aluminium mesh, while still allowing in a good amount of filtered incident light. The metal fabric also gives the exterior of the building a very monolithic feel, just like the current expanded mesh, but it is very transparent when viewed straight on from inside the building’s windows. This eradicates the “dispiritingly correctional effect” of the use of expanded aluminum panels over the windows, and instead allows for a very good view straight through the glass, while still hiding the interior when looking from the exterior.
The new proposed detail offers a look at the use of a metal fabric, as opposed to the expanded aluminium mesh. Metal fabric involves small strips or wires of metal which are weaved into a kind of fabric mesh. There is a wide diversity of mesh weave types, and a very wide range of colour options, allowing for expansive design possibilities and mass-customization.
For this new detail, the fabric could be made of an aluminum metal mesh fabric, with connections of the same metal, in order to relate to the aluminum side panels beneath. The mesh is quite small, so it acts as a much better light filter than the New Art Museum’s current large expanded aluminium mesh, while still allowing in a good amount of filtered incident light. The metal fabric also gives the exterior of the building a very monolithic feel, just like the current expanded mesh, but it is very transparent when viewed straight on from inside the building’s windows. This eradicates the “dispiritingly correctional effect” of the use of expanded aluminum panels over the windows, and instead allows for a very good view straight through the glass, while still hiding the interior when looking from the exterior.



There are many benefits to using the metal fabric mesh, which, surprisingly, has not been commonly used in too many building facades, most of which are on parking garages. When it has been used, it is almost always either used like a curtain, or brought quite far away from the inner sides of the buildings, as almost a second facade or shell. For this new detail, this design is being re-fabricating as more of a skin, similar to the aluminum mesh currently on the New Art Museum, and less as a separate entity shell or curtain. Over the solid aluminum panels below, the metal fabric will create the softening of corners and play of light as more of a facade skin layer, creating the same type of clean look as the current New Art Museum. The mesh can be seen through when looked at from straight on, so the aluminum panels below this will allow the building to still remain blurred and monochrome from all directions.
The wire mesh fabric is able to be tensioned over the full height of the facade using flat tension profiles and pressure springs with tube frames and wire connections at each floor level to help with any lateral wind loads. This is a common technique for attachment of wire mesh fabric, however, this will be done in a completely continuous method, where the mesh will wrap around a metal bar at the base of the overhangs, top of the flat roofs, and all corner conditions. The tension supports and springs will then connect horizontally to the existing structure of the building. The new detail shows these connections at the base of the overhang. Instead of using metal panels which stop at the corner of the overhang, the mesh will wrap around and continue straight to the structure at the side of the overhung facade.
In order to get this detail out to others, the manufacturers of the metal fabric mesh could be contacted to use the detail as an example of a new possibility and way to fabricate this mesh for a very continuous and clean facade. The possibilities for this mesh are endless, and this is just one new detail of how it could be used, but if there is ever a building inspired by the New Art Museum that is looking to correct its mistakes, this is the detail which they could look into. The cost can also be advertised as much less than a panel cladding or a framed solution, since there is less substructure involved with the metal fabric cladding. The mesh fabric can be made of any type of metal, but the sustainability factor of using metal can also be advertised, as it is a material which is very durable, and can also be recycled and reused an indefinite amount of times without losing its qualities. The fabric mesh is also able to be integrated in sliding or hinged frames for removable solutions for shading devices which are not permanent.





Justin Arbesman
Project 2B: Topology Optimization
Project 2B: Topology Optimization
Detail Intent
The natural world exists in resource scarcity. All forms of life have hidden optimizations within that allow for their form to exist. Bird skulls have three layers each connected with what can be called columns of microscopic bone allowing for a light yet rigid structure to not weigh the bird down. Lily Pads stem from a single root and branch out varying the thickness of their components depending on the forces acting on it. These natural optimization processes in nature beautifully tackle the organisms largest hurdles when it comes to living on this planet. We now have begun to deconstruct and reinvent these processes in the digital age. Utilizing these algorithmic processes, we can take our first principles of design and elevate them to a human designed nature. While not entirely necessary on this project by Herzog and de Meuron, the method of topology optimization is a field beginning to take over the aerospace and automotive industries and thus should be looked at in the world of architecture.
The natural world exists in resource scarcity. All forms of life have hidden optimizations within that allow for their form to exist. Bird skulls have three layers each connected with what can be called columns of microscopic bone allowing for a light yet rigid structure to not weigh the bird down. Lily Pads stem from a single root and branch out varying the thickness of their components depending on the forces acting on it. These natural optimization processes in nature beautifully tackle the organisms largest hurdles when it comes to living on this planet. We now have begun to deconstruct and reinvent these processes in the digital age. Utilizing these algorithmic processes, we can take our first principles of design and elevate them to a human designed nature. While not entirely necessary on this project by Herzog and de Meuron, the method of topology optimization is a field beginning to take over the aerospace and automotive industries and thus should be looked at in the world of architecture.


Structural engineers and architects are able to integrate the structural optimization in parallel with the standard structural calculations. Using software that is fed material properties, movement constraints, loads and load direction, the architect and engineer are able to generate force optimized forms. These forms are then further refined after the initial simulation and fed into a CAD/CAM program. With the use of a 5-axis CNC robot arm, the prefabricated components would be stripped of unnecessary material directly after the part is dimensioned. The component would then be equipped with standard heavy timber connections and used without disruption to the labor force. However, the 5-axis CNC is also capable of implementing custom complex joinery onto the part during the shaving process.

Tectonics
Then looking at a part designed using topology algorithms, even the laymen gets a feeling like nature had a role to play. The intricate, organic, and often beautiful forms that emerge give a sense of otherworldliness or of a stream of design almost unimaginable. Only through recreating processes of nature do these forms exist. Perfectly suited to its structural purposes, the optimized components visually convey the laws of nature. The results intertwine human created and naturally grown forms, a visual look into the fabric of the world. Tendrils span from one side to another, changing in size and shape showcasing the forces it counteracts. Maybe by looking at these forms more closely will we be able to further understand and conceive of structures for tomorrow.
Materiality
While topology optimization works on virtually any material, wood may be one of the best for the process. Wood has been carved, joined, spanned, bent, and cut for centuries. It is a material perfect for machining with little resistance to tools yet great overall volumetric strength. With manufacturing methods of today, any size lumber can be created by methods such as glulam allowing for large components ready for CNC milling at a staggeringly low cost in relation to its size vs raw lumber. Many professional fabrication companies are becoming custom to 5-Axis CNC milling so the topology optimization workflow can be used in unison without extra training or equipment investment.
Results
components that emerge from topology optimization have a weight reduction of around 20 - 50% depending on the material and geometry of the part. Leaving only what is necessary, offcuts can then be reused in different manufacturing processes. And due to the method of 5-axis CNC, the cost per part is only time based, the complexity has no bearing on final price outcome. These combine to have structures that can be smaller, lighter, cost roughly the same to manufacture as standard prefabricated parts, and supply derivative industries with offcuts. Topology optimization can form to any force and any load assuming the material is able to withstand it in the first place. It may be some time before methods like this are implemented but it will surely replace the crude, rigid, and often unsightly man-made structural elements of today.
While topology optimization works on virtually any material, wood may be one of the best for the process. Wood has been carved, joined, spanned, bent, and cut for centuries. It is a material perfect for machining with little resistance to tools yet great overall volumetric strength. With manufacturing methods of today, any size lumber can be created by methods such as glulam allowing for large components ready for CNC milling at a staggeringly low cost in relation to its size vs raw lumber. Many professional fabrication companies are becoming custom to 5-Axis CNC milling so the topology optimization workflow can be used in unison without extra training or equipment investment.


components that emerge from topology optimization have a weight reduction of around 20 - 50% depending on the material and geometry of the part. Leaving only what is necessary, offcuts can then be reused in different manufacturing processes. And due to the method of 5-axis CNC, the cost per part is only time based, the complexity has no bearing on final price outcome. These combine to have structures that can be smaller, lighter, cost roughly the same to manufacture as standard prefabricated parts, and supply derivative industries with offcuts. Topology optimization can form to any force and any load assuming the material is able to withstand it in the first place. It may be some time before methods like this are implemented but it will surely replace the crude, rigid, and often unsightly man-made structural elements of today.
Justin Arbesman
Material Design Innovation P2C
Material Design Innovation P2C
Topology Optimization
Recent innovations in digital fabrication, specifically related to the emerging field of 3D printed concrete formwork, has opened the doors to projects that use extremely complex geometry while having the cost of formwork be fixed to just material usage and time on a viable printing robot. This field of research has discovered the usage of automotive and industrial structural optimization software into the realm of architecture. Previously the geometries generated were only references for engineers to design optimal structural paths to save weight on parts, however in the case of concrete, a material that has the properties of both fluid and solid, the actual mesh generated from these optimization softwares can be used to create forms that have roughly 70% less material than their original unchanged volume.
Recent innovations in digital fabrication, specifically related to the emerging field of 3D printed concrete formwork, has opened the doors to projects that use extremely complex geometry while having the cost of formwork be fixed to just material usage and time on a viable printing robot. This field of research has discovered the usage of automotive and industrial structural optimization software into the realm of architecture. Previously the geometries generated were only references for engineers to design optimal structural paths to save weight on parts, however in the case of concrete, a material that has the properties of both fluid and solid, the actual mesh generated from these optimization softwares can be used to create forms that have roughly 70% less material than their original unchanged volume.

Method
As seen in projects by ETH in Zurich, the output of these softwares are inverted and converted into a mold that is then 3D printed with either plastics for repeat casting or dissolvable molds for extremely intricate components. In this detail, I generated a concrete cantilever using the topology optimization capabilities of Fusion 360 and fed the results into Rhino 7 to better manipulate the geometry. The result is a form that has both the benefit of looking at a very specific organic aesthetic while also using only 30% of the concrete needed for its shape as compared to traditional forming methods.




To emphasize the generated design, the pieces are bolted to a 5-ply CLT spine that runs through the whole stair. Thin wooden veneers are placed as treads to hide the mounting holes and to match the CLT spine while glass is used as the main railing support and is bolted to the edges of the concrete generated wing. The railing is held on using a minimal steel (or aluminum) connector that references the angles generated in the topology optimized concrete part. The juxtaposition of minimalism and organic geometry accentuates both and allows the stair to fit into the current aesthetic of my building while showcasing the potential projects that the digital fabrication facility is capable of creating.


Improving the Performance of an Existing Building
This project looks at improving the performance of the Architecture Building and Monetary Time Building located on the Ryerson University Campus. Thoroughly understanding the existing conditions and challenges, I have proposed two architectural solutions and moved forward with one proposal, looking into building science aspects to improve the building performance. Focusing on a new and improved envelope system, my main goal was to provide this entrance to the campus with a sense of identity and vibrancy, while increasing the density of this location on the Ryerson Campus.




Proposal 1 focuses on the new addition between Monetary Times and Architecture Building. This proposal also highlights the proposed facade change of Monetary Times and Architecture Building.

Proposal 2 focuses on the new addition between Monetary Times and Architecture building, while only changing the façade of the middle section of this new form.
Final Proposal:

Respecting the Heritage façade of the Monetary times building, the new proposal combines elements of both proposals to add a new addition with a shared entrance to both buildings and leave the Monetary Times’ building façade untouched. Additionally, changing the envelope system of the Architecture building to improve performance and aesthetic of the building.


Improving the Performance of an Existing Building
The project aim was to improve the performance of the Podium Building at Ryerson University using architectural and building science interventions. The Ryerson Campus Master Plan was consulted to determine what interventions were needed the most. The goal was not to create something that meets the current needs of the Ryerson Master Plan to help the campus until the foreseeable future. Therefore, the original structure and facade were kept and interventions were added onto the building. The new design achieves the Ryerson Master Plan goals through the addition of outdoor spaces and vegetation to help promote the health and wellbeing of the environment to preserve habitats and their natural resources.
Research into different green systems was done to determine what could be used in the project. An extensive green roof is added to the inaccessible lower portion of the roof, whereas an intensive green roof is added to the higher portion, that would be accessible to the Ryerson community. A vertical green wall system is also added onto the large masses on the facade to enhance the laneway in front of it. To build the green roof, a ZinCo semi-intensive-perennial garden system was implemented while the green wall uses a Versa Wall frame from GSky.






How Sustainable is my Home?
A building performance assessment of a typical residential building. This project investigates a 300m2 single family home consisting of two above ground storeys and a finished walkout basement. The building typically houses four occupants and operates on a forced air heating, central split air conditioning, and conventional tank water heating system using natural gas.
Through comparing energy efficiency standards to building data, including bills, on-site observations and energy modelling, the home’s use of natural gas, electricity, water, and stormwater management are assessed. In light of the Covid-19 pandemic which has created a remote working and learning situation for three of the home’s four occupants, another aspect of the home’s performance that is assessed is the quality of the workspaces it provides. The daylighting and acoustics in the identified workspaces are analyzed for their ability to support productivity.
Natural Gas:
![]()
![]()
The overall usage of natural gas is slightly higher than the provincial average. Space heating usage is almost 5 times the Passive House standard, while the hot water usage is below the 190L/day threshold of SB-12. The components generally perform below the current standard for new builds.
Electricity:
![]()
![]()
The overall electricity usage is slightly higher than its comparable benchmarks. Some appliances in the home fulfill Energy Star and SB-12 Zero Rated Homes requirements but fail to provide the minimum required energy star savings. Lighting is not energy efficient.
Acoustics:
Long reverberation times indicate that the profiled home workspaces are not equipped to provide acoustic comfort to occupants while working.


The overall usage of natural gas is slightly higher than the provincial average. Space heating usage is almost 5 times the Passive House standard, while the hot water usage is below the 190L/day threshold of SB-12. The components generally perform below the current standard for new builds.
Electricity:


The overall electricity usage is slightly higher than its comparable benchmarks. Some appliances in the home fulfill Energy Star and SB-12 Zero Rated Homes requirements but fail to provide the minimum required energy star savings. Lighting is not energy efficient.
Acoustics:

Long reverberation times indicate that the profiled home workspaces are not equipped to provide acoustic comfort to occupants while working.
Water:
![]()
![]()
Although the overall water use is average, the outdoor water use and fixture flow rates are significantly higher than standard benchmarks.
Stormwater Management: The current permeable area is not sufficient to support rainwater runoff from non-permeable areas.
Daylighting:
![]()
![]()
In each of the profiled spaces, sDA and UDI measures indicate that natural daylight is insufficient to support productive work. Supplementary artificial lighting is required to work comfortably throughout working hours (8am - 6pm).
Overall: The home performs quite closely to the average overall resource use for homes in York Region, Ontario, and Canada. However, its building performance falls below current sustainability standards in regards to energy use, water use, daylighting, and acoustics. Its sustainability and efficiency could be significantly improved through an upgrade to its various building components, appliances, and fixtures.


Although the overall water use is average, the outdoor water use and fixture flow rates are significantly higher than standard benchmarks.
Stormwater Management: The current permeable area is not sufficient to support rainwater runoff from non-permeable areas.
Daylighting:


In each of the profiled spaces, sDA and UDI measures indicate that natural daylight is insufficient to support productive work. Supplementary artificial lighting is required to work comfortably throughout working hours (8am - 6pm).
Overall: The home performs quite closely to the average overall resource use for homes in York Region, Ontario, and Canada. However, its building performance falls below current sustainability standards in regards to energy use, water use, daylighting, and acoustics. Its sustainability and efficiency could be significantly improved through an upgrade to its various building components, appliances, and fixtures.

Madison Foote
Andrea Camilleri House Retrofit Project
The project intent is to design the retrofit of a one-century old building. The design should aim for a low energy/zero energy sustainable retrofit of the old house of the writer Andrea Camilleri.
The Andrea Camilleri House retrofit project intends to redesign the late author's home into a low energy building that accommodates the Camilleri Foundation, as well as travelling authors.
The goal of the design is to create a building that meets all three pillars of sustainable design (environmental, social, and economic), while creating an identity and street presence for the Camilleri Foundation through architecture.
Andrea Camilleri House Retrofit Project
The project intent is to design the retrofit of a one-century old building. The design should aim for a low energy/zero energy sustainable retrofit of the old house of the writer Andrea Camilleri.
The Andrea Camilleri House retrofit project intends to redesign the late author's home into a low energy building that accommodates the Camilleri Foundation, as well as travelling authors.
The goal of the design is to create a building that meets all three pillars of sustainable design (environmental, social, and economic), while creating an identity and street presence for the Camilleri Foundation through architecture.

Form Development:
The form is an extension of the existing building, with the vertical circulation reaching the roof level. This extrusion increases the usable indoor floor area, while not affecting the existing building structure. This reduces the amount of demolition debris, as well as the emissions produced during the demolition process. The orientation of the new form also allows for the existing gardens to remain, while incorporating additional outdoor seating areas for the community and users of the building.
Creating an Identity:
The existing building had little transparency to the interior program. Thus, to promote community engagement, the building was ‘opened up’ at grade to showcase the social spaces and connect the users with the exterior gardens. The horizontal louvres were added for passive shading; however, their repetition creates an order amongst the chaos of the surrounding landscape.
Environmental Sustainability:
The building uses passive design strategies to reduce the amount of energy and water consumption, while maximizing natural daylighting to ensure occupant visual and thermal comfort. In addition, insulation was added to the wall, and the windows were changed to triple glazing units with low-e films to reduce the heat transfer through the assembly. These small changes will reduce the amount of energy required to condition the building.



Economic Sustainability:
The existing building façade was incorporated into the new design, and therefore additional materials for the assembly’s construction was only required for the building addition. As well, the wall assembly modifications reduce the overall conditioning costs.
In terms of flexible spaces, the new program is more dynamic and inclusive than the existing building. Therefore, it will reduce the intervention intensity upon the next retrofit of the building.

Social Sustainability:
The proposal includes a number of outdoor and indoor gathering spaces that connect directly to exterior garden spaces. The addition of
the café also promotes social inclusion as there is now a space for the community to take advantage of.




Nicole Burdynewicz
A Low Energy and Sustainable Retrofit of a 100 Year-Old Italian Building
In this studio, the aim of the final design project was to renovate an existing building in a sustainable way in terms of energy, materials, water, and social benefits. Net zero was aimed for. This was done using energy modeling software and a good understanding of climate, needs and sustainability in general. The building that was chosen was the villa of Andrea Camilleri, a notable Italian author who recently passed away. The foundation in his name was looking to renovate and add programming such as an event space, office, and live-in writer's studio.
View vitural walkthrough HERE.
A Low Energy and Sustainable Retrofit of a 100 Year-Old Italian Building
In this studio, the aim of the final design project was to renovate an existing building in a sustainable way in terms of energy, materials, water, and social benefits. Net zero was aimed for. This was done using energy modeling software and a good understanding of climate, needs and sustainability in general. The building that was chosen was the villa of Andrea Camilleri, a notable Italian author who recently passed away. The foundation in his name was looking to renovate and add programming such as an event space, office, and live-in writer's studio.
View vitural walkthrough HERE.

The Camilleri Foundation, located in Rome, Italy, is looking to renovate the house of Andrea Camilleri, who has recently passed away. Camilleri was a notable author in Italy and worldwide.
The renovation aims to make the building more sustainable and provide new program. Sustainability in this case includes not only ecological sustainability but also social and financial. The new program includes an event space on the ground floor, office space on the first floor, a guest writer’s studio on the second floor, and a proposed third floor for a second writer’s studio.
The climate in Rome is Mediterranean where the cooling season is dominant. Therefore, northern light and much shading was ideal, as well as natural ventilation. The energy grid of Italy is also natural gas-heavy and so energy generation was prioritized.
Energy efficiency was addressed through adding insulation, which was entirely lacking in the existing. The heavy limestone and brick walls were over-clad with mineral wool insulation with a stucco finish to match the context. The roof was replaced with an additional floor that would undertake many sustainable features to improve the building as a whole.
The addition of the third floor provides a means for generating electricity via solar panels, collecting rainwater for gardening, while allowing for a completely accessible unit, which is socially sustainable.
Along with an exterior platform lift, the third floor provides accessibility for not only people with physical disabilities but is also family friendly.
The front and rear scaffold structures provide shaded exterior space and pre-cools air for natural ventilation through evapotranspiration. The scaffold material, as well as other building materials can be easily salvaged from the surrounding area and is therefore economically and ecologically sustainable. It also allows for customization and further reuse. The interior doors and windows are reused from the renovation so the materials do not leave the site.
The third floor also requires very little artificial light through strategic daylighting and completely eliminates glare, as seen in the daylight autonomy study and illuminance study.
Tools used for analysis include DesignBuilder for energy modeling, WUFI for moisture transfer, and Revit’s Insight for solar energy analysis and daylighting.

Design Process and Features:
The design process focused on climate-specific design, all facets of sustainability, and minimizing the interventions to the existing structure. This being said, two major design moves were chosen based on their ability to multitask sustainable features and were designed to have a large positive effect on all aspects of sustainability.
The renovation includes two major design moves: a third floor addition and freestanding scaffold decks in the front and back of the building. The third floor addition incorporates a wide variety of sustainable features including solar panels, natural cross-ventilation, water harvesting, and diffuse daylighting with no glare. It is also a space that improves the overall social sustainability by being completely barrier free and family friendly. Since the lower floors are limiting in terms of mobility, it was imperative to include a wider variety of people as writers are not limited to able-bodied people with minimal family obligations.
The decks on the front and back provide an extensive amount of outdoor space in addition to the large backyard. These, however, also provide shade to the building, more private outdoors space and therefore more options to the occupants, and can act as a trellis to foster both climbing plants and space for urban agriculture. The evapotranspiration that the plants produce cools the space and makes the south facade much more habitable. They also provide privacy, some acoustic separation, and pre-cools air for natural ventilation.
The back deck was outfitted with a new exterior accessible lift and wrap-around stairs. A ramped bridge was also provided for easy access to the upper garden. For book readings and events, the back decks also provide ample space and views and can act as tiered seating in this way.
Other interventions include the addition of a vapour-permeable air barrier that would be liquid-applied to the brick surface. On top of this, mineral wool EIFS would be applied to insulate the whole building above the foundation. The stucco finish would match well with the surrounding rendered buildings.
To further improve the envelope, all windows and doors would be replaced with either wood or fibreglass double-glazed windows with a low solar heat gain coefficient. Both fibreglass and wood have good thermal properties and, since the climate is predominantly cooling, the low heat gain would improve the thermal comfort.
With the building vastly more airtight, a full HVAC system is required. Air-source heat pumps are proposed for both the boilers and space conditioning units, with a ventilation system with a heat exchanger. Having the boiler run using a heat pump is especially beneficial in the summer months by directing heat energy from the habitable spaces to the water. This is very efficient as it doubles up on usage while taking advantage of the ultra-efficient nature of heat pumps. Each floor would have a standalone system for optimal occupant comfort between floors. The system would also shut off if natural cross-ventilation is preferred.
![]()
![]()
The design process focused on climate-specific design, all facets of sustainability, and minimizing the interventions to the existing structure. This being said, two major design moves were chosen based on their ability to multitask sustainable features and were designed to have a large positive effect on all aspects of sustainability.
The renovation includes two major design moves: a third floor addition and freestanding scaffold decks in the front and back of the building. The third floor addition incorporates a wide variety of sustainable features including solar panels, natural cross-ventilation, water harvesting, and diffuse daylighting with no glare. It is also a space that improves the overall social sustainability by being completely barrier free and family friendly. Since the lower floors are limiting in terms of mobility, it was imperative to include a wider variety of people as writers are not limited to able-bodied people with minimal family obligations.
The decks on the front and back provide an extensive amount of outdoor space in addition to the large backyard. These, however, also provide shade to the building, more private outdoors space and therefore more options to the occupants, and can act as a trellis to foster both climbing plants and space for urban agriculture. The evapotranspiration that the plants produce cools the space and makes the south facade much more habitable. They also provide privacy, some acoustic separation, and pre-cools air for natural ventilation.
The back deck was outfitted with a new exterior accessible lift and wrap-around stairs. A ramped bridge was also provided for easy access to the upper garden. For book readings and events, the back decks also provide ample space and views and can act as tiered seating in this way.
Other interventions include the addition of a vapour-permeable air barrier that would be liquid-applied to the brick surface. On top of this, mineral wool EIFS would be applied to insulate the whole building above the foundation. The stucco finish would match well with the surrounding rendered buildings.
To further improve the envelope, all windows and doors would be replaced with either wood or fibreglass double-glazed windows with a low solar heat gain coefficient. Both fibreglass and wood have good thermal properties and, since the climate is predominantly cooling, the low heat gain would improve the thermal comfort.
With the building vastly more airtight, a full HVAC system is required. Air-source heat pumps are proposed for both the boilers and space conditioning units, with a ventilation system with a heat exchanger. Having the boiler run using a heat pump is especially beneficial in the summer months by directing heat energy from the habitable spaces to the water. This is very efficient as it doubles up on usage while taking advantage of the ultra-efficient nature of heat pumps. Each floor would have a standalone system for optimal occupant comfort between floors. The system would also shut off if natural cross-ventilation is preferred.


Energy Consumption:
Energy simulations were conducted using DesignBuilder, which is a graphic interface for EnergyPlus. The energy consumption of the proposed, including the additional floor, the energy consumption came to approximately 147 kWh/m2/year. This includes the cooling demand, however properly modelling natural ventilation would require both more research and experimentation within the software and, due to time constraints, cannot be relied upon. Additionally, the micro-climate that the plants create was also not accounted for. Finally, the efficiency of the heat pump system was also difficult to model and would have required some more time to better understand the process to build custom HVAC systems to test. These uncertainties would bring the number for energy consumption down and could hit the target 111.5 kWh/m2 that the solar panels can generate, especially when considering the COP of the heat pump.
Looking at the other energy uses the solar power would easily cover the almost 11,000 kWh that is used for lighting and equipment with over 20,000 kWh left over for heating and cooling. With proper modelling and integration of all passive strategies, this number could very well prove to be net zero.
Energy simulations were conducted using DesignBuilder, which is a graphic interface for EnergyPlus. The energy consumption of the proposed, including the additional floor, the energy consumption came to approximately 147 kWh/m2/year. This includes the cooling demand, however properly modelling natural ventilation would require both more research and experimentation within the software and, due to time constraints, cannot be relied upon. Additionally, the micro-climate that the plants create was also not accounted for. Finally, the efficiency of the heat pump system was also difficult to model and would have required some more time to better understand the process to build custom HVAC systems to test. These uncertainties would bring the number for energy consumption down and could hit the target 111.5 kWh/m2 that the solar panels can generate, especially when considering the COP of the heat pump.
Looking at the other energy uses the solar power would easily cover the almost 11,000 kWh that is used for lighting and equipment with over 20,000 kWh left over for heating and cooling. With proper modelling and integration of all passive strategies, this number could very well prove to be net zero.



Annette Chan
Net-Zero Sustainable Design Retrofit
This project seeks to retrofit the century-old villa of Andrea Camilleri, a famous Italian writer, into a sustainable, net-zero energy and water building. The existing house is a three storey building located at 8780 Via Trionfale in Rome, Italy. The proposed project features ground floor community event space for small lectures and poetry groups, a second floor office for the Camilleri foundation, a third floor residence for visiting writers, and a rooftop terrace and green roof.
To achieve a sustainable retrofit design, several strategies were employed to improve the performance of the building. The site was developed sustainably, with greenspaces for agricultural growth. Other areas featured permeable paving to support rainwater collection and stormwater management. Greywater reuse and blackwater treatment systems were also implemented. To improve occupant wellbeing, daylighting was optimized through the addition of electrochromic windows. As the existing load-bearing walls were maintained to allow for the reuse of materials, control layers were added to the envelope to improve thermal and moisture performance. Finally, photovoltaic panels were added to the roof to achieve net-zero energy for the overall project.
Net-Zero Sustainable Design Retrofit
This project seeks to retrofit the century-old villa of Andrea Camilleri, a famous Italian writer, into a sustainable, net-zero energy and water building. The existing house is a three storey building located at 8780 Via Trionfale in Rome, Italy. The proposed project features ground floor community event space for small lectures and poetry groups, a second floor office for the Camilleri foundation, a third floor residence for visiting writers, and a rooftop terrace and green roof.
To achieve a sustainable retrofit design, several strategies were employed to improve the performance of the building. The site was developed sustainably, with greenspaces for agricultural growth. Other areas featured permeable paving to support rainwater collection and stormwater management. Greywater reuse and blackwater treatment systems were also implemented. To improve occupant wellbeing, daylighting was optimized through the addition of electrochromic windows. As the existing load-bearing walls were maintained to allow for the reuse of materials, control layers were added to the envelope to improve thermal and moisture performance. Finally, photovoltaic panels were added to the roof to achieve net-zero energy for the overall project.









Abraham Paez Ramirez, Daniel Ko,
Laura Liang,
Nicole De Claro
Request For Proposal Coventry University Campus International Centre
Request For Proposal Coventry University Campus International Centre
General Project Information:
LAND ASSOCIATES in Response to a Request For Proposal from Coventry University for an International Project to be located in the city of Barcelona, Spain, proposed an energy efficient building that minimizes building footprint and construction cost, while maintaining required functions and provides optimal user experience. The transparent building façade shaded by movable aluminum louvers allows occupants the beautiful sea-side view, while resistant to the strong ocean wind and sun exposure. Other sustainable strategies incorporated into the design include passive building typology, use of natural daylight above a central atrium, energy-efficient brick façade, and an integration of photovoltaic panels combined with green roof.
Preliminary Cost Estimating:
Two different cost estimates were taken into consideration with different construction cost indices for Barcelona. The first estimate was conducted using the cost information of similar types of buildings within Spain, whereas the second estimate was presented using 2018 data from the International Construction Market Survey 2019. These estimates are preliminary, meaning that they are initial estimates to present an idea of the construction cost to the clients.
Pedestrian Bridge Link Proposal:
A shaded walkway is designed to supplement the campus to allow users of the building to a nearby viewing platform and to the urban core. The walkway integrates the use of solar panels and permeable paving.
LAND ASSOCIATES in Response to a Request For Proposal from Coventry University for an International Project to be located in the city of Barcelona, Spain, proposed an energy efficient building that minimizes building footprint and construction cost, while maintaining required functions and provides optimal user experience. The transparent building façade shaded by movable aluminum louvers allows occupants the beautiful sea-side view, while resistant to the strong ocean wind and sun exposure. Other sustainable strategies incorporated into the design include passive building typology, use of natural daylight above a central atrium, energy-efficient brick façade, and an integration of photovoltaic panels combined with green roof.
Preliminary Cost Estimating:
Two different cost estimates were taken into consideration with different construction cost indices for Barcelona. The first estimate was conducted using the cost information of similar types of buildings within Spain, whereas the second estimate was presented using 2018 data from the International Construction Market Survey 2019. These estimates are preliminary, meaning that they are initial estimates to present an idea of the construction cost to the clients.
Pedestrian Bridge Link Proposal:
A shaded walkway is designed to supplement the campus to allow users of the building to a nearby viewing platform and to the urban core. The walkway integrates the use of solar panels and permeable paving.










Potentials of Artificial Intelligence in the Construction Industry
The State of the Art report requires the investigation of an in-depth study and the preparation of professional quality report of approximately 10,000 words on a particular construction-related subject area. The level of study must be broad enough to constitute an "in depth" study and to present a challenge, but not so broad as to defy analysis and synthesis in the time available. The chosen paper goes in depth in exploring the potentials of artificial intelligence in the construction industry and the challenges that come along with it.
The architecture, engineering, and construction sector (AEC) plays a prominent role in the world’s economic growth and continually contribute long-term development initiatives. With its significant contribution to the worlds GDP and infrastructure expansion, it is important for the sector to evolve and integrate systems to ensure and optimize long term improvements for productivity, operation, and reliability. Artificial Intelligence (AI) has been adopted into multiple industries to provide automated, self learning smart machines to optimize performance, however the construction sector falls significantly behind by being one of the most under-digitized industries in the world which fails to adopt technological advancements in total. (Rao, 2019). Although AI and smart systems are slowly being introduced into the AEC to increase on-site productivity, efficiency, and provide various solutions for a project lifecycle, it is still in its early phase of adoption. This paper will highlight the potential and current uses of AI in AEC, benefits it provide, and any challenges that may arise in the project lifecycle.
View full report HERE.
View full report HERE.

Benefits and Uses of AI in AEC:
Adopting AI methods and systems in CEM will be beneficial for improving overall life cycle performance and profitability. AI can stand out as a “transformable technology to potentially bring about unprecedented changes” in the industry and relieve tasks that are labor intensive, complex, unique, and dynamic. (Pan et.al, 2021). It will aid in all aspects of a construction project; from conception to hand-off, proving to be valuable for all members involved. With the expected increase in interest and investment for AI in CEM, these intelligent systems will be able to provide suitable models to deliver promising solutions through “prediction, optimization, and decision making” to assist in construction project delivery. (Pan et.al, 2021).
The various benefits that the adoption of AI can offer in comparison to traditional methods are discussed below.
Automation:
AI systems can work to transform the daily tasks that come along with construction and procurement processes to become automated, reliable, and accurate. Pan et.al (2021) speak of the benefits machine learning algorithms could provide in automating construction tasks and project management duties through intelligently processing accumulated data for “hidden knowledge discovery”. This could be used to “facilitate automatic data analysis and decision making”, in turn increasing productivity rates and eliminating as much wasted time as possible.
Automation can also be applicable to on site activities which are tediously completed through the use of manpower and labourers. This could mean allowing repetitive tasks, such as brick laying or rebar tying, to be automated and not through human work. Drones, cameras and sensors can be integrated with AI technology to automatically record data, images, and videos to monitor construction status, environment, and progress. This would be useful to project managers and site supervisors on keeping track on any changes that may need to be made in real time. This would also provide an opportunity for “automatic methods to replace manual observation methods which can be time-consuming, tedious, and error-prone.” (Pan et. al, 2021).
Risk Mitigation:
AI systems and machine learning can assist in identifying risks and providing analysis to prevent these challenges to reoccur, reducing the tedious work of manual risk mitigation. The potentials AI bring forward for risk analysis are summarized as “AI can monitor, recognize, evaluate, and predict potential risk in terms of safety, quality, efficiency, and cost across teams and work areas even under high uncertainty, which has been predominantly adopted for risk identification, assessment, and prioritization.” (Pan et. al, 2021) Through a system which can identify and predict risks in real time, there is a great increase in not only productivity but also accuracy and reliability.
An AI integrated risk analysis system would also address the challenges and limitations of traditional risk analysis methods, which can be vague and vulnerable to errors. The McKinsey journal (Blanco et, al, 2018) discusses the importance of such systems in the construction industry, as it can utilize “predictive applications to foresee project risks, constructability, and structural stability” of various designs or solutions, and save millions of dollars down the roads and multiple hours in total.
High Efficiency:
AI systems can provide the ability for time bearing activities to be analyzed and deployed at a much higher rate of efficiency with less errors as opposed to traditional methods. AI enabled approaches using process mining (discussed in 3.4), which generates insights for complicated construction procedures, would aid in tracking workflow, predicting deviations from original schedule, collaborative efforts and patterns, and more. (Pan et. al, 2021) With a system that can derive all these conclusions at the speed of light through data collection and very deep learning methods, the results that are produced are of high quality with very little room for errors.
This can overall improve the efficiency of work both on-site and behind the scene for project managers, engineers, architects, etc. Since AI systems are also self-learning, there is a reduction in time for training, allowing for this saved time to be used for ensuring the absolute success of project delivery.
Digitization:
Adopting AI models into construction will mean that the construction industry will move to digitizing more processes, allowing for a paperless and more efficient project delivery model. This can allow for the overall adoption of technical systems, from on site to in the office, to provide a more accessible and reliable method of project delivery.
There are various systems which currently working to make this concept a reality in the sector, with BIM as the digital backbone for the integration of AI. BIM has proven to be one of the most useful software for digital collaboration and information processing, as it is able to collect large amounts of data about all aspects of the project and make the information readily available to all team members. Traditional construction practices are not easily accessible and have proven to be inefficient for communication and collaboration. Systems such as BIM allow for sharing, exchanging, and analyzing in real time for communication and collaboration (Pan et. al, year) in a transparent and accessible manner. Data from BIM can also be used to automate and improve construction processes overall, while remaining paperless and using smart technology to track risk and process.

China’s Baihetan Dam:
China’s newest hydropower plant, Figure 5, was completed in July 2020 through AI integrated systems to significantly increase the delivery process of the dam. A dam that would have typically taken 10 years was able to be completed in just 4 years through the integration of smart systems on site to monitor and improve site productivity. (Chen, 2021).
The dam stands “nearly 985 meters tall and is made with more than 8 million cubic meters of concrete” becoming the world’s second largest dam capable of “dwarfing the production of America’s Hoover Dam”. (Chen, 2021). Due to the already ambitious deadline in combination with the Covid-19 outbreak, there were concerns on if the project would be delivered in time.
This initiated the integration of AI technology which was implemented for the entirety of the project and governed almost everyone that was part of the team, “from site workers to engineers, quality inspectors and senior managers” (Chen, 2021). The main form of AI that was used for this project was the positioning of a 4G network and satellite system to track and instruct the path of travel for trucks brought onto site. “The system constantly adjusted traffic by monitoring cement mixing plants, cable machines, real tie demand on the pouring site, and remapping routes instantly if required.” (Chen, 2021). This reduced the chance of a long waiting line for trucks to enter the site, preventing the chance of slowing the project down.
Due to the integration of AI, accidents were also rare on the site since the smart system would “issue an early warning and push the information to site management personnel to eliminate a mistake before it became a problem.” (Chen, 2021). The system also worked to control the mixing, pouring, and cooling of the cement process, resulting in no errors upon inspection through the quality inspector.
Through the monitoring and surveillance of AI integrated systems, the dam was able to reduce the scheduled delivery date by 6 full years and deliver a more reliable infrastructure in the end.
Coventry Campus International Centre Project


This report outlines the steps to be taken in the execution of a proposed campus extension. The assignment includes preliminary and temporary work, a method statement, a construction programme, an environmental assessment report, and a health & safety report.
Following our response to a Request For Proposal (RFP) from Coventry University for a Campus International Centre to be located in Barcelona, Spain, this assignment requires from us the following:
Following our response to a Request For Proposal (RFP) from Coventry University for a Campus International Centre to be located in Barcelona, Spain, this assignment requires from us the following:
- Preliminary and temporary work to be performed at the start of the project. This portion will include securing the site boundary, checking for existing services, site setup, as well as a detailed list of equipment and machinery that will be used during the construction of the project.
- A detailed Method Statement outlining how the temporary and permanent works will be carried out. This portion will include diagrams explaining the construction process.
- A detailed Construction Programme. This portion will include both a construction schedule as well as a construction cost estimation and breakdown.
- An Environmental Assessment Report. This portion will address environmental concerns from Coventry University and Barcelona City as well as outline measures taken to adhere to environmental by-laws and conservation efforts.
- A Report on how we will manage Health & Safety issues during construction. This portion will address in detail how we will ensure that users of surrounding buildings will be kept safe during construction. It will also discuss measures taken to reduce noise, dust, and all manners of pollution that may affect health.
View full report HERE.

This Report outlines the processes that will be undertaken for the construction phase of a proposed campus extension for Coventry University in Barcelona, Spain. The Report goes into detail on the preliminary steps that need to be taken prior to the construction of the project, as well as considerations pertaining to safety, pedestrian diversions, site traffic, and impact on the surrounding neighbourhood and environment. This is demonstrated through a variety of diagrams, which depict the construction processes and stages with their respective on-site activities. For instance, a completed construction site plan would indicate location of landscape areas, proposed building, site boundaries, parking areas and vehicle access roads in a broader relation to the overall site context. Other construction process diagrams include: excavation logistics plan, structural logistics plan, landscaping logistic plan, and pedestrian diversion plan. Following the steps to be taken prior to construction, the construction programme, including a complete construction schedule and cost breakdown, was provided to show the progress of the project as well as the expected final cost. The construction programme provided a baseline for the project and to ensure that the project would be proceeding according to plan.

The Coventry University Campus design proposes a large landscape area surrounded by various greenery and pedestrian pathways, further promoting the notion of biodiversity within the community. Furthermore, the proposed design consists of a mainly single-storey courtyard building with an accessible green roof and solar panel installation as part of the sustainable feature of the project. The integration of green elements and advanced technology allows the building to reach a better thermal performance which could be beneficial to the environment and social quality of the site and its surrounding areas. The proposed building has also achieved the renowned BREEAM rating system with desired scores for environmental, functional, and economical purposes. The overall international centre building has achieved a 65.08% BREEAM score, resulting in a “Very Good” rating.






Bringing the Outside, In
This off-grid small building has been designed to allow residents the opportunity to connect with nature and weather conditions of their environment through the architecture's form, as it allows rain to be directed into the building in an elegant yet interactive way, ultimately bringing the outdoors inside. The building's simple extruded timber structure allows for easy and affordable construction anywhere, remote or far, warm or cold, prone to a significant amount of rainfall or not. For this project, the building has been chosen to be placed on the Wular Lake in Kashmir, India, because of its rich natural context, natural fresh lake water and frequent rain activity.
The home's roof takes inspiration from the typical A-frame home. Still, instead of having the roof's peak in the centre, causing the rainfall to be directed outward, this roof takes an inverted approach to lead the rainwater towards the centre and ultimately inside. This extruded roof has been designed specifically to allow the rainfall to be guided inside the home in an organized and direct path to ensure the rain will be entering directly onto the central planter on the ground floor and not making a mess for the rest of the home. To maintain a smaller footprint, the house utilizes a second-floor loft for the bed, which has been placed directly in front of the waterfall condition to remain connected. The roof will also feature a remote-controlled hydraulic system to open and close the roof's opening so the decision to have rain enter the home can be provided to the residents.






A Traveller's Shelter

The second and third assignments are designed to build upon investigatory research of the first assignment. The intent is to afford students the opportunity to apply the course lectures and guest presentations into a personal statement, which reflects the content of the course by way of a thorough and meaningful design exercise. The intended learning outcomes include an understanding of how small buildings relate to their immediate context, be it urban, suburban, rural or wilderness (reflecting the identity of place), how to design for specific contexts (materiality and constructability), how to look at the detail as a powerful design element and how to employ case study research as a source of inspiration, informing the design process.








Bridge Bazaar

In 1863, Mr. Thomas Alcock, the East-Surrey member of parliament, proposed an alternative to the new bridges in the city of London. Mr. Alcock suggested to provide market stalls built into the bridges and to use the rent from these booths to offset the construction expenses for the infrastructure, rather than tolling the public. His idea, which he termed “Bazaar Bridge”, had many merits, allowing lower classes to afford the use of the infrastructure, and providing walkthrough traffic for the sellers. Ultimately, the city did not move forward with this idea. Instead, it was criticized in newspapers, presented that the “Bazaar Bridge” would cause loitering in front of the shops on these bridges, slowing down traffic, would obstruct the views of the city, and would cause passersby to breathe ‘second hand’ air which was deemed unhealthy.
Although seemingly revolutionary, incorporating buildings into spanning structures is not new. In fact, building bridges simply for the purpose of crossing, only re-emerged primarily from the modernist movement in the 1930s and 40s. With the need and desire for multi-purpose infrastructure beginning to re-emerge, new typologies for public spaces need to be re-considered. Commercial programs may be viably incorporated into transit infrastructure. This holds the opportunity to both capitalize on the passage of potential buyers through the space, but also on the profit of rental spaces for local business owners in order to fund the existing infrastructure and others. The physical manifestation of merging these two programs can take the form of modular units, taking advantage of the transportability of smaller components and allowing the structure to be modified easily over time.
Although seemingly revolutionary, incorporating buildings into spanning structures is not new. In fact, building bridges simply for the purpose of crossing, only re-emerged primarily from the modernist movement in the 1930s and 40s. With the need and desire for multi-purpose infrastructure beginning to re-emerge, new typologies for public spaces need to be re-considered. Commercial programs may be viably incorporated into transit infrastructure. This holds the opportunity to both capitalize on the passage of potential buyers through the space, but also on the profit of rental spaces for local business owners in order to fund the existing infrastructure and others. The physical manifestation of merging these two programs can take the form of modular units, taking advantage of the transportability of smaller components and allowing the structure to be modified easily over time.
Such a proposal, the “Bridge Bazaar” is proposed to be implemented in Montreal, in order to rejuvenate the Île Notre Dame and the Île Saint-Helene. The element of the market, or ‘bazaar’ on the bridge would serve as a community space, serving as a place for sellers throughout Montreal to rent booths to distribute their goods.
In anticipation of Expo 67, Montreal not only created the islands in the center of the city and built pavilions on them, but also built a monorail bridge, the Expo Express, which crossed over the water to the islands which then turned around at “La Ronde”. In the years following the event, much of the architecture and infrastructure was either deconstructed or left in disarray, including the Expo Express, which was largely dismantled barring a portion which became the “Pont de la Concorde” and another bridging portion which remains abandoned in the water. Although the Île Notre Dame has since become a rowing and racing facility for the Olympics as well as a casino, while Île Saint-Helene houses the biodome and an amusement park, both islands fail to satisfy the everyday needs of the population. Save for special occasions, the islands remain largely deserted especially the northern portion of Île Notre Dame, which serves as a stockyard.
The implementation of a “Bridge Bazaar” on the Expo Express bridge remnant is intended to spur the passage of Montrealers between the Île Notre Dame and the Île Saint-Helene, catalyzing not only on beautification and reunification efforts but also the restoration of Expo 67 pavilions and artworks remaining on the site.
In anticipation of Expo 67, Montreal not only created the islands in the center of the city and built pavilions on them, but also built a monorail bridge, the Expo Express, which crossed over the water to the islands which then turned around at “La Ronde”. In the years following the event, much of the architecture and infrastructure was either deconstructed or left in disarray, including the Expo Express, which was largely dismantled barring a portion which became the “Pont de la Concorde” and another bridging portion which remains abandoned in the water. Although the Île Notre Dame has since become a rowing and racing facility for the Olympics as well as a casino, while Île Saint-Helene houses the biodome and an amusement park, both islands fail to satisfy the everyday needs of the population. Save for special occasions, the islands remain largely deserted especially the northern portion of Île Notre Dame, which serves as a stockyard.
The implementation of a “Bridge Bazaar” on the Expo Express bridge remnant is intended to spur the passage of Montrealers between the Île Notre Dame and the Île Saint-Helene, catalyzing not only on beautification and reunification efforts but also the restoration of Expo 67 pavilions and artworks remaining on the site.






Justin Arbesman and Michael Choi
St. Thomas Cathedral
What is the modern ecclesiastical typology? The tension between tradition and innovation is set at the heart of our concept.
St. Thomas Cathedral
What is the modern ecclesiastical typology? The tension between tradition and innovation is set at the heart of our concept.

Focusing around a multitude of thresholds akin to the original Hebraic tabernacle, our church aims to transport the user's perceptions from the chaotic realm of our time to a place of sacred contemplation through the careful articulation of materials and volumes.

We employed a traditional ecclesiastical material vocabulary of brick and marble to maintain the delicate and sacred specifications of the SSPX while pushing each material into the modern era.

Parametrically organized brick walls capture the faint rays of light over their curvilinear surfaces. These undulating brick walls elevate ceremonial processions as your perspective alters the lighting condition through the gaps of each brick.

Thin sheets of marble laminated within glass blanket the entire volume with a yellow and orange glow as a reimagining of stained glass.

The tridentine mass is focused solely on god - this is why the celebration of mass is done before the altar. We focused on having the altar itself as part of the architecture. It should be considered integral to the church itself as it is the element that all else must accommodate toward.




Samantha Stein & Elizabeth Young
The Ecclesia Rosa Mystica
Architectural theology is about creating an environment that embodies the beauty and purity of the divine. The incarnation and transfiguration of Christ becomes the central focus of architectural theology as the entire building is designed to create a procession to where the sacrifice takes place. In traditional Tridentine Liturgy, the rose is a reappearing image that often represents Christ’s crucifixion and resurrection. Therefore, the rose is symbolic of the sacrifice Christ made for others’ sins to open the gates of heaven. Through the usage of geometric ratios to create pure forms found in nature, and the careful usage of natural light, a sacred space is formed. The Ecclesia Rosa Mystica combines earthly materials and architectural means to embody the foretaste of heaven.
The Ecclesia Rosa Mystica
Architectural theology is about creating an environment that embodies the beauty and purity of the divine. The incarnation and transfiguration of Christ becomes the central focus of architectural theology as the entire building is designed to create a procession to where the sacrifice takes place. In traditional Tridentine Liturgy, the rose is a reappearing image that often represents Christ’s crucifixion and resurrection. Therefore, the rose is symbolic of the sacrifice Christ made for others’ sins to open the gates of heaven. Through the usage of geometric ratios to create pure forms found in nature, and the careful usage of natural light, a sacred space is formed. The Ecclesia Rosa Mystica combines earthly materials and architectural means to embody the foretaste of heaven.









Shengnan Gao
TERMINAL ZERO
According to the course description, the design focused on explorations into complex parametric design in skin and structure with ‘natural’ and mechanical ventilation integration within innovative and sustainable methods.
Inspired by the airplane path, the Turbulence concept has derived from an idea of irregular motion, namely chaos, movement and speed. The project intends to create a dynamic visual experiences within the airport, expressing the idea of irregular motion by the parametric
design. With the global pandemic in mind, the circulation design intends to separate the passengers as far as possible to ensure the rule of social distancing. Thus, international and domestic passengers have separated pathways in both departure and arrival. The offices for administration, airline personnel, and facilities are also disconnected from the public area.
TERMINAL ZERO
According to the course description, the design focused on explorations into complex parametric design in skin and structure with ‘natural’ and mechanical ventilation integration within innovative and sustainable methods.
Inspired by the airplane path, the Turbulence concept has derived from an idea of irregular motion, namely chaos, movement and speed. The project intends to create a dynamic visual experiences within the airport, expressing the idea of irregular motion by the parametric
design. With the global pandemic in mind, the circulation design intends to separate the passengers as far as possible to ensure the rule of social distancing. Thus, international and domestic passengers have separated pathways in both departure and arrival. The offices for administration, airline personnel, and facilities are also disconnected from the public area.










Rita Ruotao Wang
Terminal 0 - Morpho
Terminal zero is an extension to the existing Terminal one at Pearson International Airport in Mississauga, Ontario. The envisioned extension aims to create a contemporary, and futuristic addition to the existing structure, accommodates more domestic and international passengers.
Rather than just flapping their wings up and down like birds, butterflies contract their bodies to push air under their wings, propelling it through the air. They also have very irregular flight pattern to make it difficult for predators to catch them. Together the movement of a butterfly is dynamic also with delicate manipulations. Similar as how the butterfly combat the challenges of flying in windy days, it took human a long time to combat the challenge in aviation, and to cope with unpredictable weather conditions. Inspired by the movement of butterflies, the goal for Terminal zero is to celebrate the technological advancements in aviation with advanced technology in architecture such as parametric design. Hence, the design of Terminal Zero aims to construct an architectural expression from the movement of butterflies.
Terminal 0 - Morpho
Terminal zero is an extension to the existing Terminal one at Pearson International Airport in Mississauga, Ontario. The envisioned extension aims to create a contemporary, and futuristic addition to the existing structure, accommodates more domestic and international passengers.
Rather than just flapping their wings up and down like birds, butterflies contract their bodies to push air under their wings, propelling it through the air. They also have very irregular flight pattern to make it difficult for predators to catch them. Together the movement of a butterfly is dynamic also with delicate manipulations. Similar as how the butterfly combat the challenges of flying in windy days, it took human a long time to combat the challenge in aviation, and to cope with unpredictable weather conditions. Inspired by the movement of butterflies, the goal for Terminal zero is to celebrate the technological advancements in aviation with advanced technology in architecture such as parametric design. Hence, the design of Terminal Zero aims to construct an architectural expression from the movement of butterflies.










Sophie Twarog
Museum of Architecture
Public buildings are an expression of the politics we work in as architects, and its our responsibility to imagine a long-term life and to consider how they will develop in the
future. York Square embodies the thinking of its period. At a time when urban renewal looked to demolition as the only way forward, architects Diamond and Myers turned to preserving urban growth. The nature of the infill consolidated but valorized the existing buildings. The square advocated for urban evolution over urban revolution. This attitude was cast aside by politicians of the era and they continue to do so today, with Yorkville at its epicentre. York Square was an idea that inspired countless urbanists, architects, dancers, and musicians. The significance in the bones of this building can frame a new generation a new, or at least act as a living reminder for what once was.
Museum of Architecture
Public buildings are an expression of the politics we work in as architects, and its our responsibility to imagine a long-term life and to consider how they will develop in the
future. York Square embodies the thinking of its period. At a time when urban renewal looked to demolition as the only way forward, architects Diamond and Myers turned to preserving urban growth. The nature of the infill consolidated but valorized the existing buildings. The square advocated for urban evolution over urban revolution. This attitude was cast aside by politicians of the era and they continue to do so today, with Yorkville at its epicentre. York Square was an idea that inspired countless urbanists, architects, dancers, and musicians. The significance in the bones of this building can frame a new generation a new, or at least act as a living reminder for what once was.





VARIATION OVER UNIFORMITY
The added layer presents a congruity between how the system related to the existing in its material assembly as well as how it orders space. Its important to define an appropriate language when adding to an already complex set of built conditions. By adding a layer of glass, not only does the covered space facilitate year round accessibility but the physical qualities speak to our current progress. The canopy acts as a unifier for disparate elements while creating the opportunity for an expression of its tectonic composition. Structure is a form of fragmentation within itself. When new elements are added that relationship changes while still speaking to its original function.

CIVIC ORIENTED PROGRAM
To ensure a mixed-use building that will operate throughout the full day across an entire week, the program must cater to a public audience for community engagement. Service pairing includes exhibits space for young adults, families, and seniors to attract people outside the industry, while hosting lectures or discussions provide a platform for dialogue. The bookshop will be a main attraction to feature a wide collection of architecture, urbanism, technology, and landscape design. This will support creative students and professionals within the industry while the reading rooms, workspaces, and study rooms will facilitate longer user duration. The museum must accommodate semi-public spaces for research to bridge the academic progression to the professional practice.


CONTEXTUAL POSITION
Today, retail, and commercial space orders the city planned along the spines of Yonge and Bloor. Yorkville formed around the converging metro lines running along these streets, to create the most prominent intersection in the city. Key institutions within the existing Museum Park and the University of Toronto attract a prospective audience while utilizing existing infrastructure for the Museum of Architecture. These conditions extend cultural and academic programs towards Yorkville to create a public platform in a neighborhood threatened by privatization.


Adam Hollings & Emily Phagoo
![]()
Media Factory: The Digital Consumer Utopia

Social Media Influencers create a physical community and factory for the production of digital media through the architectural spaces of what are referred to as the Collab House. These houses provide for the required production spaces needed for digital media videos and photos, and are managed media production facilities owned by talent scout managers, organizations, and sometimes the Influencers themselves.
Inside the Media Factory of the Collab House, and using themselves as advertisement imagery, individuals are machines for the constant quota driven production of sponsored revenue generating digital media.
The Media Factory functions as a community and hub for digital marketing. The community allows for the necessary personal and social environments used for social media Influencer marketing. From the center of media in New York: Times Square, working your way in beyond the billboards, there are opportunities to collab, form a window into your life, and produce content! Amenities include: gyms, pools, mirrors, living rooms, car flexing areas, activities, individual private spaces, and bathroom video studios! In the recesses of the factory, you can retreat to "solitude", edit your videos, produce private content, and choose to expose or portray yourself to the outside however you wish.
Inside the Media Factory of the Collab House, and using themselves as advertisement imagery, individuals are machines for the constant quota driven production of sponsored revenue generating digital media.
The Media Factory functions as a community and hub for digital marketing. The community allows for the necessary personal and social environments used for social media Influencer marketing. From the center of media in New York: Times Square, working your way in beyond the billboards, there are opportunities to collab, form a window into your life, and produce content! Amenities include: gyms, pools, mirrors, living rooms, car flexing areas, activities, individual private spaces, and bathroom video studios! In the recesses of the factory, you can retreat to "solitude", edit your videos, produce private content, and choose to expose or portray yourself to the outside however you wish.





Jack Hache & Meredith Davis
How will we Live Together?
How will we Live Together?
—
Re-Interpreting the Existing Workplace: The Seagram Building

Re-Interpreting the Existing Workplace: The Seagram Building
With the COVID-19 pandemic and a growing work from home model, the typologies live, work and community have drastically shifted. Along with this shift, many office towers are predicted to be rendered obsolete. Cities have also experienced a loss of community. This project explores how potentially obsolete office towers can be repurposed to create a new typology that combines the home, work, and community.
As an icon of the modern office tower, Mies van der Rohe’s Seagram Building in New York was chosen for these explorations. The existing building was altered based on the guiding philosophy of “facilitating community through a multi-layered framework of exposure to the home, the work, and the
The guiding philosophy begins with circulation (as displayed in yellow), which provides a connection of people through exposure and spontaneous interaction. Bringing in the home (as displayed in red), this exposure connects residents and others passing through. The element of work (as displayed in blue) adds another layer of interaction to this framework. Lastly, the initial community path penetrates through the work and live layers. By creating layers of different use, privacy, and scale, there are both formal and informal areas where community can occur. This framework provides people with a means to grow and determine how live and work accordingly.
With the COVID-19 pandemic and a growing work from home model, the typologies live, work and community have drastically shifted. Along with this shift, many office towers are predicted to be rendered obsolete. Cities have also experienced a loss of community. This project explores how potentially obsolete office towers can be repurposed to create a new typology that combines the home, work, and community.
As an icon of the modern office tower, Mies van der Rohe’s Seagram Building in New York was chosen for these explorations. The existing building was altered based on the guiding philosophy of “facilitating community through a multi-layered framework of exposure to the home, the work, and the
The guiding philosophy begins with circulation (as displayed in yellow), which provides a connection of people through exposure and spontaneous interaction. Bringing in the home (as displayed in red), this exposure connects residents and others passing through. The element of work (as displayed in blue) adds another layer of interaction to this framework. Lastly, the initial community path penetrates through the work and live layers. By creating layers of different use, privacy, and scale, there are both formal and informal areas where community can occur. This framework provides people with a means to grow and determine how live and work accordingly.





How can an existing office building - potentially obsolete - form a new relationship of live, work, and community?



Kavita Garg &
Julie Guevara
How will we Live Together?
How will we Live Together?
—
Five Points towards Land having agency

The subject in focus here is Land, where we recognize Her as a living entity, who has the capacity to exert influence. This is the basis of our Thesis ‘Five Points towards Land having agency’, which is an exercise in ‘Listening to Land’ to rethink a new worldview.
The threshold is a meeting place for the informal and formal, where borders are used to facilitate order to the ephemeral. The articulation of boundary edges in architecture produces artificial thresholds such as property lines on maps that divide the Land. Property lines are the first step in dis-connectivity, and once humans are disconnected, they stop listening to Land. The understanding of disconnect, comes from the analysis of the ‘power of map’ that draws imaginary lines on paper that can dis-value communities, belief systems and collective histories attached to Land elements. Amidst Canada’s ‘land back movement’ conflict between the Indigenous and Colonial systems, we question ‘Which way of the land is the rightful one? How can these borders be altered to become forces of progress rather than oppression? ‘
Our thinking directs on co-existence of stewards and settlers, where our focus is less on designing spaces for Indigenous peoples, and more on the role of the settlers in this context and how it can be challenged. We began our investigation in an area of Toronto where Land was flourishing and can break free. Subsequently, we began questioning ‘What would land look like if we saw it in a different way?’ Through further research, we listened to the history of land, where she was hurting, where she was thriving, to help us conceptualize a set of tools.
We present these five tools to help us revolutionize the way we conceive the future of Land, using visualization in a blend of intuition and logic. We decided to explore a multiplicity of tools rather than a singular strategy to determine the design to produce something new because Andre Lorde quotes, ‘The master’s tools will never dismantle the master’s house’.
Five points towards Land having agency:
1. We should have a reciprocal relationship with Land as ‘give and take’ rather than ‘take take take’.
2. Land is not property. Land is not capital. Land is a living being with rights and should be listened to and respected.
3. Land wants to breathe.
4. Incorporating Land’s natural state to create decentralized societies that are less selfish.
5. Time driven by property is a linear relationship acting to an end, but time driven by Land is a circular relationship that is continually regenerative. Land should be conceptualized as intergenerational, considering both ancestral and future beings.
The threshold is a meeting place for the informal and formal, where borders are used to facilitate order to the ephemeral. The articulation of boundary edges in architecture produces artificial thresholds such as property lines on maps that divide the Land. Property lines are the first step in dis-connectivity, and once humans are disconnected, they stop listening to Land. The understanding of disconnect, comes from the analysis of the ‘power of map’ that draws imaginary lines on paper that can dis-value communities, belief systems and collective histories attached to Land elements. Amidst Canada’s ‘land back movement’ conflict between the Indigenous and Colonial systems, we question ‘Which way of the land is the rightful one? How can these borders be altered to become forces of progress rather than oppression? ‘
Our thinking directs on co-existence of stewards and settlers, where our focus is less on designing spaces for Indigenous peoples, and more on the role of the settlers in this context and how it can be challenged. We began our investigation in an area of Toronto where Land was flourishing and can break free. Subsequently, we began questioning ‘What would land look like if we saw it in a different way?’ Through further research, we listened to the history of land, where she was hurting, where she was thriving, to help us conceptualize a set of tools.
We present these five tools to help us revolutionize the way we conceive the future of Land, using visualization in a blend of intuition and logic. We decided to explore a multiplicity of tools rather than a singular strategy to determine the design to produce something new because Andre Lorde quotes, ‘The master’s tools will never dismantle the master’s house’.
Five points towards Land having agency:
1. We should have a reciprocal relationship with Land as ‘give and take’ rather than ‘take take take’.
2. Land is not property. Land is not capital. Land is a living being with rights and should be listened to and respected.
3. Land wants to breathe.
4. Incorporating Land’s natural state to create decentralized societies that are less selfish.
5. Time driven by property is a linear relationship acting to an end, but time driven by Land is a circular relationship that is continually regenerative. Land should be conceptualized as intergenerational, considering both ancestral and future beings.









Surveillance and Control:
The Role of Architecture in a Digital Monitoring World
Introduction
As our lives start to shift into a majority online presence, we are forced to take a step back and re-evaluate the drastic change the digital world has on our lives, and our society. The technical realm has been slowly and steadily overtaking and redefining every rule and order of our live. We continue to celebrate the capabilities the technical realm offers without questioning the risks and fragility it leaves behind.1
I’ve often noticed the strange way people with laptops tend to put a little sticker over their built-in camera. They do so as if their camera was an eye-like hole that represents the vast of surveillance beyond. This paranoia is fueled by countless news and media outlets that propagate the idea of a faceless FBI detachment supposedly watching your every move2, where homes and bedrooms might be considered private to strangers, but exposed to anyone who has the ability to access cameras and phones. It begs the question – is there still privacy in an ever-changing digital world?
Essay Structure
This essay will explore how surveillance and control have evolved throughout the years, and how its shift to the digital realm creates new possibilities for architectural responses. New technological advances, such as artificial intelligence and facial recognition, could prove to be the foundation for new architectural typologies and design rules, rendering an unrecognizable future. The essay will start with traditional forms of surveillance, such as sovereign societies the design of panopticons, later diving into modern theories of control regimes such as the concept of liquid surveillance and pharmacopornographic societies. Finally, it will explore the case study of Sidewalk Labs and other potential new developments of similar smart cities, in regards to how elements of surveillance played a part in their demise.
As our lives start to shift into a majority online presence, we are forced to take a step back and re-evaluate the drastic change the digital world has on our lives, and our society. The technical realm has been slowly and steadily overtaking and redefining every rule and order of our live. We continue to celebrate the capabilities the technical realm offers without questioning the risks and fragility it leaves behind.1
I’ve often noticed the strange way people with laptops tend to put a little sticker over their built-in camera. They do so as if their camera was an eye-like hole that represents the vast of surveillance beyond. This paranoia is fueled by countless news and media outlets that propagate the idea of a faceless FBI detachment supposedly watching your every move2, where homes and bedrooms might be considered private to strangers, but exposed to anyone who has the ability to access cameras and phones. It begs the question – is there still privacy in an ever-changing digital world?
Essay Structure
This essay will explore how surveillance and control have evolved throughout the years, and how its shift to the digital realm creates new possibilities for architectural responses. New technological advances, such as artificial intelligence and facial recognition, could prove to be the foundation for new architectural typologies and design rules, rendering an unrecognizable future. The essay will start with traditional forms of surveillance, such as sovereign societies the design of panopticons, later diving into modern theories of control regimes such as the concept of liquid surveillance and pharmacopornographic societies. Finally, it will explore the case study of Sidewalk Labs and other potential new developments of similar smart cities, in regards to how elements of surveillance played a part in their demise.
The Death of Dark Alleys & Removal of Architecture as Vessel
As digital surveillance becomes more ubiquitous, it will cause the removal of so-called dark alleys in the built environment. No longer will there be spaces that are invisible to the omnipresence of surveillance, which may lead to the facilitation of spatial complexity due to the sense that every nook and cranny has the potential to be monitored at all times. Fundamentally, on an architectural scale, it would cease to influence the design of architecture, due to the simple fact that architecture itself is saturated by surveillance. Architecture transitions from a vessel of power and control, gradually to nothing more than fundamental shelter itself. Surveillance is a tool for social control, but it should not be thought of as a tool for stopping crime. Instead, surveillance should be considered an aid to post-crime punishment. Unlike Minority Report, there is no guarantee that an artificially intelligent machine can predict crime on an unbiased scale. Thus, surveillance, regardless of digital or physical manifestation, should be about maintaining social justice, and at the foundation of it, the use of mass surveillance is a political issue of use and policy.
Traditional forms of Surveillance
The Sovereign Society - Torture
To understand the history of social control, Foucault begins with the most basic understanding of control – that of monarchies and sovereign power.3 Generally referring to classical or medieval times, these forms of government have minimal observational and surveillance power, unable to physically see into the homes of every citizen. Instead, they must resort to basic public execution and corporal punishments to make a spectacle of their control over society. Public hangings, display of bodies, these were all a form of ceremony to send a message to the public, a warning to those who would dare rebel and attack the authority of those in power. Thus, any crime automatically becomes an opportunity to reinforce the rigid hierarchical structure of a sovereign society. As seen in figure 1, as Foucault describes, “These convicts, distinguished by their ‘infamous dress’ and shaven heads, ‘were brought before the public. The sport of the idle and the vicious, they often become incensed, and naturally took violent revenge upon the aggressors.
As digital surveillance becomes more ubiquitous, it will cause the removal of so-called dark alleys in the built environment. No longer will there be spaces that are invisible to the omnipresence of surveillance, which may lead to the facilitation of spatial complexity due to the sense that every nook and cranny has the potential to be monitored at all times. Fundamentally, on an architectural scale, it would cease to influence the design of architecture, due to the simple fact that architecture itself is saturated by surveillance. Architecture transitions from a vessel of power and control, gradually to nothing more than fundamental shelter itself. Surveillance is a tool for social control, but it should not be thought of as a tool for stopping crime. Instead, surveillance should be considered an aid to post-crime punishment. Unlike Minority Report, there is no guarantee that an artificially intelligent machine can predict crime on an unbiased scale. Thus, surveillance, regardless of digital or physical manifestation, should be about maintaining social justice, and at the foundation of it, the use of mass surveillance is a political issue of use and policy.
Traditional forms of Surveillance
The Sovereign Society - Torture
To understand the history of social control, Foucault begins with the most basic understanding of control – that of monarchies and sovereign power.3 Generally referring to classical or medieval times, these forms of government have minimal observational and surveillance power, unable to physically see into the homes of every citizen. Instead, they must resort to basic public execution and corporal punishments to make a spectacle of their control over society. Public hangings, display of bodies, these were all a form of ceremony to send a message to the public, a warning to those who would dare rebel and attack the authority of those in power. Thus, any crime automatically becomes an opportunity to reinforce the rigid hierarchical structure of a sovereign society. As seen in figure 1, as Foucault describes, “These convicts, distinguished by their ‘infamous dress’ and shaven heads, ‘were brought before the public. The sport of the idle and the vicious, they often become incensed, and naturally took violent revenge upon the aggressors.

To prevent them from returning injuries which might be inflicted on them, they were encumbered with iron collars and chains to which bombshells were attached, to be dragged along while they performed their degrading service, under the eyes of keepers armed with swords, blunderbusses and other weapons of destruction.”4 In these societies, particularly the ones from before the 18th century, communication was mainly through word-of-mouth, so you could not have any type of information that is guaranteed to reach every household or individual.5 If you want to instill fear into the hearts of many, the best way to do so is through something so public and monumental that hundreds would watch, but thousands would hear through tales and rumors. Few events have as much impact on the masses than a public corporal punishment. If the impression of the gallows at a public square was enough of a reminder of sovereign power, then the society was more or less controlled, the social order was maintained, and the existing power structure was preserved. The architecture that represented power, in this case, was a simple artifact that reinforced the possibility of such public corporal punishment, working alongside a similar representation of the power and stability of higher power, such as castle walls, rigid but lavish palaces, etc. These types of architecture help to promote the one concept that is vital to society – the absoluteness of power.6
A Panopticon Society of Control - Punishment
The 18th century marked a radical shift in the concept of surveillance and social control, with the introduction of the panopticon.7 The idea began as a basic solution to solve issues of watching factory workers in a particularly underperforming factory. However, this architectural format was quickly adapted as a more effective way to organize a prison layout. This began the shift in power and control in a post-sovereign world. The panopticon was likely perceived to be, at first, a utilitarian organizational method that would effectively utilize minimal manpower to maximize efficiency. In the case of prisons, it meant having minimal guards to watch over a maximum number of prisoners. However, it was the dynamic power balance, this asymmetry between watcher and prisoner, that became central to later concepts of surveillance and control. The watchers are, in this instance, the ones who have the power. Armed with the knowledge of knowing who and what they are observing at any given time. The inmates, on the other hand, are severely disadvantaged because they have lost the ability to know if they are being watched or not. A constant prickling fear of punishment due to the unknown presence of the all-seeing eye leads to self-policing.8
The panopticon thus effectively implemented social control by the few (powerful) over the many (society). As compared to the sovereign society, the fear of physical punishment remains, but the representation of power through knowledge is transitioned to a non-visual state. Instead of fearing guards or police physically checking in at random times, now the mental idea of authority hovers over the inmate’s heads constantly. Foucault later explains this very concept in Discipline and Punish, “the Panopticon must not be understood as a dream building: it is the diagram of a mechanism of power reduced to its ideal form; its functioning, abstracted from any obstacle, resistance or friction, must be represented as a pure architectural and optical system: it is in fact a figure of political technology that may and must be detached from any specific use.”9 That is to say, the actual architecture of the panopticon means very little. It is stead the shift of power within the design that lays the foundation for a new surveillance society. Bauman similarly dissects the concept, citing it as being an opposition between freedom and unfreedom. A peaceful existence is all that is required of the inmates, and as it is humanity’s basic instinct, they will seek happiness through their own behavioral control.10 The small nudge of reminder through a guard tower placed at the center of their lives, physical or digital, is enough to assure them that peace will be maintained so long as they live under the design of the powerful.11
The 18th century marked a radical shift in the concept of surveillance and social control, with the introduction of the panopticon.7 The idea began as a basic solution to solve issues of watching factory workers in a particularly underperforming factory. However, this architectural format was quickly adapted as a more effective way to organize a prison layout. This began the shift in power and control in a post-sovereign world. The panopticon was likely perceived to be, at first, a utilitarian organizational method that would effectively utilize minimal manpower to maximize efficiency. In the case of prisons, it meant having minimal guards to watch over a maximum number of prisoners. However, it was the dynamic power balance, this asymmetry between watcher and prisoner, that became central to later concepts of surveillance and control. The watchers are, in this instance, the ones who have the power. Armed with the knowledge of knowing who and what they are observing at any given time. The inmates, on the other hand, are severely disadvantaged because they have lost the ability to know if they are being watched or not. A constant prickling fear of punishment due to the unknown presence of the all-seeing eye leads to self-policing.8

The panopticon thus effectively implemented social control by the few (powerful) over the many (society). As compared to the sovereign society, the fear of physical punishment remains, but the representation of power through knowledge is transitioned to a non-visual state. Instead of fearing guards or police physically checking in at random times, now the mental idea of authority hovers over the inmate’s heads constantly. Foucault later explains this very concept in Discipline and Punish, “the Panopticon must not be understood as a dream building: it is the diagram of a mechanism of power reduced to its ideal form; its functioning, abstracted from any obstacle, resistance or friction, must be represented as a pure architectural and optical system: it is in fact a figure of political technology that may and must be detached from any specific use.”9 That is to say, the actual architecture of the panopticon means very little. It is stead the shift of power within the design that lays the foundation for a new surveillance society. Bauman similarly dissects the concept, citing it as being an opposition between freedom and unfreedom. A peaceful existence is all that is required of the inmates, and as it is humanity’s basic instinct, they will seek happiness through their own behavioral control.10 The small nudge of reminder through a guard tower placed at the center of their lives, physical or digital, is enough to assure them that peace will be maintained so long as they live under the design of the powerful.11
Post-Panopticon Regime – Discipline
Slowly but surely, prisons began to change, alongside society and its use of control. What was formerly no more than a tiny space in which solitude, a lack of freedom and engineered boredom was the main focus of prisons, there now exists a new set of rules that began to shift how people were to behave. The exact scale of control changed drastically, from the former treatment of prisoners as a whole to the gradual separation of the mind from the body. New regimes and rules in prison are now designed to attack the mind, creating what Foucault called a more “docile” person.12 A subtleness went into the design of these rules and regimes, it was less about force and more about getting the body and mind to become adapt to certain binding rules, to adapt to a series of influences that would eventually become manifested within. If a man were to be woken up at 6 am every single day for 10 years, he would continue waking up at this time for the rest of his life. His mind and body have become accustomed to this way of living, and thus he is a slave of this simple rule.13 Current society tends to think of past decades as less reformed, more barbaric, and this mindset is applied to the previous way punishment regimes were run. Activities such as flagging and simple confinement are understood to be savage behaviors, as individuals of power believed that reform should come from the mind, not the body. More “enlightened” thinkers sought to develop ways to create a more docile and safe society, and thus the discipline regime was pushed to be incorporated into other facilities. The most notable ones are schools and militaries. This concept is not hard to see in the current context, as both schools and militaries drill into individuals the importance of rules and discipline. Young children are expected to bury their instincts to explore and instead must sit quietly and obey all the rules of their teacher. Similarly, militaries are even more strict when it comes to rigid timetables and mundane tasks, all posed under the idea that adhering to rules and performing orders will make you a more “successful” soldier. It is precisely this advertised outcome that will often see children who misbehaved regularly be sent to a stricter school. Similarly, young rebellious teens are sent to the military to “whip them into shape”. These rehabilitation centers take in those who do not conform to a traditional model of society, or as Foucault calls them, “abnormal”, and reshapes them to be more docile and easier to manipulate into subjects.14 The architecture of these places generally has alarming similarities. They are generally stereotypically rigid in layout, with closely guarded spaces and fixed furniture (think children’s desks bolted to the ground). There were hard restrictions on which facilities were open to participants and which were out of bounds, deemed private to all but those in power, there were solid sturdy walls and sharp corners, with fencing meant to keep people from leaving the premise at random. At the fundamental scale, the shift from the panopticon to the disciplinary regime was one of shifts of power structure. The panopticon can be seen as a concept of mutual engagement, two sides of the power relationship confront each other and create a balance of control. This asymmetrical power dynamic began from the sovereigns, where power was taken through wars and force. However, now it is taken through strategies and tactics, games played by the few on the many, a game where the final outcome is to acquire power by whatever means necessary.
Slowly but surely, prisons began to change, alongside society and its use of control. What was formerly no more than a tiny space in which solitude, a lack of freedom and engineered boredom was the main focus of prisons, there now exists a new set of rules that began to shift how people were to behave. The exact scale of control changed drastically, from the former treatment of prisoners as a whole to the gradual separation of the mind from the body. New regimes and rules in prison are now designed to attack the mind, creating what Foucault called a more “docile” person.12 A subtleness went into the design of these rules and regimes, it was less about force and more about getting the body and mind to become adapt to certain binding rules, to adapt to a series of influences that would eventually become manifested within. If a man were to be woken up at 6 am every single day for 10 years, he would continue waking up at this time for the rest of his life. His mind and body have become accustomed to this way of living, and thus he is a slave of this simple rule.13 Current society tends to think of past decades as less reformed, more barbaric, and this mindset is applied to the previous way punishment regimes were run. Activities such as flagging and simple confinement are understood to be savage behaviors, as individuals of power believed that reform should come from the mind, not the body. More “enlightened” thinkers sought to develop ways to create a more docile and safe society, and thus the discipline regime was pushed to be incorporated into other facilities. The most notable ones are schools and militaries. This concept is not hard to see in the current context, as both schools and militaries drill into individuals the importance of rules and discipline. Young children are expected to bury their instincts to explore and instead must sit quietly and obey all the rules of their teacher. Similarly, militaries are even more strict when it comes to rigid timetables and mundane tasks, all posed under the idea that adhering to rules and performing orders will make you a more “successful” soldier. It is precisely this advertised outcome that will often see children who misbehaved regularly be sent to a stricter school. Similarly, young rebellious teens are sent to the military to “whip them into shape”. These rehabilitation centers take in those who do not conform to a traditional model of society, or as Foucault calls them, “abnormal”, and reshapes them to be more docile and easier to manipulate into subjects.14 The architecture of these places generally has alarming similarities. They are generally stereotypically rigid in layout, with closely guarded spaces and fixed furniture (think children’s desks bolted to the ground). There were hard restrictions on which facilities were open to participants and which were out of bounds, deemed private to all but those in power, there were solid sturdy walls and sharp corners, with fencing meant to keep people from leaving the premise at random. At the fundamental scale, the shift from the panopticon to the disciplinary regime was one of shifts of power structure. The panopticon can be seen as a concept of mutual engagement, two sides of the power relationship confront each other and create a balance of control. This asymmetrical power dynamic began from the sovereigns, where power was taken through wars and force. However, now it is taken through strategies and tactics, games played by the few on the many, a game where the final outcome is to acquire power by whatever means necessary.
Modern Surveillance in a Modern World
Capitalism is not a new concept. Lots of current issues in society can be considered as a direct result of capitalism, as its fundamental definition puts profit at the forefront of all that is deemed to be important, rendering humanity as second-tier considerations.15 People have always been exploited for the sake of profit, such as underpaid labor, class exploitation. These have all been around since the beginning of capitalism in the 17th century.16 However, as technology advances, there is a new form of capitalism on the rise, one defined as Surveillance Capitalism. To understand surveillance Capitalism, we must first consider Zygmund Bauman’s concept of modernity.
Liquid Modernity
Bauman coins the current period in society as a liquid modernity, one that is plastic and fluid compared to past periods of modernity. He claims that society is heading towards a phenomenon of fragility and vulnerability, one pushed by a steadily driven economic globalization.17 The push for a liquid state comes from the need for a neoliberal economic system, one that can freely operate in a society without a solid structure norm. This leads to the phenomenon of having everything be an economic potential – everything from religion to food can be marketed and sold to consumers, each element of society is a market piece.18 As the rules and regulations that generally impede capitalism are removed, corporations become the new conglomerate of mega-companies become the new sovereign of this globalized world. The concept of liquid also defines a new understanding of the individual in this state of modernity. If capitalism must sell to individuals to continue existing, then the fundamental status of each person is rendered as an individual solitary consumer. The identity of a holistic or collective grouping of our lives are erased, social and cultural bonds are dissolved, everyone is freed from the norms of society. However, as much as this freedom sounds enticing, it also leads to the uncertainty and fragility of a liquid state, as individuals are given freedom but also are demanded to be adaptable and non-conforming, to survive in such a rapidly changing society. As Bauman states, the shift in power control is the fundamental reason for this liquid state, stemming from the separation of power and politics.19 Politicians and governments are no longer the sole members who possess the power to change society, it has now also fallen into the hands of other aspects of our lives, from cyberspace to giant corporations. There is no one man in charge, and as a result, the unpredictability of society renders it a non-solid state. Such is the new state of surveillance and control.
Pharmacopornographic Regime
Beatriz Preciado also discusses the transition from a disciplinary regime before the 1900s to the current new regime of control. The disciplinary one, as he calls biopower, is a “tentacular and collective utopia of national health and reproduction connected to a series of dystopic confining institutions for the normalization of the body and subjectivity.”20 So, architecture, in this regime, is less so a virtual representation, but something that functions as a political vessel to physically create, morph, and reshape bodies to fit into a structured norm. One example Preciado gives is the birth of modern hospitals in France, the most explicit example of the study of architecture as a governmental technique. The layout of the hospital is one that represents a spatialization of medical knowledge and power, a physical manifestation of the technology and skills used in the disciplinary regime, a power of subjectivation.21
Capitalism is not a new concept. Lots of current issues in society can be considered as a direct result of capitalism, as its fundamental definition puts profit at the forefront of all that is deemed to be important, rendering humanity as second-tier considerations.15 People have always been exploited for the sake of profit, such as underpaid labor, class exploitation. These have all been around since the beginning of capitalism in the 17th century.16 However, as technology advances, there is a new form of capitalism on the rise, one defined as Surveillance Capitalism. To understand surveillance Capitalism, we must first consider Zygmund Bauman’s concept of modernity.
Liquid Modernity
Bauman coins the current period in society as a liquid modernity, one that is plastic and fluid compared to past periods of modernity. He claims that society is heading towards a phenomenon of fragility and vulnerability, one pushed by a steadily driven economic globalization.17 The push for a liquid state comes from the need for a neoliberal economic system, one that can freely operate in a society without a solid structure norm. This leads to the phenomenon of having everything be an economic potential – everything from religion to food can be marketed and sold to consumers, each element of society is a market piece.18 As the rules and regulations that generally impede capitalism are removed, corporations become the new conglomerate of mega-companies become the new sovereign of this globalized world. The concept of liquid also defines a new understanding of the individual in this state of modernity. If capitalism must sell to individuals to continue existing, then the fundamental status of each person is rendered as an individual solitary consumer. The identity of a holistic or collective grouping of our lives are erased, social and cultural bonds are dissolved, everyone is freed from the norms of society. However, as much as this freedom sounds enticing, it also leads to the uncertainty and fragility of a liquid state, as individuals are given freedom but also are demanded to be adaptable and non-conforming, to survive in such a rapidly changing society. As Bauman states, the shift in power control is the fundamental reason for this liquid state, stemming from the separation of power and politics.19 Politicians and governments are no longer the sole members who possess the power to change society, it has now also fallen into the hands of other aspects of our lives, from cyberspace to giant corporations. There is no one man in charge, and as a result, the unpredictability of society renders it a non-solid state. Such is the new state of surveillance and control.
Pharmacopornographic Regime
Beatriz Preciado also discusses the transition from a disciplinary regime before the 1900s to the current new regime of control. The disciplinary one, as he calls biopower, is a “tentacular and collective utopia of national health and reproduction connected to a series of dystopic confining institutions for the normalization of the body and subjectivity.”20 So, architecture, in this regime, is less so a virtual representation, but something that functions as a political vessel to physically create, morph, and reshape bodies to fit into a structured norm. One example Preciado gives is the birth of modern hospitals in France, the most explicit example of the study of architecture as a governmental technique. The layout of the hospital is one that represents a spatialization of medical knowledge and power, a physical manifestation of the technology and skills used in the disciplinary regime, a power of subjectivation.21
So, on the next evolution path of power regimes, Preciado brings forth a new concept, one morphed from the three main tools used in this new society – pharmaceuticals, pornography, and graphics and media. The biopower techniques have slowly mutated to adapt to a new emerging society, one that is filled with technology, social media, and the wildest drugs imaginable, thus, the elements of a controllable individual extend to the body, sex, race, and sexuality.22 Instead of the power punishing you or disciplining you after you have been deemed uncontrollable, the dynamic shifts completely. You are designed, created, and conditioned from the moment of birth, reducing the risk of anomalies, and more importantly, the tangible weapons of control become invisible, creating the illusion that there never was anyone controlling you in the first place. The human body becomes a “clip-on port for biopolitical technologies”, and in turn, architecture becomes “night-of-the-living-dead”.23 It is lifeless, thoughtless, meaningless, and exists only to serve the purpose of control, without contempt for the purpose of the individual. If the body, sex, race, soul, is the new target of control, and the weapons used are micro, unseen, intangible, and invisible, then it only makes sense that as the regime mutates to be micro, so too does architecture. “In the pharmacopornographic regime, the body no longer inhabits disciplinary places but is now inhabited by them. Architecture exists in us.”24 In such a society, one can argue that the very idea of architecture becomes porn, the idea of property ownership, the fancy dazzling images of houses and apartments on Instagram, the millions of articles on Archdaily and Dezeen, are these not pornography intended to entice and lead us to think that these are objects of desire that we crave, a glittering simulation that promises a better life.
Whether it’s Trump's gold dazzling apartment in New York or IKEA’s more modest living room sets, architecture becomes part of the porno weapon in a pharmacopornographic society, just another enticing object to lead you to follow the path designed by the power.
Surveillance Capitalism
Similar to Bauman’s concept of Liquid Modernity, Shoshana Zuboff discusses the term information civilization, one that entangles the very basic question of knowledge, authority, and power, tracing their roots to the necessities of daily life and every form of social participation.25 This type of surveillance capitalism renders all human experience as free, raw material for translation into behavioral data, fed into “machine intelligence” and fabricated into prediction products that anticipate and design your future move.26 Like a skilled gardener, capitalism waters and watches all the plants, nudging, coaxing, tuning, and herding until all the flowers grow to conform to his exact satisfaction – a profitable outcome.27 “At its core, surveillance capitalism is parasitic and self-referential. It revives Karl Marx’s old image of capitalism as a vampire that feeds on labor, but with an unexpected turn. Instead of labor, surveillance capitalism feeds on every aspect of every human’s experience.”28 What’s perhaps worse, is the fact that society is unaware of this turn of control, individuals are taught that they’re not worth watching, and thus willingly pay for our domination, through smart speakers, amazon accounts, phones, and smart TVs, all the gadgets we surround ourselves with. Perhaps the most visible evidence of this is the smart cities concept.

Whether it’s Trump's gold dazzling apartment in New York or IKEA’s more modest living room sets, architecture becomes part of the porno weapon in a pharmacopornographic society, just another enticing object to lead you to follow the path designed by the power.
Surveillance Capitalism
Similar to Bauman’s concept of Liquid Modernity, Shoshana Zuboff discusses the term information civilization, one that entangles the very basic question of knowledge, authority, and power, tracing their roots to the necessities of daily life and every form of social participation.25 This type of surveillance capitalism renders all human experience as free, raw material for translation into behavioral data, fed into “machine intelligence” and fabricated into prediction products that anticipate and design your future move.26 Like a skilled gardener, capitalism waters and watches all the plants, nudging, coaxing, tuning, and herding until all the flowers grow to conform to his exact satisfaction – a profitable outcome.27 “At its core, surveillance capitalism is parasitic and self-referential. It revives Karl Marx’s old image of capitalism as a vampire that feeds on labor, but with an unexpected turn. Instead of labor, surveillance capitalism feeds on every aspect of every human’s experience.”28 What’s perhaps worse, is the fact that society is unaware of this turn of control, individuals are taught that they’re not worth watching, and thus willingly pay for our domination, through smart speakers, amazon accounts, phones, and smart TVs, all the gadgets we surround ourselves with. Perhaps the most visible evidence of this is the smart cities concept.
A Future of Surveillance – the Smart Regime
From Smart Devices to Smart Cities
As people become accustomed to a work/study life at home (this shift, one can argue, started happening even pre-COVID), their digital setup slowly increases. Starting with laptops and pcs, and then comes the need to accessorize and expand the capabilities of these basic digital devices. Slight conveniences of life are being advertised as being the future of home living, and all you would have to sacrifice is your data being collected by whatever company is selling you these smart devices, and to some, that may not seem like a big deal. This phenomenon not only happens at the small scale, it is also being applied to the city scale. For cities, larger smart tactics promise more urban innovations to solve uniquely urban problems, things such as traffic control, waste management, housing, transit, etc. However, the very idea of being “smart” is an extremely relative concept, as for cities, being smart is about faster smoother functioning and attracting money and technology. For the technology companies, being smart is about a method of capturing the rising value of data flow, the next big evolution in knowledge control. Data can be used to either directly monetize behavior insights, or indirectly to control and persuade services from the public.29
Sidewalk Labs
In 2017, Waterfront Toronto sent out a request for proposals to develop a formerly industrial piece of land on the Toronto waterfront. They wanted to find an “innovation and funding partner”, one who can help transform the land into a shiny new development along the waterfront.30 At that time, Sidewalk Labs was a relatively new company, but one that had the backing of Alphabet and Google, making it a promising partner with solid credentials. The Sidewalk Labs Toronto project was widely advertised, pushed to the front page of every paper, and it seemed that for a while this was going to be a glittery new project that would shape Toronto as one of the most innovative cities of the world. However, things quickly went sour and in May of 2020, the project was announced to be canceled, leaving the large site in Portlands once again abandoned. The following is a breakdown of what may have gone wrong.
On the political side, an issue with the democratic governance in Canada is that the public is largely unaware of non-government organizations who have power over local matters despite being a non-municipal body.31 They often play a critical role in shaping cities, and Waterfront Toronto (WT) is no different. Until the announcement of the Sidewalk project, WT was not an organization that appeared on anyone’s radar, and so it was a shock to hear of such a massive project being led by a local organization.32 Furthermore, Sidewalk Labs quickly took over the initiative and became the face of the project, while WT retreated to the side. This left the public confused, and not to mention a little wary of dealing with an unknown entity, especially one that was foreign to Canada and had the shadow of Google behind their back. Distrust already runs in society, especially towards mega conglomerates who are taking over all aspects of everyday objects. Brands such as Amazon, Microsoft, and Google are near impossible to avoid. As such, it was not a surprise that Toronto was uncomfortable with the idea of a residential project in the total grasp of Google, spurring a “techlash”33 towards the entire project. A challenge to the fundamental right of privacy, one headed by a faceless conglomerate no less, forces individuals to give up their exclusive rights to not only decide to give up data but also the right to decide what the data will be used for.34
From Smart Devices to Smart Cities
As people become accustomed to a work/study life at home (this shift, one can argue, started happening even pre-COVID), their digital setup slowly increases. Starting with laptops and pcs, and then comes the need to accessorize and expand the capabilities of these basic digital devices. Slight conveniences of life are being advertised as being the future of home living, and all you would have to sacrifice is your data being collected by whatever company is selling you these smart devices, and to some, that may not seem like a big deal. This phenomenon not only happens at the small scale, it is also being applied to the city scale. For cities, larger smart tactics promise more urban innovations to solve uniquely urban problems, things such as traffic control, waste management, housing, transit, etc. However, the very idea of being “smart” is an extremely relative concept, as for cities, being smart is about faster smoother functioning and attracting money and technology. For the technology companies, being smart is about a method of capturing the rising value of data flow, the next big evolution in knowledge control. Data can be used to either directly monetize behavior insights, or indirectly to control and persuade services from the public.29
Sidewalk Labs
In 2017, Waterfront Toronto sent out a request for proposals to develop a formerly industrial piece of land on the Toronto waterfront. They wanted to find an “innovation and funding partner”, one who can help transform the land into a shiny new development along the waterfront.30 At that time, Sidewalk Labs was a relatively new company, but one that had the backing of Alphabet and Google, making it a promising partner with solid credentials. The Sidewalk Labs Toronto project was widely advertised, pushed to the front page of every paper, and it seemed that for a while this was going to be a glittery new project that would shape Toronto as one of the most innovative cities of the world. However, things quickly went sour and in May of 2020, the project was announced to be canceled, leaving the large site in Portlands once again abandoned. The following is a breakdown of what may have gone wrong.

On the political side, an issue with the democratic governance in Canada is that the public is largely unaware of non-government organizations who have power over local matters despite being a non-municipal body.31 They often play a critical role in shaping cities, and Waterfront Toronto (WT) is no different. Until the announcement of the Sidewalk project, WT was not an organization that appeared on anyone’s radar, and so it was a shock to hear of such a massive project being led by a local organization.32 Furthermore, Sidewalk Labs quickly took over the initiative and became the face of the project, while WT retreated to the side. This left the public confused, and not to mention a little wary of dealing with an unknown entity, especially one that was foreign to Canada and had the shadow of Google behind their back. Distrust already runs in society, especially towards mega conglomerates who are taking over all aspects of everyday objects. Brands such as Amazon, Microsoft, and Google are near impossible to avoid. As such, it was not a surprise that Toronto was uncomfortable with the idea of a residential project in the total grasp of Google, spurring a “techlash”33 towards the entire project. A challenge to the fundamental right of privacy, one headed by a faceless conglomerate no less, forces individuals to give up their exclusive rights to not only decide to give up data but also the right to decide what the data will be used for.34
On the technological side, there is no doubt the plans of Sidewalk Labs were one of the most innovative proposals yet. Titled “the world’s first neighborhood built from the internet up”, the vision of the community was extremely ambitious.35 The proposal was supposed to have state-of-the-art sustainability tactics, autonomous vehicles, sensor-based surveillance, and data-driven responsive services, all promoting the visions of a city of the future.36 However, all these accessible services came with a price – the price of handing over your life to Google. Should people be allowed to be tracked in public realms in the first place? Who stands to benefit from such tracking and data collection? Should we even allow our entire lives to be, as Bauman says of modernity, be commodified as an item, to be put into the pool of the market and sold as a commodity, or should we set limits to what is marketable and what is not.37 The community, at the end of the day, is no more than a series of domestic homes. If the very idea of a home, a private domain, one which is fundamentally composed of trust, simplicity, sovereign of the individual, and inviolability of personal space, was rendered obsolete, then what becomes of our lives?38 Urban innovations are, when set out to solve urban problems, always a positive for the city. However, privatized urban innovations can be cause for concern, especially when the hidden agenda of these proposals are not released to the public. A step further than the pharmacopornographic regimes, this new form of surveillance regime not only designs and controls society through the medicating, desiring, and numbing of subjects, but also through collecting data from individuals to better upgrade and perfect their methods. What all previous regimes lacked in the ability to gather knowledge and intel; this new “smart” control system perfected. Aided with the use of artificial intelligence and rapid supercomputers, the processing of big data could lead to unlimited potential. As Bauman mentioned, the liquid of society comes from a separation of power and government, and here, is where the power is dispersed from. If corporations like Google can collect more data on individuals than governments, then whosoever holds the most data is the one with more power. In the panopticon, the guards are in control because they hold the access to information in terms of who is being surveilled. In a smart city, the forces behind the technology become the knowledgeable guards, the ones who can control what and who and when they see.
What are the outcomes?
How does architecture fit into this picture of a “smart” regime? As Sidewalk Labs portrays itself as a harmonious, beautifully rendered utopia, the streets are clean, the sidewalks are wide, the materials are sustainable and aesthetic, and thanks to the smart waste system, there is zero trash anywhere. However, it begs the question, is this city scheme designed based on humans and for humans, or is it a scheme that favors the ease of data collection above all else? If the fundamental goal of smart cities is to gather data, adapt, and upgrade to perfect themselves, then the architecture must be based on such foundations as well. It is less so a community for citizens, more a testbed for the newest automated technologies, a simulation that veils the true identity of surveillance. If reduced to a single item, the smart city is one giant machine, one that serves not the functions of humans, but simply the function of itself that it was programmed to do, with no discern regarding privacy and freedom.
So, what happens when architecture is designed for privacy? One particular building in Tokyo, designed by Satoru Hirota Architects, focused specifically on providing privacy for a single-family located in the heart of the city. Due to the density of Tokyo itself, and the fact that the lot faced a public street, the design played with the sense of distance and opening, minimizing the views inside from the front façade.
Offset boxes with gaps were used to still provide light and ventilation within the house itself.39 However nice the interiors are designed, there is no doubt this is an attempt at sacrificing views and connections in exchange for a little privacy within the busy city, and this only deals with privacy on a physical note, ignoring completely the idea of digital privacy within the walls of the confined. Is this to be the future of architecture if paranoia of privacy reaches the masses? Are the likes of Philip Johnson’s Glass House to be forever a purely aesthetic and never practical design?
How does architecture fit into this picture of a “smart” regime? As Sidewalk Labs portrays itself as a harmonious, beautifully rendered utopia, the streets are clean, the sidewalks are wide, the materials are sustainable and aesthetic, and thanks to the smart waste system, there is zero trash anywhere. However, it begs the question, is this city scheme designed based on humans and for humans, or is it a scheme that favors the ease of data collection above all else? If the fundamental goal of smart cities is to gather data, adapt, and upgrade to perfect themselves, then the architecture must be based on such foundations as well. It is less so a community for citizens, more a testbed for the newest automated technologies, a simulation that veils the true identity of surveillance. If reduced to a single item, the smart city is one giant machine, one that serves not the functions of humans, but simply the function of itself that it was programmed to do, with no discern regarding privacy and freedom.
So, what happens when architecture is designed for privacy? One particular building in Tokyo, designed by Satoru Hirota Architects, focused specifically on providing privacy for a single-family located in the heart of the city. Due to the density of Tokyo itself, and the fact that the lot faced a public street, the design played with the sense of distance and opening, minimizing the views inside from the front façade.

Offset boxes with gaps were used to still provide light and ventilation within the house itself.39 However nice the interiors are designed, there is no doubt this is an attempt at sacrificing views and connections in exchange for a little privacy within the busy city, and this only deals with privacy on a physical note, ignoring completely the idea of digital privacy within the walls of the confined. Is this to be the future of architecture if paranoia of privacy reaches the masses? Are the likes of Philip Johnson’s Glass House to be forever a purely aesthetic and never practical design?
Conclusion
Through sovereign to disciplinary regimes, architecture continues to be a vessel for control, a solid physical state in which Foucault’s theories run. However, with the mutation of biopower to pharma-power, the boundary of exterior and interior control slowly dissolves, as does the architecture which binds us to society. Today, in the case of smart cities, architecture is no longer a representation of control and surveillance, as it is no longer even required to be such a tool. The technological advances of surveillance have successfully broken the “fourth wall” and settled into our bodies and minds, thus rendering the function of physical architecture back to its purest form, the form of shelter. Architecture itself no longer holds the propaganda, as the streams of controls have embedded themselves past the physical walls of a home, deep into our bodies and minds.
Through sovereign to disciplinary regimes, architecture continues to be a vessel for control, a solid physical state in which Foucault’s theories run. However, with the mutation of biopower to pharma-power, the boundary of exterior and interior control slowly dissolves, as does the architecture which binds us to society. Today, in the case of smart cities, architecture is no longer a representation of control and surveillance, as it is no longer even required to be such a tool. The technological advances of surveillance have successfully broken the “fourth wall” and settled into our bodies and minds, thus rendering the function of physical architecture back to its purest form, the form of shelter. Architecture itself no longer holds the propaganda, as the streams of controls have embedded themselves past the physical walls of a home, deep into our bodies and minds.
That is not to say that architecture is no longer important in the role of surveillance and control, but that it is merely a lot more complex and uncertain, as its role become fragile, just as the liquid state of modernity does. If architecture is no longer relevant as propaganda, then perhaps its aesthetic will no longer be determined by external power struggles, and can be free to be designed to only suit the individual and not the society. Or, perhaps, there will come a time when privacy becomes a thing of the past, and people will happily relinquish control over their data in exchange for a more pleasant peaceful life, no fear from the watching eyes of others. All
architecture, in that case, might be transparent and public, like Philip Johnson’s Glass House, a whole life on display to the world. Either way, the architecture of surveillance and control will change alongside society, and for better or worse, only time will tell.
Footnotes
- Shoshana Zuboff, The Age of Surveillance Capitalism: the Fight for a Human Future at the New Frontier of Power (New York: PublicAffairs, 2020).
-
“Are Your Phone Camera and Microphone Spying on You? | Dylan Curran,” The Guardian (Guardian News and Media, April 6, 2018), https://www.theguardian.com/commentisfree/2018/apr/06/phone-camera-microphone-spying.
- Michel Foucault and Alan Sheridan, “Part One: Torture. The body of the condemned” in Discipline and Punish: the Birth of the Prison (London: Penguin Books, 2020), page 38.
- Ibid, page 16.
- Michel Foucault and Alan Sheridan, “Part One: Torture. The spectacle of the scaffold” in Discipline and Punish: the Birth of the Prison (London: Penguin Books, 2020).
- G. Carrio et al., “About the Impossibility of Absolute State Sovereignty,” International Journal for the Semiotics of Law - Revue internationale de Sémiotique juridique (Springer Netherlands, January 1, 1965), https://link.springer.com/article/10.1007/s11196-013-9333-x.
- Jeremy Bentham, Panopticon: or the Inspection House (Whithorn: Anodos Books, 2017).
-
Michel Foucault and Alan Sheridan, “Part 3. Discipline - Panopticism,” in Discipline and Punish: the Birth of the Prison (London: Penguin Books, 2020).
- Ibid, page 231.
- Zygmunt Bauman, “Individuality” in Liquid Modernity (Cambridge: Polity Press, 2018), page 42.
- Antonia Mackay and Susan Flynn, “The Panoptic City” in Surveillance, Architecture and Control Discourses on Spatial Culture (Cham: Springer International Publishing, 2019).
- Michel Foucault and Alan Sheridan, “Part 3. Discipline - Panopticism,” in Discipline and Punish: the Birth of the Prison (London: Penguin Books, 2020), page 237.
- Ibid, page 120.
- Michel Foucault and Alan Sheridan, “Part Three: Discipline – Docile Bodies” in Discipline and Punish: the Birth of the Prison (London: Penguin Books, 2020), page 147-192.
- Zygmunt Bauman, “Emancipation” in Liquid Modernity (Cambridge: Polity Press, 2018).
-
McLEAN, Iain, and Alistair McMILLAN. The Concise Oxford Dictionary of Politics. Oxford: Oxford University Press, 2003.
- Zygmunt Bauman, “Community” in Liquid Modernity (Cambridge: Polity Press, 2018).
- Ibid, “Individuality”
- Ibid.
- Preciado, Beatriz. "Architecture as a Practice of Biopolitical Disobedience." Log, no. 25 (2012): 124. http://www.jstor.org/stable/41765746.
-
Ibid 22.
- Ibid.
- Ibid, page 128.
- Preciado, Beatriz. "Architecture as a Practice of Biopolitical Disobedience." Log, no. 25 (2012): 130. http://www.jstor.org/stable/41765746.
- Shoshana Zuboff, “The moat around the castle” in The Age of Surveillance Capitalism: the Fight for a Human Future at the New Frontier of Power (New York: PublicAffairs, 2020), page 110-137
- Ibid, “Home or Exile in the Digital Future”, page 10-32
- Ibid, “The Elaboration of Surveillance Capitalism: Kidnap, Corner, Compete”, page 138-187
- Ibid
- Goodman, Ellen P. and Julia Powles. "urbanism Under Google: Lessons from Sidewalk Toronto." Fordham Law Review 88, no. 2 (2019): 457.
- Flynn, Alexandra, and Mariana Valverde. “Where The Sidewalk Ends: The Governance Of Waterfront Toronto’s Sidewalk Labs Deal.” Windsor Yearbook of Access to Justice 36 (September 18, 2019): 263–83. doi:10.22329/wyaj.v36i0.6425
- Flynn, Alexandra, and Mariana Valverde. “Where The Sidewalk Ends: The Governance Of Waterfront Toronto’s Sidewalk Labs Deal.” Windsor Yearbook of Access to Justice 36 (September 18, 2019): 266. doi:10.22329/wyaj.v36i0.6425.
- Ibid
- Doug Brake Robert D. Atkinson, “A Policymaker's Guide to the ‘Techlash’-What It Is and Why It's a Threat to Growth and Progress,” A Policymaker's Guide to the "Techlash"-What It Is and Why It's a Threat to Growth and Progress (Information Technology and Innovation Foundation, October 28, 2019), https://itif.org/publications/2019/10/28/policymakers-guide-techlash.
- Shoshana Zuboff, “August 9, 2011: Setting the Stage for Surveillance Capitalism” in The Age of Surveillance Capitalism: the Fight for a Human Future at the New Frontier of Power (New York: PublicAffairs, 2020), page 34-70
-
Ellen P. Goodman; Julia Powles, "Urbanism under Google: Lessons from Sidewalk Toronto," Fordham Law Review 88, no. 2 (November 2019): 457-498
-
Ibid
-
Ibid
-
Shoshana Zuboff, “Home or Exile in the Digital Future” in The Age of Surveillance Capitalism: the Fight for a Human Future at the New Frontier of Power (New York: PublicAffairs, 2020), page 10-32
- Designing for Privacy: Architecture in the Surveillance Age - Design & Build Review: Issue 55: April 2020,” Design & Build Review | Issue 55 | April 2020, May 5, 2020.
Bibliography
“Are Your Phone Camera and Microphone Spying on You? | Dylan Curran.” The Guardian. Guardian News and Media, April 6, 2018. https://www.theguardian.com/commentisfree/2018/apr/06/phone-camera-microphone-spying.
“Designing for Privacy: Architecture in the Surveillance Age - Design & Build Review: Issue 55: April 2020,” Design & Build Review | Issue 55 | April 2020, May 5, 2020
Flynn, Alexandra, and Mariana Valverde. “Where The Sidewalk Ends: The Governance Of Waterfront Toronto’s Sidewalk Labs Deal.” Windsor Yearbook of Access to Justice 36 (September 18, 2019): 263–83. doi:10.22329/wyaj.v36i0.6425.
G. Carrio et al., “About the Impossibility of Absolute State Sovereignty,” International Journal for the Semiotics of Law - Revue internationale de Sémiotique juridique (Springer Netherlands, January 1, 1965), https://link.springer.com/article/10.1007/s11196-013-9333-x.
Goodman, Ellen P. and Julia Powles. "urbanism Under Google: Lessons from Sidewalk Toronto." Fordham Law Review 88, no. 2 (2019): 457.
Jeremy Bentham, Panopticon: or the Inspection House (Whithorn: Anodos Books, 2017).
Mackay, Antonia, and Susan Flynn. Surveillance, Architecture and Control Discourses on Spatial Culture. Cham: Springer International Publishing, 2019.
McLEAN, Iain, and Alistair McMILLAN. The Concise Oxford Dictionary of Politics. Oxford: Oxford University Press, 2003.
Michel Foucault and Alan Sheridan, Discipline and Punish: the Birth of the Prison (London: Penguin Books, 2020).
Preciado, Beatriz. "Architecture as a Practice of Biopolitical Disobedience." Log, no. 25 (2012): 121-34. Accessed December 15, 2020. http://www.jstor.org/stable/41765746.
Zuboff, Shoshana. The Age of Surveillance Capitalism: the Fight for a Human Future at the New Frontier of Power. New York: PublicAffairs, 2020.
Zygmunt Bauman, Liquid Modernity (Cambridge: Polity Press, 2018).
“Are Your Phone Camera and Microphone Spying on You? | Dylan Curran.” The Guardian. Guardian News and Media, April 6, 2018. https://www.theguardian.com/commentisfree/2018/apr/06/phone-camera-microphone-spying.
“Designing for Privacy: Architecture in the Surveillance Age - Design & Build Review: Issue 55: April 2020,” Design & Build Review | Issue 55 | April 2020, May 5, 2020
Flynn, Alexandra, and Mariana Valverde. “Where The Sidewalk Ends: The Governance Of Waterfront Toronto’s Sidewalk Labs Deal.” Windsor Yearbook of Access to Justice 36 (September 18, 2019): 263–83. doi:10.22329/wyaj.v36i0.6425.
G. Carrio et al., “About the Impossibility of Absolute State Sovereignty,” International Journal for the Semiotics of Law - Revue internationale de Sémiotique juridique (Springer Netherlands, January 1, 1965), https://link.springer.com/article/10.1007/s11196-013-9333-x.
Goodman, Ellen P. and Julia Powles. "urbanism Under Google: Lessons from Sidewalk Toronto." Fordham Law Review 88, no. 2 (2019): 457.
Jeremy Bentham, Panopticon: or the Inspection House (Whithorn: Anodos Books, 2017).
Mackay, Antonia, and Susan Flynn. Surveillance, Architecture and Control Discourses on Spatial Culture. Cham: Springer International Publishing, 2019.
McLEAN, Iain, and Alistair McMILLAN. The Concise Oxford Dictionary of Politics. Oxford: Oxford University Press, 2003.
Michel Foucault and Alan Sheridan, Discipline and Punish: the Birth of the Prison (London: Penguin Books, 2020).
Preciado, Beatriz. "Architecture as a Practice of Biopolitical Disobedience." Log, no. 25 (2012): 121-34. Accessed December 15, 2020. http://www.jstor.org/stable/41765746.
Zuboff, Shoshana. The Age of Surveillance Capitalism: the Fight for a Human Future at the New Frontier of Power. New York: PublicAffairs, 2020.
Zygmunt Bauman, Liquid Modernity (Cambridge: Polity Press, 2018).
Figure 1. Chng, Pamela. “The Soul Is the Prison of the Body.” Medium. Medium, May 7, 2018. https://pamchng.medium.com/the-soul-is-the-prison-of-the-body-bf8ef943fe4.
Figure 2. Sciences, Posted by Sunderland Social. “Is Everywhere a Panopticon?” Social Sciences Blog, September 21, 2018. https://sunderlandsocialsciences.wordpress.com/2018/09/21/is-everywhere-a-panopticon/.
Figure 3. “Beatriz Preciado, Testo Junkie: Sex, Drugs, and Biopolitics in the Pharmacopornographic Era - Http://T.co/bs7o2h2eII Pic.twitter.com/lA9WTtelUe.” Twitter. Twitter, November 26, 2014. https://twitter.com/aaaarg/status/537592744588636161.
Figure 4. Torontoist. “Civic Tech: A List of Questions We'd like Sidewalk Labs to Answer.” Torontoist, November 13, 2017. https://torontoist.com/2017/10/civic-tech-list-questions-wed-like-sidewalk-labs-answer/.
Figure 5. 2016. "Gallery of House of Fluctuations / Satoru Hirota Architects." ArchDaily. October 09. Accessed December 16, 2020. https://www.archdaily.com/796882/house-of-fluctuations-satoru-hirota-architects/57f6f9afe58ece756100003f-house-of-fluctuations-satoru-hirota-architects-photo.
Figure 2. Sciences, Posted by Sunderland Social. “Is Everywhere a Panopticon?” Social Sciences Blog, September 21, 2018. https://sunderlandsocialsciences.wordpress.com/2018/09/21/is-everywhere-a-panopticon/.
Figure 3. “Beatriz Preciado, Testo Junkie: Sex, Drugs, and Biopolitics in the Pharmacopornographic Era - Http://T.co/bs7o2h2eII Pic.twitter.com/lA9WTtelUe.” Twitter. Twitter, November 26, 2014. https://twitter.com/aaaarg/status/537592744588636161.
Figure 4. Torontoist. “Civic Tech: A List of Questions We'd like Sidewalk Labs to Answer.” Torontoist, November 13, 2017. https://torontoist.com/2017/10/civic-tech-list-questions-wed-like-sidewalk-labs-answer/.
Figure 5. 2016. "Gallery of House of Fluctuations / Satoru Hirota Architects." ArchDaily. October 09. Accessed December 16, 2020. https://www.archdaily.com/796882/house-of-fluctuations-satoru-hirota-architects/57f6f9afe58ece756100003f-house-of-fluctuations-satoru-hirota-architects-photo.
The Post-Singularity Architect
Introduction
In the following critical analysis, the works of various theorists and researchers in the fields of architecture, design, and computer science are studied and presented to make a case for what will be understood as the “architectural singularity.” As will be illustrated in the work of Raymond Kurzweil, there is increasing evidence pointing towards an inevitable technological “singularity;” a point at which artificial intelligence (AI) may surpass biological intelligence. As our society becomes more technologically advanced, the traditional role that architecture plays will be challenged, and the way that architects design and interact with the built context will shift drastically. Architecture is likely to take on new forms, previously unimaginable, as it nears closer to the architectural singularity. Through this analysis, it is proposed that architects should prepare to find new roles within the relationships between humans, machine intelligence, and the built form.
Machine intelligence already plays a key role in the ways that we consume information and interact with each other and our environment today. In the segments to follow, concepts and questions are proposed to break down and shed some light on where the architecture profession may be headed in the age of the singularity. Some material being analyzed, among other works, includes Ray Kurzweil's book The Singularity is Near: When Humans Transcend Biology, Benjamin Bratton's book The Stack: On Software and Sovereignty, Carl Frey and Michael Osborne's research The Future of Employment: How Susceptible are Jobs to Computerisation?, Margaret Boden's Creativity and Artificial Intelligence, and Tim McGinley's research A Morphogenic Architecture for Intelligent Buildings. This analysis will be broken down into eight discrete segments discussing the premise behind the architectural singularity, the challenges it raises, and how to approach the future of the architectural practice with this speculative outlook in mind.
In the following critical analysis, the works of various theorists and researchers in the fields of architecture, design, and computer science are studied and presented to make a case for what will be understood as the “architectural singularity.” As will be illustrated in the work of Raymond Kurzweil, there is increasing evidence pointing towards an inevitable technological “singularity;” a point at which artificial intelligence (AI) may surpass biological intelligence. As our society becomes more technologically advanced, the traditional role that architecture plays will be challenged, and the way that architects design and interact with the built context will shift drastically. Architecture is likely to take on new forms, previously unimaginable, as it nears closer to the architectural singularity. Through this analysis, it is proposed that architects should prepare to find new roles within the relationships between humans, machine intelligence, and the built form.
Machine intelligence already plays a key role in the ways that we consume information and interact with each other and our environment today. In the segments to follow, concepts and questions are proposed to break down and shed some light on where the architecture profession may be headed in the age of the singularity. Some material being analyzed, among other works, includes Ray Kurzweil's book The Singularity is Near: When Humans Transcend Biology, Benjamin Bratton's book The Stack: On Software and Sovereignty, Carl Frey and Michael Osborne's research The Future of Employment: How Susceptible are Jobs to Computerisation?, Margaret Boden's Creativity and Artificial Intelligence, and Tim McGinley's research A Morphogenic Architecture for Intelligent Buildings. This analysis will be broken down into eight discrete segments discussing the premise behind the architectural singularity, the challenges it raises, and how to approach the future of the architectural practice with this speculative outlook in mind.
The Architectural Singularity
To begin to unpack this topic, it is important to first understand the premise that we may be approaching a technological and subsequently architectural singularity. In the field of physical science, the singularity represents a point at which space and time “merge indistinguishably and cease to have any independent meaning”1 as described by Matt Williams in Universe Today. The use of the term “singularity,” in reference to technological advancement is often attributed to Ray Kurzweil, an American inventor and futurist, and author of books titled: How to Create a Mind, The Age of Spiritual Machines, and The Singularity is Near.
Kurzweil proposes in his book that within the next few decades, artificial intelligence will eclipse human biological intelligence and that by 2045, the singularity will have arrived, and we cannot possibly predict what the world will look like beyond that point.2 Kurzweil is quoted in The Singularity is Near as saying “human-created technology is accelerating and its powers are expanding at an exponential pace.”3
With this statement, Kurzweil is proposing that technology is advancing at a rate that will completely alter the human environment as we know it.
In his book, The Technological Singularity, Murray Shanahan describes how a technological singularity would change human life as we know it, and that current economic and governmental models would be completely altered in the face of new advancements in artificial intelligence and neurotechnology.4 These advancements in artificial intelligence would include the ability to improve performance in an exponential fashion, similar to how the advancement of transistors and integrated circuits followed an exponential curve in processing power throughout the late twentieth century.5 In his work, Shanahan proposes that following this logic, “intelligence itself…would become subject to the law of accelerating returns, and from here to a technological singularity is but a small leap of faith.”6 In other words, the technological singularity could represent a time at which intelligence itself, whether it be artificial or some form of bio-technical hybrid, could grow in processing power at exponential rates, with significant implications on the built world and future growth of human society.
Extending this logic to the architectural realm, the architectural singularity can be understood as a point beyond which we cannot even imagine what the built world of tomorrow will look like. Tim McGinley poses, in A Morphogenic Architecture for Intelligent Buildings, that beyond the singularity architecture may become more like a living organism that, through its design and components, is more intelligent than both its user and designer.7 In order to understand how intelligent buildings function or might come to be within the age of the singularity, it is important first to clearly define and understand the difference between biological and artificial intelligence.
To begin to unpack this topic, it is important to first understand the premise that we may be approaching a technological and subsequently architectural singularity. In the field of physical science, the singularity represents a point at which space and time “merge indistinguishably and cease to have any independent meaning”1 as described by Matt Williams in Universe Today. The use of the term “singularity,” in reference to technological advancement is often attributed to Ray Kurzweil, an American inventor and futurist, and author of books titled: How to Create a Mind, The Age of Spiritual Machines, and The Singularity is Near.
Kurzweil proposes in his book that within the next few decades, artificial intelligence will eclipse human biological intelligence and that by 2045, the singularity will have arrived, and we cannot possibly predict what the world will look like beyond that point.2 Kurzweil is quoted in The Singularity is Near as saying “human-created technology is accelerating and its powers are expanding at an exponential pace.”3
With this statement, Kurzweil is proposing that technology is advancing at a rate that will completely alter the human environment as we know it.
In his book, The Technological Singularity, Murray Shanahan describes how a technological singularity would change human life as we know it, and that current economic and governmental models would be completely altered in the face of new advancements in artificial intelligence and neurotechnology.4 These advancements in artificial intelligence would include the ability to improve performance in an exponential fashion, similar to how the advancement of transistors and integrated circuits followed an exponential curve in processing power throughout the late twentieth century.5 In his work, Shanahan proposes that following this logic, “intelligence itself…would become subject to the law of accelerating returns, and from here to a technological singularity is but a small leap of faith.”6 In other words, the technological singularity could represent a time at which intelligence itself, whether it be artificial or some form of bio-technical hybrid, could grow in processing power at exponential rates, with significant implications on the built world and future growth of human society.
Extending this logic to the architectural realm, the architectural singularity can be understood as a point beyond which we cannot even imagine what the built world of tomorrow will look like. Tim McGinley poses, in A Morphogenic Architecture for Intelligent Buildings, that beyond the singularity architecture may become more like a living organism that, through its design and components, is more intelligent than both its user and designer.7 In order to understand how intelligent buildings function or might come to be within the age of the singularity, it is important first to clearly define and understand the difference between biological and artificial intelligence.
Defining Intelligence
A highly simplified breakdown of biological intelligence is outlined in the chapter titled “Whole Brain Emulation,” in Shanahan’s book, The Technological Singularity. It is illustrated that biological intelligence is made up of neurons, which are a combination of axons and dendrites. Axons can be understood as a neuron’s output, while dendrites can be understood as its input. Where the input section of one neuron is located closely to the output section of another neuron, a synapse can form, essentially creating a link between the two neurons, allowing information flow between them.8 Neurons form a complex network that allows for the communication and processing of information. It is this network of inputs, outputs, and connections that is often the goal to be recreated in artificial intelligence, essentially mimicking the function of a biological brain.
While it may be possible to recreate this communication network artificially using digital technology, this does not guarantee the creation of an “intelligence.” As described by Shanahan, a unique and important property of the biological brain is its plasticity.9 The network of connections between neurons in the brain is under constant change and adaptation throughout the life of the organism. It is this constant change or reworking of neural connections that enables learning and memory in biological intelligence.10 These key properties are a goal of replication in the creation of an artificial intelligence. The creation of a “plastic” machine intelligence, or one that is capable of learning, memory, and informed reconfiguration, brings artificial intelligence significantly closer in function to biological intelligence. The premise of the architectural singularity is as follows: within the architectural realm, artificial intelligences will be capable of performing design tasks to the same level of quality and understanding as a human architect, and intelligent buildings will exist that are as intelligent (if not more) as both their users and designers. The second point of this premise will be the focus of the following section, outlining how exactly a building can be designed and understood as “intelligent,” and what implications this has on the architectural realm.
A highly simplified breakdown of biological intelligence is outlined in the chapter titled “Whole Brain Emulation,” in Shanahan’s book, The Technological Singularity. It is illustrated that biological intelligence is made up of neurons, which are a combination of axons and dendrites. Axons can be understood as a neuron’s output, while dendrites can be understood as its input. Where the input section of one neuron is located closely to the output section of another neuron, a synapse can form, essentially creating a link between the two neurons, allowing information flow between them.8 Neurons form a complex network that allows for the communication and processing of information. It is this network of inputs, outputs, and connections that is often the goal to be recreated in artificial intelligence, essentially mimicking the function of a biological brain.
While it may be possible to recreate this communication network artificially using digital technology, this does not guarantee the creation of an “intelligence.” As described by Shanahan, a unique and important property of the biological brain is its plasticity.9 The network of connections between neurons in the brain is under constant change and adaptation throughout the life of the organism. It is this constant change or reworking of neural connections that enables learning and memory in biological intelligence.10 These key properties are a goal of replication in the creation of an artificial intelligence. The creation of a “plastic” machine intelligence, or one that is capable of learning, memory, and informed reconfiguration, brings artificial intelligence significantly closer in function to biological intelligence. The premise of the architectural singularity is as follows: within the architectural realm, artificial intelligences will be capable of performing design tasks to the same level of quality and understanding as a human architect, and intelligent buildings will exist that are as intelligent (if not more) as both their users and designers. The second point of this premise will be the focus of the following section, outlining how exactly a building can be designed and understood as “intelligent,” and what implications this has on the architectural realm.
Intelligent Buildings
Today, intelligence is used to describe buildings which are designed with lifespan, construction, and management phases in mind, as well as implementation of measures ensuring the building remains adaptable over its entire lifespan, as described by Victor Callaghan in his chapter titled “Intelligent Environments” in Derek Clements-Croome’s book, Intelligent Buildings.11
Intelligent buildings in the age of the singularity will likely take on a different form of intelligence than that used in architectural discourse today. As described in Manic et al.’s work, Intelligent Buildings of the Future, intelligent buildings are composed of networks of smart hubs, sensors, meters, renewable energy generators, and energy storage systems.12 These complex systems within a building produce increasingly large data sets which will require “automated and adaptive approaches to information processing and real-time decision making.”13
Today, there are several metrics designed to measure the “intelligence” of a building, typically in relation to sustainability and building performance. These metrics include BREEAM (Building Research Establishment Environmental Assessment Method), LEED (Leadership in Energy and Environmental Design), LBC (Living Building Challenge), and more. In respect to these rating systems, “intelligent buildings” perform optimally according to performance standards, and automatically respond to user requirements and changes in the building environment.14 While this understanding of building intelligence touches on forward thinking concepts, the intelligent buildings of the future will be capable of processes typically undertaken by humans, as we are capable of “reasoning, planning and learning.”15 This is to say that intelligent buildings will be able to analyze the immense data sets created by their integrated monitoring systems and make informed decisions on adjustments or adaptations needed for improved overall building performance and environmental comfort.
This concept can be further expanded to a larger scale through an understanding of how intelligent systems will interact in the future. To better understand the implications of a global system of intelligence, one can turn to Benjamin Bratton's work, The Stack, where he breaks down the various layers in which software and technology shape and control our lives and the built environment. Bratton proposes that all the world's computation systems form The Stack, a "megastructure" comprised of six layers including Earth, Cloud, City, Address, Interface, and User.16
The Stack illustrates an understanding of the world's various computational systems not as isolated, individual systems, but as a deeply intertwined network of human connection, social interaction, and control.17 In the realm of an architectural singularity, Bratton's Stack can be understood to be an important model within which to work. Viewing our approach to the practice of architecture going forward within the context of an intelligent global computation system will allow us to pose important questions about where the profession is headed and where we as humans can fit into the emerging new social-political system.
The aforementioned definition of intelligent buildings is not all too farfetched from the reality we currently inhabit today. One might argue that there are likely automated systems performing these exact functions already. The turning point at which one could argue for the emergence of the architectural singularity is, as described by McGinley, “the point at which the intelligence of the building’s fabric and systems become superior to the intelligence of the occupants."18
To understand how this might occur, it is important now to define the ways in which machine intelligence might surpasses biological human intelligence. In his work, Shanahan argues that the successful emulation of a human brain marks the breakthrough necessary to pave the way for what he refers to as a “superintelligence.” Shanahan makes two critical arguments regarding brain emulation that support the theory of an architectural singularity. First, if we successfully emulate the function of a human brain through a digital medium, this digital brain can now be copied a near-infinite number of times, only bound by the limits of digital media storage. This marks the first milestone in creating a superintelligence, as it forms the basis for a network or collective intelligence.19 Secondly, Shanahan argues that a digital intelligence is no longer bound to physical constraints, allowing it to be sped up. This combination of collective intelligence performing actions at rates faster than biologically possible forms the basis for Shanahan’s definition of superintelligence and marks a turning point for all human activity.20 With an influx in super-intelligent computation, it will be crucial to understand possible implications on both the architectural practice, and human employment in general.
Today, intelligence is used to describe buildings which are designed with lifespan, construction, and management phases in mind, as well as implementation of measures ensuring the building remains adaptable over its entire lifespan, as described by Victor Callaghan in his chapter titled “Intelligent Environments” in Derek Clements-Croome’s book, Intelligent Buildings.11
Intelligent buildings in the age of the singularity will likely take on a different form of intelligence than that used in architectural discourse today. As described in Manic et al.’s work, Intelligent Buildings of the Future, intelligent buildings are composed of networks of smart hubs, sensors, meters, renewable energy generators, and energy storage systems.12 These complex systems within a building produce increasingly large data sets which will require “automated and adaptive approaches to information processing and real-time decision making.”13
Today, there are several metrics designed to measure the “intelligence” of a building, typically in relation to sustainability and building performance. These metrics include BREEAM (Building Research Establishment Environmental Assessment Method), LEED (Leadership in Energy and Environmental Design), LBC (Living Building Challenge), and more. In respect to these rating systems, “intelligent buildings” perform optimally according to performance standards, and automatically respond to user requirements and changes in the building environment.14 While this understanding of building intelligence touches on forward thinking concepts, the intelligent buildings of the future will be capable of processes typically undertaken by humans, as we are capable of “reasoning, planning and learning.”15 This is to say that intelligent buildings will be able to analyze the immense data sets created by their integrated monitoring systems and make informed decisions on adjustments or adaptations needed for improved overall building performance and environmental comfort.
This concept can be further expanded to a larger scale through an understanding of how intelligent systems will interact in the future. To better understand the implications of a global system of intelligence, one can turn to Benjamin Bratton's work, The Stack, where he breaks down the various layers in which software and technology shape and control our lives and the built environment. Bratton proposes that all the world's computation systems form The Stack, a "megastructure" comprised of six layers including Earth, Cloud, City, Address, Interface, and User.16
The Stack illustrates an understanding of the world's various computational systems not as isolated, individual systems, but as a deeply intertwined network of human connection, social interaction, and control.17 In the realm of an architectural singularity, Bratton's Stack can be understood to be an important model within which to work. Viewing our approach to the practice of architecture going forward within the context of an intelligent global computation system will allow us to pose important questions about where the profession is headed and where we as humans can fit into the emerging new social-political system.
The aforementioned definition of intelligent buildings is not all too farfetched from the reality we currently inhabit today. One might argue that there are likely automated systems performing these exact functions already. The turning point at which one could argue for the emergence of the architectural singularity is, as described by McGinley, “the point at which the intelligence of the building’s fabric and systems become superior to the intelligence of the occupants."18
To understand how this might occur, it is important now to define the ways in which machine intelligence might surpasses biological human intelligence. In his work, Shanahan argues that the successful emulation of a human brain marks the breakthrough necessary to pave the way for what he refers to as a “superintelligence.” Shanahan makes two critical arguments regarding brain emulation that support the theory of an architectural singularity. First, if we successfully emulate the function of a human brain through a digital medium, this digital brain can now be copied a near-infinite number of times, only bound by the limits of digital media storage. This marks the first milestone in creating a superintelligence, as it forms the basis for a network or collective intelligence.19 Secondly, Shanahan argues that a digital intelligence is no longer bound to physical constraints, allowing it to be sped up. This combination of collective intelligence performing actions at rates faster than biologically possible forms the basis for Shanahan’s definition of superintelligence and marks a turning point for all human activity.20 With an influx in super-intelligent computation, it will be crucial to understand possible implications on both the architectural practice, and human employment in general.
Computation and Work
As the argument for an architectural singularity is highly speculative, it is nearly impossible to definitively determine the effects that superintelligence will have on the human workforce. While it already proves difficult to speculate what the workforce would even consist of in the age of the singularity, one can extend current discussion to this line of thinking. To understand where employment is headed in the age of increasingly powerful computation, one can look to Carl Frey and Michael Osborne's 2013 research titled The Future of Employment: How Susceptible are Jobs to Computerisation?
In this work, Frey and Osborne analyze the likelihood of 702 various occupations being rendered obsolete through computerisation in the not-too-distant future. They propose that an estimated 47 percent of jobs in the US are at risk of computerisation, further explaining that we are seeing a polarization of the workforce towards either high-income cognitive jobs, or low-income manual jobs, and away from middle-income routine jobs.21 Frey & Osborne do address that not all jobs in the future would be rendered obsolete solely due to computerisation. They also provide the example of "offshoring,” like we have seen in professions such as customer service or telemarketing. A job is considered “unable to be offshored" if it meets two criteria: the work is location-specific and requires face-to-face personal communication.22 To demonstrate this, Frey and Osborne present the example of cashiers that have largely been replaced with self-serve technology. This task must both be performed at a specific location and requires face-to-face contact. Therefore, they cannot be offshored, but it can be automated with relative ease.23
To support the notion that human architects are well poised to remain relevant in the workforce despite rapid computerisation, Frey and Osborne place architects as the 82nd least likely profession to be computerised out of a total 702 occupations. Frey and Osborne’s methodology consists of ranking each individual profession by probability of computerisation, according to nine discreet variables. These variables are as follows: Assisting and caring for others, Persuasion, Negotiation, Social Perceptiveness, Fine arts, Originality, Manual dexterity, Finger dexterity, and Cramped workspace.24 Some might argue Frey and Osborne’s classification of architects as 82nd least likely to be computerized to be inaccurate due to the difficulty of truly grasping the job function of an architect without experiencing the role first-hand. If one regards this classification generally, there is still a strong indication that architects will continue to be relevant, in one form or another, despite increasing computerization.
As the argument for an architectural singularity is highly speculative, it is nearly impossible to definitively determine the effects that superintelligence will have on the human workforce. While it already proves difficult to speculate what the workforce would even consist of in the age of the singularity, one can extend current discussion to this line of thinking. To understand where employment is headed in the age of increasingly powerful computation, one can look to Carl Frey and Michael Osborne's 2013 research titled The Future of Employment: How Susceptible are Jobs to Computerisation?
In this work, Frey and Osborne analyze the likelihood of 702 various occupations being rendered obsolete through computerisation in the not-too-distant future. They propose that an estimated 47 percent of jobs in the US are at risk of computerisation, further explaining that we are seeing a polarization of the workforce towards either high-income cognitive jobs, or low-income manual jobs, and away from middle-income routine jobs.21 Frey & Osborne do address that not all jobs in the future would be rendered obsolete solely due to computerisation. They also provide the example of "offshoring,” like we have seen in professions such as customer service or telemarketing. A job is considered “unable to be offshored" if it meets two criteria: the work is location-specific and requires face-to-face personal communication.22 To demonstrate this, Frey and Osborne present the example of cashiers that have largely been replaced with self-serve technology. This task must both be performed at a specific location and requires face-to-face contact. Therefore, they cannot be offshored, but it can be automated with relative ease.23
To support the notion that human architects are well poised to remain relevant in the workforce despite rapid computerisation, Frey and Osborne place architects as the 82nd least likely profession to be computerised out of a total 702 occupations. Frey and Osborne’s methodology consists of ranking each individual profession by probability of computerisation, according to nine discreet variables. These variables are as follows: Assisting and caring for others, Persuasion, Negotiation, Social Perceptiveness, Fine arts, Originality, Manual dexterity, Finger dexterity, and Cramped workspace.24 Some might argue Frey and Osborne’s classification of architects as 82nd least likely to be computerized to be inaccurate due to the difficulty of truly grasping the job function of an architect without experiencing the role first-hand. If one regards this classification generally, there is still a strong indication that architects will continue to be relevant, in one form or another, despite increasing computerization.
To provide some clarity regarding their rankings, Frey and Osborne outline some bottlenecks of computerisation of various industries. These are aspects of the work that make a particular profession challenging to automate through computerisation, and include Perception and Manipulation, Social Intelligence, and Creative Intelligence.25 It will be increasingly important to address the latter two aspects outlined as bottlenecks by Frey and Osborne, as they will help to inform the role of the post-singularity architect going forward.
It is proposed in this critical analysis that while the “architect” may continue to exist despite increased computational power, the definition of this role is likely to undergo a significant transformation as it approaches the architectural singularity.
Artificial Creativity
To address the concept of creativity in relation to artificial intelligence, one can turn to Margaret Boden's research article titled Creativity and Artificial Intelligence. Boden's work proposes that artificial intelligence can prove useful in creative work in three ways:
A key takeaway from Boden's work is that AI will likely be much better at creating or modelling new ideas than it will be at evaluating their success in the lived human context. Boden describes that the challenges facing an AI regarding creative thinking lie within the concept of “domain-expertise” and “valuation.”27 This is to say that newly implemented AI systems lack experience within the domain or realm which they are inserted into. Like a human intern starting work in an established firm, the AI may have been “trained” with traditional knowledge in building science or architectural design, but it lacks the ability to evaluate its performance without feedback from an overseeing entity. This limitation of artificial intelligence is outlined in Martin Rooney and Steven Smith’s research titled Artificial Intelligence in Engineering Design.
In their work, Rooney and Smith define the difference between objective and subjective cases within the realm of design. Objective cases refer to aspects of design that can be addressed through calculations and can be applied consistently between projects.28 Subjective cases in this realm refer to aspects of the design process that traditionally require human input, as they typically deal with aesthetic decisions. Subjective cases can vary from one design to another and are rarely able to be widely applied like objective design aspects.29 In order for artificial intelligence to be able to evaluate its performance in subjective design decisions, it requires a feedback mechanism. The feedback mechanism outlined by Rooney and Smith works to apply previous design experience to a problem, extract relevant information to be used in a subsequent problem, and store the extracted information for later use.30 As described by Rooney and Smith, today’s human designer typically carries out these feedback steps subconsciously as they progress through the design process. Outlined in this research is the key to one future role of the post-singularity architect, where it is stated that an intelligent “program” would be able to change its decisions or “self-modify” according to the previous successes and failures outlined in the aforementioned feedback loop.31
It is proposed in this critical analysis that while the “architect” may continue to exist despite increased computational power, the definition of this role is likely to undergo a significant transformation as it approaches the architectural singularity.
Artificial Creativity
To address the concept of creativity in relation to artificial intelligence, one can turn to Margaret Boden's research article titled Creativity and Artificial Intelligence. Boden's work proposes that artificial intelligence can prove useful in creative work in three ways:
- It can produce novel combinations of familiar ideas
-
It can explore the potential of conceptual spaces
-
It can make transformations that enable the generation of previously impossible ideas26
A key takeaway from Boden's work is that AI will likely be much better at creating or modelling new ideas than it will be at evaluating their success in the lived human context. Boden describes that the challenges facing an AI regarding creative thinking lie within the concept of “domain-expertise” and “valuation.”27 This is to say that newly implemented AI systems lack experience within the domain or realm which they are inserted into. Like a human intern starting work in an established firm, the AI may have been “trained” with traditional knowledge in building science or architectural design, but it lacks the ability to evaluate its performance without feedback from an overseeing entity. This limitation of artificial intelligence is outlined in Martin Rooney and Steven Smith’s research titled Artificial Intelligence in Engineering Design.
In their work, Rooney and Smith define the difference between objective and subjective cases within the realm of design. Objective cases refer to aspects of design that can be addressed through calculations and can be applied consistently between projects.28 Subjective cases in this realm refer to aspects of the design process that traditionally require human input, as they typically deal with aesthetic decisions. Subjective cases can vary from one design to another and are rarely able to be widely applied like objective design aspects.29 In order for artificial intelligence to be able to evaluate its performance in subjective design decisions, it requires a feedback mechanism. The feedback mechanism outlined by Rooney and Smith works to apply previous design experience to a problem, extract relevant information to be used in a subsequent problem, and store the extracted information for later use.30 As described by Rooney and Smith, today’s human designer typically carries out these feedback steps subconsciously as they progress through the design process. Outlined in this research is the key to one future role of the post-singularity architect, where it is stated that an intelligent “program” would be able to change its decisions or “self-modify” according to the previous successes and failures outlined in the aforementioned feedback loop.31
Conclusion
To summarize the findings of this analysis, three scenarios are proposed as the likely future role of the architect in the coming age of the architectural singularity: Architect as Teacher, Architect as Curator, and Architect as Luxury. These scenarios could occur individually or simultaneously, forming a new hybrid model for the architect. These models could also form the new major career paths in the architectural field. Like how many students today studying architecture in tertiary education are presented with the choice between architecture, building science, and project management, the practice in the age of the architectural singularity may morph into a system that prepares students to enter the practice as evaluator or curator of AI-designed architecture, or as “legacy architect,” a service only accessible to the hyper-rich.
There will be a need for someone to define the constraints within which the AI is programmed to work. Like setting site boundaries or a maximum height in CAD and BIM software, the AI needs to know which parameters to consider and which to ignore when ideating new designs or when working towards a new “optimal” form for a given context.
Secondly, as mentioned in Boden's work, AIs may not yet be able to properly evaluate their performance without feedback from humans. There will be a need for human evaluation against project requirements and overall current cultural values against which an AI may not be equipped to evaluate. As human culture and values are constantly changing, and since architecture reflects our culture, the AI will need to be constantly fed new information and evaluated on its performance.
Finally, as the price of computation is driven downward by increased adoption of new technologies, there is an increasingly strong case for the possibility of AI that can design architectural solutions more efficiently than their human counterparts. These buildings may however be part of a limited class, at least in the beginning of this new technological era, that are bound by straightforward criteria and end-goals. The section to follow expands on the proposal of these three possible roles for the post-singularity architect.
Architect as Teacher
As noted in Boden’s work, the weakness of AI lies in its ability to self-evaluate. This is where the first role of the post-singularity architect comes into play: the architect as teacher. The architect as teacher acts as a liaison between the values and desires humans posses for their architectural projects, and the computational power of the AI-architect. By programming the specific parameters within which the AI is to design, the architect as teacher influences the design outcome by guiding the AI through which parameters are to be optimized for and which are to be ignored. By defining the constraints within which the AI is intended to design, the architect as teacher prepares the AI-architect to be passed along to the next stage in the new-age design process: evaluation.
Understanding the architect as teacher or evaluator implies some level of authority maintained over machine. The AI-architect could be understood as being given “limited freedom” in the sense that it is free to ideate and test the optimal architectural forms within a confined set of specified parameters.
As noted in Rooney and Smith’s research on artificial intelligence in design, it will be important to maintain human control over artificially intelligent designers, especially when it comes to subjective design decisions. Rooney and Smith are quoted as stating, “it is important for professional liability that the human designer remain in control and the artificial intelligence component act as an experience consultant.”32 In other words, artificial intelligence should be understood as a powerful tool in design, but not as the governing body or overseer. The role of overseer is to be maintained as a human position: the architect as curator. Maintaining some level of human control over the outcome of AI-designed projects will allow us to maintain cultural and aesthetic value in our designs, even beyond the singularity.
To summarize the findings of this analysis, three scenarios are proposed as the likely future role of the architect in the coming age of the architectural singularity: Architect as Teacher, Architect as Curator, and Architect as Luxury. These scenarios could occur individually or simultaneously, forming a new hybrid model for the architect. These models could also form the new major career paths in the architectural field. Like how many students today studying architecture in tertiary education are presented with the choice between architecture, building science, and project management, the practice in the age of the architectural singularity may morph into a system that prepares students to enter the practice as evaluator or curator of AI-designed architecture, or as “legacy architect,” a service only accessible to the hyper-rich.
There will be a need for someone to define the constraints within which the AI is programmed to work. Like setting site boundaries or a maximum height in CAD and BIM software, the AI needs to know which parameters to consider and which to ignore when ideating new designs or when working towards a new “optimal” form for a given context.
Secondly, as mentioned in Boden's work, AIs may not yet be able to properly evaluate their performance without feedback from humans. There will be a need for human evaluation against project requirements and overall current cultural values against which an AI may not be equipped to evaluate. As human culture and values are constantly changing, and since architecture reflects our culture, the AI will need to be constantly fed new information and evaluated on its performance.
Finally, as the price of computation is driven downward by increased adoption of new technologies, there is an increasingly strong case for the possibility of AI that can design architectural solutions more efficiently than their human counterparts. These buildings may however be part of a limited class, at least in the beginning of this new technological era, that are bound by straightforward criteria and end-goals. The section to follow expands on the proposal of these three possible roles for the post-singularity architect.
Architect as Teacher
As noted in Boden’s work, the weakness of AI lies in its ability to self-evaluate. This is where the first role of the post-singularity architect comes into play: the architect as teacher. The architect as teacher acts as a liaison between the values and desires humans posses for their architectural projects, and the computational power of the AI-architect. By programming the specific parameters within which the AI is to design, the architect as teacher influences the design outcome by guiding the AI through which parameters are to be optimized for and which are to be ignored. By defining the constraints within which the AI is intended to design, the architect as teacher prepares the AI-architect to be passed along to the next stage in the new-age design process: evaluation.
Understanding the architect as teacher or evaluator implies some level of authority maintained over machine. The AI-architect could be understood as being given “limited freedom” in the sense that it is free to ideate and test the optimal architectural forms within a confined set of specified parameters.
As noted in Rooney and Smith’s research on artificial intelligence in design, it will be important to maintain human control over artificially intelligent designers, especially when it comes to subjective design decisions. Rooney and Smith are quoted as stating, “it is important for professional liability that the human designer remain in control and the artificial intelligence component act as an experience consultant.”32 In other words, artificial intelligence should be understood as a powerful tool in design, but not as the governing body or overseer. The role of overseer is to be maintained as a human position: the architect as curator. Maintaining some level of human control over the outcome of AI-designed projects will allow us to maintain cultural and aesthetic value in our designs, even beyond the singularity.
Architect as Curator
With the emergence of a new wealth of machine-born architectural designs, a new human role is proposed. While artificial intelligence may be able to be programmed to produce designs under specific conditions, within specific parameters, as is outlined in Boden’s work, artificial intelligence may not yet be able to evaluate the success of these designs. In other words, while there could be an infinite amount of design iterations presented for a particular architectural project, there may be a need for human intervention in the decision-making process for which design best suits the needs of the client.
Tim McGinley discusses the possible future role of the architect as forming a sort of “bridge” between desired architectural solutions and self-organizing systems. For instance, if a client provided specific criteria to be met for a desired building project, and an AI-architect was programmed with these specific parameters to generate a multitude of “ideal” design choices, based on the given criteria, it now becomes the role of the architect as curator to review these options through a critical, human-oriented lens and decide which is most successful for the project brief.
This example highlights the strong relation between the roles of the architect as teacher and curator, as these roles could be understood to form a cyclical relationship. As the architect (as teacher) defines specific parameters within which an AI-architect is to work, the AI learns which variables are considered valuable in various design conditions. As the architect (as curator) chooses or rejects proposed designs, the AI-architect learns which projects were successful or unsuccessful and why or why not. In this sense, the architect as curator acts as a form of direct evaluator, as well as an indirect teacher, constantly giving the AI feedback on proposed design interventions and feeding it information regarding which proposals were most liked by clients.
Following the logic of this feedback loop, one could argue that through this relationship, the human architect (as curator or teacher) could render themself obsolete by providing the AI with compounding data on successful architectural projects. Machine learning depends on large datasets to learn from and only improves in accuracy as more “feedback” is provided. In this sense, it could be argued that the architect, in providing feedback to the AI, could be laying the groundwork for an AI that is eventually knowledgeable enough to make decisions regarding the success of an architectural intervention without the feedback of a human architect. At the very least, the AI could be “intelligent” enough to predict the success of a design to a close degree of accuracy.
This argument might be sound if humanity were a static entity. However, humanity is very much a dynamic, ever-evolving entity. This is where the question of culture comes into play. Culture varies drastically, dependent on many factors including geographic location, population demographics, religion, and more. Traditional or “legacy” architecture is typically reflective of the cultural values of the place and time in which it is built. For the same reason that some criticize globalized architecture produced today by what we know as “starchitects,” an AI could likely never reach a level at which it could objectively decide the most appropriate or successful architectural form for a given context. This is because of humanity’s inherent dynamic nature. As human culture continually evolves, it can be argued that in order for an AI-architect to remain current or “up-to-date,” it will require the architect as teacher to continually provide information regarding cultural and aesthetic value in order to continue to ideate successful and relevant architectural designs.
Figure 1 illustrates the relationship of the architect as teacher and curator in a workflow diagram influenced by Rooney and Smith’s 1983 intelligent CAD model illustrations. In this model, the architect as teacher works to “program” various constraints, values, and parameters to be optimize within the artificially intelligent design program. The “AI-architect” then begins the process of ideation, iteration testing, and analysis informed by the parameters input by the human teacher. The AI-architect then presents the “optimal” design schemes to the architect as curator, who decides on a final revision or restarts the process again with new constraints or variables. Once an acceptable design has been chosen, it can be presented to the client and accepted or reworked using the model outlined above. Once a successful design scheme has been chosen, the AI-architect then extracts relevant information to be stored and used as learning experience for the next design proposal. Within this theoretical model, the AI-architect learns how to better perform with each new application of the process. The human architect as teacher and curator remains, however, to ensure that the AI model is properly trained and to maintain human oversight in the decision process of the final revision.
With the emergence of a new wealth of machine-born architectural designs, a new human role is proposed. While artificial intelligence may be able to be programmed to produce designs under specific conditions, within specific parameters, as is outlined in Boden’s work, artificial intelligence may not yet be able to evaluate the success of these designs. In other words, while there could be an infinite amount of design iterations presented for a particular architectural project, there may be a need for human intervention in the decision-making process for which design best suits the needs of the client.
Tim McGinley discusses the possible future role of the architect as forming a sort of “bridge” between desired architectural solutions and self-organizing systems. For instance, if a client provided specific criteria to be met for a desired building project, and an AI-architect was programmed with these specific parameters to generate a multitude of “ideal” design choices, based on the given criteria, it now becomes the role of the architect as curator to review these options through a critical, human-oriented lens and decide which is most successful for the project brief.
This example highlights the strong relation between the roles of the architect as teacher and curator, as these roles could be understood to form a cyclical relationship. As the architect (as teacher) defines specific parameters within which an AI-architect is to work, the AI learns which variables are considered valuable in various design conditions. As the architect (as curator) chooses or rejects proposed designs, the AI-architect learns which projects were successful or unsuccessful and why or why not. In this sense, the architect as curator acts as a form of direct evaluator, as well as an indirect teacher, constantly giving the AI feedback on proposed design interventions and feeding it information regarding which proposals were most liked by clients.
Following the logic of this feedback loop, one could argue that through this relationship, the human architect (as curator or teacher) could render themself obsolete by providing the AI with compounding data on successful architectural projects. Machine learning depends on large datasets to learn from and only improves in accuracy as more “feedback” is provided. In this sense, it could be argued that the architect, in providing feedback to the AI, could be laying the groundwork for an AI that is eventually knowledgeable enough to make decisions regarding the success of an architectural intervention without the feedback of a human architect. At the very least, the AI could be “intelligent” enough to predict the success of a design to a close degree of accuracy.
This argument might be sound if humanity were a static entity. However, humanity is very much a dynamic, ever-evolving entity. This is where the question of culture comes into play. Culture varies drastically, dependent on many factors including geographic location, population demographics, religion, and more. Traditional or “legacy” architecture is typically reflective of the cultural values of the place and time in which it is built. For the same reason that some criticize globalized architecture produced today by what we know as “starchitects,” an AI could likely never reach a level at which it could objectively decide the most appropriate or successful architectural form for a given context. This is because of humanity’s inherent dynamic nature. As human culture continually evolves, it can be argued that in order for an AI-architect to remain current or “up-to-date,” it will require the architect as teacher to continually provide information regarding cultural and aesthetic value in order to continue to ideate successful and relevant architectural designs.

Figure 1 illustrates the relationship of the architect as teacher and curator in a workflow diagram influenced by Rooney and Smith’s 1983 intelligent CAD model illustrations. In this model, the architect as teacher works to “program” various constraints, values, and parameters to be optimize within the artificially intelligent design program. The “AI-architect” then begins the process of ideation, iteration testing, and analysis informed by the parameters input by the human teacher. The AI-architect then presents the “optimal” design schemes to the architect as curator, who decides on a final revision or restarts the process again with new constraints or variables. Once an acceptable design has been chosen, it can be presented to the client and accepted or reworked using the model outlined above. Once a successful design scheme has been chosen, the AI-architect then extracts relevant information to be stored and used as learning experience for the next design proposal. Within this theoretical model, the AI-architect learns how to better perform with each new application of the process. The human architect as teacher and curator remains, however, to ensure that the AI model is properly trained and to maintain human oversight in the decision process of the final revision.
Architect as Luxury
As machine-designed architecture gains traction due to its financial incentives, architects as we currently know them may become a niche within the practice, referred to in this work as “legacy architects.” With most domestic architecture being designed by AI which churns out generic solutions to static housing typologies, and commercial architecture being outsourced to powerful algorithmic design studios designing for an optimal balance between predetermined criteria, legacy architects become something of a luxury that only the ultra rich can afford.
This dynamic could work similarly to purchasing a built-to-order, hand-made custom Rolls Royce today. With claims that this method of construction is somehow “more authentic” and exclusive, the markup renders such objects only attainable by the ultra rich. This model remains financially viable as the low volume vehicles are sold at exorbitant prices. Architecture, in this sense, could operate as a niche practice of a select few providing a “hand-made” type of service reminiscent of what will be understood as the legacy architecture of today.
It is entirely possible that small to mid to large-size architecture firms will begin to outsource their design efforts to machine intelligence, while ultra-popular “starchitects” will be presented with opportunities to pick and choose specialized projects demanding a “human touch,” hired for outlandish financial compensation.
As machine-designed architecture gains traction due to its financial incentives, architects as we currently know them may become a niche within the practice, referred to in this work as “legacy architects.” With most domestic architecture being designed by AI which churns out generic solutions to static housing typologies, and commercial architecture being outsourced to powerful algorithmic design studios designing for an optimal balance between predetermined criteria, legacy architects become something of a luxury that only the ultra rich can afford.
This dynamic could work similarly to purchasing a built-to-order, hand-made custom Rolls Royce today. With claims that this method of construction is somehow “more authentic” and exclusive, the markup renders such objects only attainable by the ultra rich. This model remains financially viable as the low volume vehicles are sold at exorbitant prices. Architecture, in this sense, could operate as a niche practice of a select few providing a “hand-made” type of service reminiscent of what will be understood as the legacy architecture of today.
It is entirely possible that small to mid to large-size architecture firms will begin to outsource their design efforts to machine intelligence, while ultra-popular “starchitects” will be presented with opportunities to pick and choose specialized projects demanding a “human touch,” hired for outlandish financial compensation.
Some may argue that architecture designed by artificial intelligence is somehow less human, or removed from humanity, in comparison to what we understand today as “traditional,” human-designed architecture. By extension, this argument implies that these “less human” spaces are somehow less desirable than human-designed spaces. To address this perspective, one could argue that, since artificial intelligence is ultimately created by humans, by extension, the things that AI creates can also be counted within the realm of human creation. To further argue this point, if artificial intelligence is tasked with ideating and creating architecture for humankind, the architecture remains deeply connected to humanity through its very purpose, maintaining its definition as an ultimately human endeavour.
There is agreement among researchers and theorists that the singularity is coming, with less agreement on exactly when it may come. Now is a crucial time to consider the structure within which architects will work given these speculative advancements in machine intelligence. If architects and others in the field approach the problem carefully, we may be able to carve out a lasting role even beyond the architectural singularity. This role will depend highly on the development of artificial intelligence and its success within the design industry. Despite the likely implementation of AI into the practice, human architects are likely to remain firmly integrated into society as critical evaluators and curators within the feedback loop enabling the creation of architecture beyond the era of the singularity.
There is agreement among researchers and theorists that the singularity is coming, with less agreement on exactly when it may come. Now is a crucial time to consider the structure within which architects will work given these speculative advancements in machine intelligence. If architects and others in the field approach the problem carefully, we may be able to carve out a lasting role even beyond the architectural singularity. This role will depend highly on the development of artificial intelligence and its success within the design industry. Despite the likely implementation of AI into the practice, human architects are likely to remain firmly integrated into society as critical evaluators and curators within the feedback loop enabling the creation of architecture beyond the era of the singularity.
Footnotes
- Matt Williams, “What Is A Singularity?,” Universe Today, last modified January 7, 2017, https://www.universetoday.com/84147/singularity/.
-
Ray Kurzweil, The Singularity Is Near: When Humans Transcend Biology (London: Duckworth, 2016), 10.
- Kurzweil, 10.
- Murray Shanahan, “Introduction,” in The Technological Singularity (Cambridge: The MIT Press, 2015a), xv.
- Kurzweil, xviii.
- Shanahan, xix.
- Tim McGinley, “A Metamorphogenetic Architecture for Intelligent Buildings,” Intelligent Buildings International 7, no. 1 (2014): 4, https://doi.org/10.1080/17508975.2014.970120
-
Murray Shanahan, “Whole Brain Emulation,” in The Technological Singularity (Cambridge: The MIT Press, 2015b), 15.
- Shanahan, 17.
- Shanahan, 17.
- Victor Callaghan, “Chapter 5: Intelligent Environments.” in Intelligent Buildings (London: ICE Publishing, 2013a), 72, http://dx.doi.org/10.1680/ib.57340.071.
- Milos Manic et al., “Intelligent Buildings of the Future: Cyberaware, Deep Learning Powered, and Human Interacting,” IEEE Industrial Electronics Magazine 10, no. 4 (2016), 38, https://doi.org/10.1109/mie.2016.2615575.
- Milos Manic et al., 38.
- Callaghan, 72.
- Callaghan, 72.
-
Benjamin Bratton, The Stack - On Software and Sovereignty. (Massachusetts: MIT Press, 2016), xviii.
- Bratton, xviii.
- McGinley, 4.
- Shanahan, 36.
- Shanahan, 36.
-
Carl Frey and Michael Osborne, “The Future of Employment: How Susceptible Are Jobs to Computerisation?,” Technological Forecasting and Social Change 114 (2013): 3, https://doi.org/10.1016/j.techfore.2016.08.019.
- Frey and Osborne, 5.
- Frey and Osborne, 5.
- Frey and Osborne, 31.
- Frey and Osborne, 31.
- Margaret Boden, “Creativity and Artificial Intelligence.” Artificial Intelligence 103, no. 1-2 (1998): 347, https://doi.org/10.1016/s0004-3702(98)00055-1.
- Boden, 355.
- Martin Rooney and Steven Smith, “Artificial Intelligence in Engineering Design.” Computers & Structures 16, no. 1 (1983): 281, https://doi.org/10.1016/0045-7949(83)90167-0.
- Rooney and Smith, 281.
- Rooney and Smith, 281.
- Rooney and Smith, 281.
- Rooney and Smith, 282.
Bibliography
“A different dystopia July 2030; If robots don’t take all the jobs.” The Economist, vol. 432, no. 9150, 6 July 2019, p. 9(US). Gale OneFile: CPI.Q, https://link-gale-com.ez-proxy.lib.ryerson.ca/apps/doc/A592162382/CPI?u=rpu_main&sid=CPI&xid=96a0d8e1 . Accessed 24 Sept. 2020.’
Baldwin, Eric. “How Artificial Intelligence Will Shape Design by 2050” 16 Apr 2020. ArchDaily. Accessed 24 Sep 2020. ISSN 0719-8884
Boden, Margaret A. “Creativity and Artificial Intelligence.” Artificial Intelligence 103, no. 1-2 (1998): 347–56. https://doi.org/10.1016/s0004-3702(98)00055-1.
Bratton, Benjamin H. The Stack - On Software and Sovereignty. ProQuest Ebook Central. Massachusetts: MIT Press, 2016. https://ebookcentral-proquest-com.ezproxy.lib.ryerson.ca/lib/ryerson/detail.action?docID=4424500.
Carta, Silvio, Stephanie St. Loe, Tommaso Turchi, and Joel Simon. “Self-Organising Floor Plans in Care Homes.” Sustainability, 4393, 12, no. 11 (2020). https://doi.org/10.3390/su12114393.
Carta, Silvio. “Machine Learning and Computational Design.” Ubiquity 2020, no. May (2020). https://doi.org/10.1145/3401842.
Cevora, George. “The Relationship between Biological and Artificial Intelligence.” Illumr, 2019. https://arxiv.org/abs/1905.00547.
Clements-Croome, Derek, and Victor Callaghan. “Chapter 5: Intelligent Environments.” In Intelligent Buildings, 71–87. London: ICE Publishing, 2013a. http://dx.doi.org/10.1680/ib.57340.071.
Clements-Croome, Derek, and Ziona Strelitz. “Chapter 14: The changing culture of living and working: physical and virtual modalities.” In Intelligent Buildings, 215–222. London: ICE Publishing, 2013b. https://doi.org/10.1680/ib.57340.215.
“A different dystopia July 2030; If robots don’t take all the jobs.” The Economist, vol. 432, no. 9150, 6 July 2019, p. 9(US). Gale OneFile: CPI.Q, https://link-gale-com.ez-proxy.lib.ryerson.ca/apps/doc/A592162382/CPI?u=rpu_main&sid=CPI&xid=96a0d8e1 . Accessed 24 Sept. 2020.’
Baldwin, Eric. “How Artificial Intelligence Will Shape Design by 2050” 16 Apr 2020. ArchDaily. Accessed 24 Sep 2020.
Boden, Margaret A. “Creativity and Artificial Intelligence.” Artificial Intelligence 103, no. 1-2 (1998): 347–56. https://doi.org/10.1016/s0004-3702(98)00055-1.
Bratton, Benjamin H. The Stack - On Software and Sovereignty. ProQuest Ebook Central. Massachusetts: MIT Press, 2016. https://ebookcentral-proquest-com.ezproxy.lib.ryerson.ca/lib/ryerson/detail.action?docID=4424500.
Carta, Silvio, Stephanie St. Loe, Tommaso Turchi, and Joel Simon. “Self-Organising Floor Plans in Care Homes.” Sustainability, 4393, 12, no. 11 (2020). https://doi.org/10.3390/su12114393.
Carta, Silvio. “Machine Learning and Computational Design.” Ubiquity 2020, no. May (2020). https://doi.org/10.1145/3401842.
Cevora, George. “The Relationship between Biological and Artificial Intelligence.” Illumr, 2019. https://arxiv.org/abs/1905.00547.
Clements-Croome, Derek, and Victor Callaghan. “Chapter 5: Intelligent Environments.” In Intelligent Buildings, 71–87. London: ICE Publishing, 2013a. http://dx.doi.org/10.1680/ib.57340.071.
Clements-Croome, Derek, and Ziona Strelitz. “Chapter 14: The changing culture of living and working: physical and virtual modalities.” In Intelligent Buildings, 215–222. London: ICE Publishing, 2013b. https://doi.org/10.1680/ib.57340.215.
Clements-Croome, Derek, Michael Beaven, and Duncan Wilson. “Chapter 16: Sky Studios, Hounslow, UK, and the internet of things.” In Intelligent Buildings, 245–270. London: ICE Publishing, 2013c. https://doi.org/10.1680/ib.57340.245.
Fazi, M Beatrice. “Can a Machine Think (Anything New)? Automation beyond Simulation.” AI & Society, 2019, 34, no. 813-824 (February 12, 2018). https://doi.org/10.1007/s00146-018-0821-0.
Frey, Carl Benedikt, and Michael A. Osborne. “The Future of Employment: How Susceptible Are Jobs to Computerisation?” Technological Forecasting and Social Change 114 (2013): 254–80. https://doi.org/10.1016/j.techfore.2016.08.019.
Kurzweil, Ray. The Singularity Is Near: When Humans Transcend Biology. London: Duckworth, 2016.
Lang, Peter, and William Menking. Superstudio: Life Without Objects. Milano: Skira Editore S.p.A., 2003. https://reserve.library.ryerson.ca/ares/ares.dll?SessionID=Y-021920630J&Action=10&Type=10&Value=336760.
Manic, Milos, Kasun Amarasinghe, Juan J. Rodriguez-Andina, and Craig Rieger. “Intelligent Buildings of the Future: Cyberaware, Deep Learning Powered, and Human Interacting.” IEEE Industrial Electronics Magazine 10, no. 4 (2016): 32–49. https://doi.org/10.1109/mie.2016.2615575.
McGinley, Tim. “A Metamorphogenetic Architecture for Intelligent Buildings.” Intelligent Buildings International 7, no. 1 (November 7, 2014): 4–15. https://doi.org/10.1080/17508975.2014.970120.
Rooney, Martin F, and Steven E Smith. “Artificial Intelligence in Engineering Design.” Computers & Structures 16, no. 1 (1983): 279–88. https://doi.org/10.1016/0045-7949(83)90167-0.
Shanahan, Murray. Introduction. In The Technological Singularity, xv-xxiii. Cambridge: The MIT Press, 2015a. https://ebookcentral-proquest-com.ezproxy.lib.ryerson.ca/lib/ryerson/reader.action?docID=3433796&ppg=1.
Shanahan, Murray. “Whole Brain Emulation.” In The Technological Singularity, 15–50. Cambridge: The MIT Press, 2015b. https://ebookcentral-proquest-com.ezproxy.lib.ryerson.ca/lib/ryerson/reader.action?docID=3433796&ppg=75.
Shanahan, Murray. “Superintelligence.” In The Technological Singularity, 85-116. Cambridge: The MIT Press, 2015c. https://ebookcentral-proquest-com.ezproxy.lib.ryerson.ca/lib/ryerson/reader.action?docID=3433796&ppg=110.
Tamke, Martin, Paul Nicholas, and Mateusz Zwierzycki. “Machine Learning for Architectural Design: Practices and Infrastructure.” International Journal of Architectural Computing 16, no. 2 (2018): 123–43. https://doi.org/10.1177/1478077118778580.
Williams, Matt. “What Is A Singularity?.” Universe Today. January 7, 2017. https://www.universetoday.com/84147/singularity/.
Fazi, M Beatrice. “Can a Machine Think (Anything New)? Automation beyond Simulation.” AI & Society, 2019, 34, no. 813-824 (February 12, 2018). https://doi.org/10.1007/s00146-018-0821-0.
Frey, Carl Benedikt, and Michael A. Osborne. “The Future of Employment: How Susceptible Are Jobs to Computerisation?” Technological Forecasting and Social Change 114 (2013): 254–80. https://doi.org/10.1016/j.techfore.2016.08.019.
Kurzweil, Ray. The Singularity Is Near: When Humans Transcend Biology. London: Duckworth, 2016.
Lang, Peter, and William Menking. Superstudio: Life Without Objects. Milano: Skira Editore S.p.A., 2003. https://reserve.library.ryerson.ca/ares/ares.dll?SessionID=Y-021920630J&Action=10&Type=10&Value=336760.
Manic, Milos, Kasun Amarasinghe, Juan J. Rodriguez-Andina, and Craig Rieger. “Intelligent Buildings of the Future: Cyberaware, Deep Learning Powered, and Human Interacting.” IEEE Industrial Electronics Magazine 10, no. 4 (2016): 32–49. https://doi.org/10.1109/mie.2016.2615575.
McGinley, Tim. “A Metamorphogenetic Architecture for Intelligent Buildings.” Intelligent Buildings International 7, no. 1 (November 7, 2014): 4–15. https://doi.org/10.1080/17508975.2014.970120.
Rooney, Martin F, and Steven E Smith. “Artificial Intelligence in Engineering Design.” Computers & Structures 16, no. 1 (1983): 279–88. https://doi.org/10.1016/0045-7949(83)90167-0.
Shanahan, Murray. Introduction. In The Technological Singularity, xv-xxiii. Cambridge: The MIT Press, 2015a. https://ebookcentral-proquest-com.ezproxy.lib.ryerson.ca/lib/ryerson/reader.action?docID=3433796&ppg=1.
Shanahan, Murray. “Whole Brain Emulation.” In The Technological Singularity, 15–50. Cambridge: The MIT Press, 2015b. https://ebookcentral-proquest-com.ezproxy.lib.ryerson.ca/lib/ryerson/reader.action?docID=3433796&ppg=75.
Shanahan, Murray. “Superintelligence.” In The Technological Singularity, 85-116. Cambridge: The MIT Press, 2015c. https://ebookcentral-proquest-com.ezproxy.lib.ryerson.ca/lib/ryerson/reader.action?docID=3433796&ppg=110.
Tamke, Martin, Paul Nicholas, and Mateusz Zwierzycki. “Machine Learning for Architectural Design: Practices and Infrastructure.” International Journal of Architectural Computing 16, no. 2 (2018): 123–43. https://doi.org/10.1177/1478077118778580.
Williams, Matt. “What Is A Singularity?.” Universe Today. January 7, 2017. https://www.universetoday.com/84147/singularity/.
The Commodification of Architecture:
How it Challenges the Right to the City
Introduction
Architecture is grounded in utopian thinking. What is the job of the architect if not to try to design the best possible future for people and society? This perspective is challenged in today’s cities, where the interests of the market take precedence over the interests of people. In 1967, Henri Lefebvre wrote an essay called “The Right to the City”, which demanded the right for citizen participation and appropriation of space.1 One year later, the general strike and student uprising in France, known as May 1968, put Lefebvre’s words into action. Students and workers rose to challenge neoliberalism, capitalism, and consumerism which had come to dominate postwar urbanization. It was a demand for centrality for those who had been peripheralized, referring to immigrants, women, workers, the ghettoization of low-income neighbourhoods and public housing.2 Lefebvre saw May 1968 as “Utopia’s last stand”3, because the uprising ultimately failed, leaving cities to become more deeply intrenched in neoliberal hegemony. Emerging out of Lefebvre’s work on “The Right to the City”, came one of his most influential books, The Production of Space.4
Architecture is grounded in utopian thinking. What is the job of the architect if not to try to design the best possible future for people and society? This perspective is challenged in today’s cities, where the interests of the market take precedence over the interests of people. In 1967, Henri Lefebvre wrote an essay called “The Right to the City”, which demanded the right for citizen participation and appropriation of space.1 One year later, the general strike and student uprising in France, known as May 1968, put Lefebvre’s words into action. Students and workers rose to challenge neoliberalism, capitalism, and consumerism which had come to dominate postwar urbanization. It was a demand for centrality for those who had been peripheralized, referring to immigrants, women, workers, the ghettoization of low-income neighbourhoods and public housing.2 Lefebvre saw May 1968 as “Utopia’s last stand”3, because the uprising ultimately failed, leaving cities to become more deeply intrenched in neoliberal hegemony. Emerging out of Lefebvre’s work on “The Right to the City”, came one of his most influential books, The Production of Space.4
The following paper draws on some of the key concepts discussed in this book, such as the commodification of space and the right to centrality, which is further analyzed in relation to urbanism and architecture through the works of Nathaniel Coleman, David Harvey, and Stefan Kipfer. With a majority of the world living in urban areas today, space within cities has never been more contested. Cities are the center of consumption, and architecture has become commodified to the point that it has become a part of what Marx theorizes as “commodity fetishism”.5 Lefebvre’s emphasis on the importance of the “everyday” becomes central to how architects can work outside the realm of commodity fetishism. This paper argues that the commodification of architecture challenges the Right to the City and reduces the ability for architects to both represent and design for the reality of everyday life. However, architects can challenge this through alternative forms of representations and counter-hegemonic practices that use architectural knowledge and awareness of space to critique society and expand participation and collaboration.
History of Urbanization and Rise of Consumption
By looking at the history of urbanization since the mid-20th century, one can get a better understanding of how consumption has come to define the way we think we should live our lives, and the way that architects design. Harvey states that “since urbanization depends on the mobilization of a surplus product, an intimate connection emerges between the development of capitalism and urbanization”.6 During the 1940s, the capacity for industrial production was significantly increased for the war effort. Once WWII ended, this capacity for production needed new outlets for consumption to stabilize the economy.7 In North America, this was done through suburbanization and promotion of new lifestyles. Harvey states,
These lifestyles were further engrained into society by offering subsidies that made it possible for people to own their own homes. This strategy not only put values of property ownership and individualism before the community, but also pacified the population.9 Those who owned property and were paying off debts were less likely to cause civil unrest.10 This contributed to neoliberal hegemony, which Antonio Gramsci argued was constantly perpetuated through “popular culture”.11 A level of consent amongst society continues the dominance of hegemony, because if people are invested in these new lifestyles, they refrain from challenging the status quo, making it difficult for people from seeing any other alternative way of life. Suburbanization left the cities abandoned, except by those who could not afford to leave.12
Cities became the antithesis of the suburbs and centers for civil unrest. They were places for the homeless, squatters, and those who did not fit into the new lifestyles in the suburbs. The desertification, lack of investment, and financial crash in the early 1970s, led to many cities becoming bankrupt, such as New York City in 1975.13 According to the government, cities were in a crisis. The response to this crisis was to create a new urban market. During this time, buildings in downtown were affordable, if not abandoned. This invited squatter movements, and the growth of underground cultures and arts communities. Inevitably, as these places became more popular, so did the cost of living.14 A new market started to focus on the service industry, which targeted students and yuppies that came to live in these areas.15 Harvey argues that 1972 was a turning point towards a new kind of capitalism, which he calls “flexible accumulation”.16 The rise of the entrepreneurial city led to the competition amongst cities to be centers of consumption in response to deindustrialization.17 During this time we see a shift in architectural thinking, from the modernist to the postmodernist movement, which was a shift from having a sense of social responsibility of urban renewal towards commodification and aestheticization that became a symbol of social status.
There was an ambition amongst modern architects to solve the world’s problems, through standardization, efficient design for the masses, and social housing developments.18 Modernism also had a political edge through promoting democracy. This is seen by advocating transparent diplomacy through the free plan and Hannes Meyer’s glazed rooms of his proposal for the League of Nations.19 As cities became deteriorated, there was an opportunity to reshape them. This led to a complete restructuring of the city centre, with government funded public housing projects that would ensure the pre-war slums would not re-emerge.20 However, by the 1960’s many began to criticize the modernist movement. McLeod describes the changing views of the public housing projects, which became seen as a “wasteland of urban renewal”.21 She further states that the style of the architecture became seen as “arcane, mute, and of little appeal outside a narrow cultural elite”.22 Modernism became associated with capitalist accumulation and Fordist modernization, which dominated the internationalist corporate aesthetic.23 Lefebvre’s critique of urbanism was partly in response to the homogenization and standardization of modernist architecture.24 Despite the failures, there was at least a sense of responsibility amongst architects to address concerns in society. Postmodernism rose out of a reaction to modernism, with a much lower sense of social responsibility.
By looking at the history of urbanization since the mid-20th century, one can get a better understanding of how consumption has come to define the way we think we should live our lives, and the way that architects design. Harvey states that “since urbanization depends on the mobilization of a surplus product, an intimate connection emerges between the development of capitalism and urbanization”.6 During the 1940s, the capacity for industrial production was significantly increased for the war effort. Once WWII ended, this capacity for production needed new outlets for consumption to stabilize the economy.7 In North America, this was done through suburbanization and promotion of new lifestyles. Harvey states,
“The suburbanization of the United States was not merely a matter of new infrastructures… it entailed a radical transformation in lifestyles, bringing new products from housing to refrigerators and air conditioners, as well as two cars in the driveway and an enormous increase in the consumption of oil”.8
These lifestyles were further engrained into society by offering subsidies that made it possible for people to own their own homes. This strategy not only put values of property ownership and individualism before the community, but also pacified the population.9 Those who owned property and were paying off debts were less likely to cause civil unrest.10 This contributed to neoliberal hegemony, which Antonio Gramsci argued was constantly perpetuated through “popular culture”.11 A level of consent amongst society continues the dominance of hegemony, because if people are invested in these new lifestyles, they refrain from challenging the status quo, making it difficult for people from seeing any other alternative way of life. Suburbanization left the cities abandoned, except by those who could not afford to leave.12
Cities became the antithesis of the suburbs and centers for civil unrest. They were places for the homeless, squatters, and those who did not fit into the new lifestyles in the suburbs. The desertification, lack of investment, and financial crash in the early 1970s, led to many cities becoming bankrupt, such as New York City in 1975.13 According to the government, cities were in a crisis. The response to this crisis was to create a new urban market. During this time, buildings in downtown were affordable, if not abandoned. This invited squatter movements, and the growth of underground cultures and arts communities. Inevitably, as these places became more popular, so did the cost of living.14 A new market started to focus on the service industry, which targeted students and yuppies that came to live in these areas.15 Harvey argues that 1972 was a turning point towards a new kind of capitalism, which he calls “flexible accumulation”.16 The rise of the entrepreneurial city led to the competition amongst cities to be centers of consumption in response to deindustrialization.17 During this time we see a shift in architectural thinking, from the modernist to the postmodernist movement, which was a shift from having a sense of social responsibility of urban renewal towards commodification and aestheticization that became a symbol of social status.
There was an ambition amongst modern architects to solve the world’s problems, through standardization, efficient design for the masses, and social housing developments.18 Modernism also had a political edge through promoting democracy. This is seen by advocating transparent diplomacy through the free plan and Hannes Meyer’s glazed rooms of his proposal for the League of Nations.19 As cities became deteriorated, there was an opportunity to reshape them. This led to a complete restructuring of the city centre, with government funded public housing projects that would ensure the pre-war slums would not re-emerge.20 However, by the 1960’s many began to criticize the modernist movement. McLeod describes the changing views of the public housing projects, which became seen as a “wasteland of urban renewal”.21 She further states that the style of the architecture became seen as “arcane, mute, and of little appeal outside a narrow cultural elite”.22 Modernism became associated with capitalist accumulation and Fordist modernization, which dominated the internationalist corporate aesthetic.23 Lefebvre’s critique of urbanism was partly in response to the homogenization and standardization of modernist architecture.24 Despite the failures, there was at least a sense of responsibility amongst architects to address concerns in society. Postmodernism rose out of a reaction to modernism, with a much lower sense of social responsibility.
The financial crash in the early 1970’s and a lack of work for architects led to a rise in theoretical exploration, which created space for architects to question the modernist movement. The failures of the public housing projects led to a disillusionment amongst architects, questioning if architecture could be an effective tool for social change.25 Postmodernism reacted to what was seen as dull and mundane, and sought to explore diversity and complexity in design. Architecture came to be seen as an art rather than an agent of social change.26 The nature of art relies on the idea of praise, which promotes ideas of luxury and elitist consumption.
As soon as the economy picked up in the 80s, architects went from focusing on theory to cashing in on this new ability to market architecture.27 As an art, it was able to be sold through books, magazines, and exhibits like never before.28 Harvey states that “postmodernism is nothing more than the cultural clothing of flexible accumulation”.29 Just as modernism became associated with the corporate aesthetics of the elite by the end of its reign, so too did postmodernism become the new style of the elite classes. Whereas modernism was focused on form, postmodernism focused on image.30 As the cities were becoming reclaimed by the social elite, architecture was becoming more commodified and sold through promoting an image of social prestige.
Today we have entered a new level of urbanization. Richard Florida’s book called The New Urban Crisis31, was written in response to the criticism he received from his earlier book written in 2002, called The Rise of the Creative Class.32 In this earlier book he argued that the success of cities relied on the ability to attract and support the young “cultural creatives” who attract large businesses and high-paying jobs.33 He was criticized for supporting gentrification as good for cities.34 This led him to re-think his argument, in which he recognized that he was ignoring the fact that gentrification was leading to a homogeneity of wealth, a decrease of the middle-class, and increased inequality in cities. This is what he is referring to as “the new urban crisis”. When Harvey discussed the “entrepreneurial city” and inter-city competition, he was referring to displays of wealth and commodification through the development of sports facilities and Disney worlds during the rise of postmodernism.35 Today, this competition amongst cities has transitioned to focus on what Florida calls,
He is emphasizing the need for cities to be vibrant, diverse, inclusive, and accessible. However, this ideal vision of the city lifestyle is not realistic. In the past, these vibrant music and art cultures only emerged because artists and diverse groups of people could afford rent in the cities when they were undesirable places to live. Now, cities have become highly desired and unaffordable. These “cultural creatives” are being pushed out of the city centre, and regions of “deadened trophy districts” are emerging, where “the global super-rich park their money in high-end housing investments as opposed to places in which to live”.37 Harvey argues that today “the traditional centrality of the city has been destroyed”.38 When cities were undesirable, they were places of refuge for those who could not afford to leave. The modernist movement sought to address this through mass public housing projects to prevent urban slums. Once cities became desirable again, the elite sought to take back the city centre from those who never left. Lefebvre’s notion of the Right to the City and the Right to Centrality is raised once again. Merrifield points out that maybe now, the right to centrality does not necessarily mean the physical centre of the city, but rather the centre of your being. The physical centre of the city has become so unattainable for most people. With the world becoming more urbanized, there needs to be multiple centers throughout the periphery that allow people to fulfill their needs of everyday life within their own neighbourhoods.
As soon as the economy picked up in the 80s, architects went from focusing on theory to cashing in on this new ability to market architecture.27 As an art, it was able to be sold through books, magazines, and exhibits like never before.28 Harvey states that “postmodernism is nothing more than the cultural clothing of flexible accumulation”.29 Just as modernism became associated with the corporate aesthetics of the elite by the end of its reign, so too did postmodernism become the new style of the elite classes. Whereas modernism was focused on form, postmodernism focused on image.30 As the cities were becoming reclaimed by the social elite, architecture was becoming more commodified and sold through promoting an image of social prestige.
Today we have entered a new level of urbanization. Richard Florida’s book called The New Urban Crisis31, was written in response to the criticism he received from his earlier book written in 2002, called The Rise of the Creative Class.32 In this earlier book he argued that the success of cities relied on the ability to attract and support the young “cultural creatives” who attract large businesses and high-paying jobs.33 He was criticized for supporting gentrification as good for cities.34 This led him to re-think his argument, in which he recognized that he was ignoring the fact that gentrification was leading to a homogeneity of wealth, a decrease of the middle-class, and increased inequality in cities. This is what he is referring to as “the new urban crisis”. When Harvey discussed the “entrepreneurial city” and inter-city competition, he was referring to displays of wealth and commodification through the development of sports facilities and Disney worlds during the rise of postmodernism.35 Today, this competition amongst cities has transitioned to focus on what Florida calls,
“the new people-driven, place-based economy turned on doing the smaller things that made cities great places to live and work – things like making sure there were walkable, pedestrian-friendly streets, bike lanes, parks, exciting art and music scene, and vibrant areas where people could gather in cafes and restaurants. Cities need more than a competitive business climate; they also needed a great people climate that appealed to individuals and families of all types – single, married, with children or without, straight or gay.”36
He is emphasizing the need for cities to be vibrant, diverse, inclusive, and accessible. However, this ideal vision of the city lifestyle is not realistic. In the past, these vibrant music and art cultures only emerged because artists and diverse groups of people could afford rent in the cities when they were undesirable places to live. Now, cities have become highly desired and unaffordable. These “cultural creatives” are being pushed out of the city centre, and regions of “deadened trophy districts” are emerging, where “the global super-rich park their money in high-end housing investments as opposed to places in which to live”.37 Harvey argues that today “the traditional centrality of the city has been destroyed”.38 When cities were undesirable, they were places of refuge for those who could not afford to leave. The modernist movement sought to address this through mass public housing projects to prevent urban slums. Once cities became desirable again, the elite sought to take back the city centre from those who never left. Lefebvre’s notion of the Right to the City and the Right to Centrality is raised once again. Merrifield points out that maybe now, the right to centrality does not necessarily mean the physical centre of the city, but rather the centre of your being. The physical centre of the city has become so unattainable for most people. With the world becoming more urbanized, there needs to be multiple centers throughout the periphery that allow people to fulfill their needs of everyday life within their own neighbourhoods.
Commodification of Architecture
When cities become desirable, the spaces within them become highly valued as a commodity. Many theorists have discussed the terms “use value” and “exchange value”. Adam Smith defines use value by the usefulness that a product can fulfill ones needs.39 Exchange value is determined not by its usefulness, but by its purchasing power.40 Marx defines the relationship between use value and exchange value as a commodity. The only use value a commodity has for the owner is through the amount of exchange value it holds.41 Harvey discusses the issues that arise when land becomes the commodity.42 Firstly, people cannot exist without occupying space.43 This brings into question human rights that revolve around occupying space, one of them being the right to housing. Secondly, those who own property are more concerned with exchange value, yet they have a monopoly over determining its use value.44 When exchange value takes precedence over use value, architects become limited in their ability to design for how people use space. Instead, they must ensure that the design does not compromise the exchange value, despite what the present use of the space may be. Anna Minton points out in her essay “Who is the City For”, that “Lefebvre’s conception of the Right to the City was based around the everyday experience of people inhabiting the city, emphasizing use value over exchange value”.45 However, the Right to the City is being challenged by prioritizing exchange value. The development of land becomes dependent on its ability to sell. Lefebvre states, “We build on the basis of papers and plans. We buy on the basis of images”.46 Just as a city relies on marketing itself through imagery, so too does architecture become more concerned with its representation rather than its use. The representation of architecture for the means of selling brings it into the realm of Marx’s “commodity fetishism”.47 Architecture becomes a symbol of social status, feeding an endless need for consumption.
Architecture has and always will be communicated through drawing, imagery, and representation. Mass media and communication has contributed to an increased awareness and interest in architecture amongst the general population.48 The representation of architecture is not just for other architects, builders, and designers, but is used as a marketing tool to sell in the greater public sphere. There is always an intent behind an image. Swati Chattopadhyay recognizes three different kinds of representation.49 The first is a portrait, which is intended to portray a reality. The second is a “proxy”, which acts as a stand-in. The third is political, that which forms a critique. The public perception of architectural representation is that it is forming a portrait of reality. However, if the intent behind that representations is to sell, then the image can become heavily distorted. Lefebvre states, “the image kills”.50 When architecture becomes a commodity, the representation of it does not portray the whole truth, and even tries to “conceal and deceive”.51 As cities portray a deceiving image of a livable environment, the architectural representation that is used to do so becomes further separated from reality.
The nuclear family living in the single-family home in the suburbs is no longer the lifestyle that is being marketed on a grand scale as in the post-WWII period. Today, it is focused on young professionals living in condos in the downtown city. Gillad Rosen discusses the power that developers have in shaping cites, specifically Toronto52, which would be considered one of Florida’s “superstar city tech-hubs.53 Toronto has gone through a similar process of post-war deindustrialization as discussed in the previous section. What was once an industrial focused city, has grown into a consumer and real estate driven environment. Rosen uses the term “condo-ism” to describe the way developers have transformed our cities. Condominiums have become so ubiquitous in the city, that they are the new dominant form of rental housing. However, they are not managed like typical rental buildings, which would have one governing body. Instead, a new form of governance emerges that involves multiple internal private owners.54 This reduces the ability for public regulation over rental housing.
When cities become desirable, the spaces within them become highly valued as a commodity. Many theorists have discussed the terms “use value” and “exchange value”. Adam Smith defines use value by the usefulness that a product can fulfill ones needs.39 Exchange value is determined not by its usefulness, but by its purchasing power.40 Marx defines the relationship between use value and exchange value as a commodity. The only use value a commodity has for the owner is through the amount of exchange value it holds.41 Harvey discusses the issues that arise when land becomes the commodity.42 Firstly, people cannot exist without occupying space.43 This brings into question human rights that revolve around occupying space, one of them being the right to housing. Secondly, those who own property are more concerned with exchange value, yet they have a monopoly over determining its use value.44 When exchange value takes precedence over use value, architects become limited in their ability to design for how people use space. Instead, they must ensure that the design does not compromise the exchange value, despite what the present use of the space may be. Anna Minton points out in her essay “Who is the City For”, that “Lefebvre’s conception of the Right to the City was based around the everyday experience of people inhabiting the city, emphasizing use value over exchange value”.45 However, the Right to the City is being challenged by prioritizing exchange value. The development of land becomes dependent on its ability to sell. Lefebvre states, “We build on the basis of papers and plans. We buy on the basis of images”.46 Just as a city relies on marketing itself through imagery, so too does architecture become more concerned with its representation rather than its use. The representation of architecture for the means of selling brings it into the realm of Marx’s “commodity fetishism”.47 Architecture becomes a symbol of social status, feeding an endless need for consumption.
Architecture has and always will be communicated through drawing, imagery, and representation. Mass media and communication has contributed to an increased awareness and interest in architecture amongst the general population.48 The representation of architecture is not just for other architects, builders, and designers, but is used as a marketing tool to sell in the greater public sphere. There is always an intent behind an image. Swati Chattopadhyay recognizes three different kinds of representation.49 The first is a portrait, which is intended to portray a reality. The second is a “proxy”, which acts as a stand-in. The third is political, that which forms a critique. The public perception of architectural representation is that it is forming a portrait of reality. However, if the intent behind that representations is to sell, then the image can become heavily distorted. Lefebvre states, “the image kills”.50 When architecture becomes a commodity, the representation of it does not portray the whole truth, and even tries to “conceal and deceive”.51 As cities portray a deceiving image of a livable environment, the architectural representation that is used to do so becomes further separated from reality.
The nuclear family living in the single-family home in the suburbs is no longer the lifestyle that is being marketed on a grand scale as in the post-WWII period. Today, it is focused on young professionals living in condos in the downtown city. Gillad Rosen discusses the power that developers have in shaping cites, specifically Toronto52, which would be considered one of Florida’s “superstar city tech-hubs.53 Toronto has gone through a similar process of post-war deindustrialization as discussed in the previous section. What was once an industrial focused city, has grown into a consumer and real estate driven environment. Rosen uses the term “condo-ism” to describe the way developers have transformed our cities. Condominiums have become so ubiquitous in the city, that they are the new dominant form of rental housing. However, they are not managed like typical rental buildings, which would have one governing body. Instead, a new form of governance emerges that involves multiple internal private owners.54 This reduces the ability for public regulation over rental housing.
Furthermore, the business of selling these condos rely heavily on branding and marketing, focused on the city centre, young professionals and promoting the condo lifestyle.55
The images that are used to promote this lifestyle are often deceptive, for example real estate agents go to extreme lengths to make spaces look more livable than they are. With the use of new technology, such as drone photography and virtual tours, the representation of space can be highly manipulated. Wide camera angles are used to make spaces look much bigger than in reality. Steven Fudge, a sales representative in Toronto states,
People are not willing to see spaces in the reality of how we live. The fact that real estate agents have no choice but to resort to distorting reality to sell homes shows that there is a bigger problem of a lack of livable housing in the city.
Regent Park was Canada’s first and largest public housing development. It was built in the mid-20th century, during the time when the modernist movement had ambitions for social responsibility and urban renewal. In 2003, it was approved to be one of Canada’s first revitalization projects, which rested on the model of socially mixed income development. What set this development apart from others was its unique “right-of-return” policy, which guarantees a unit of similar size to existing tenants.57 However, only 27% of the new housing was subsidized, with a lottery determining who would be able to return.58 Martine August argues that the mixed-income development was marketed under the guise of promoting equality, when really it was about unlocking land value and introducing middle-upper income consumers into the city centre.59 August further argues that the city strategy for gaining support for the revitalization project was to “vilify, then gentrify”.60 To vilify the neighbourhood by spreading negative rhetoric that claims the only fix is to completely demolish everything and start with a clean slate. Then gentrify, by bringing higher income residents into the area to increase land value. The city plan even used language that August points out was very “paternalistic and condescending”.61 The Regent Park Revitalization Plan stated,
Regent Park is an example of the city putting precedence of exchange value over use value. Higher-income residents are already able to command the space around them through exchange value, where as low-income neighbourhoods rely heavily on the community for support. By deconcentrating low-income residents, it becomes more difficult for people to contribute to and receive support from their communities. It is also a way to make poverty invisible. Before the revitalization of Regent Park, there were strong community ties, and the ability to organize that support was much easier. This is what Lefebvre would see as important to commanding ones own space in everyday life. Instead, the strategy of cities is to declare entire areas as “diseased”, and “they can only be cured by radical surgery as something necessary for protecting citizens”.63
“homebuyers are so reluctant to envision themselves anywhere but an unlived-in show home… buyers expect to step into a manufactured, aspirational lifestyle, and sellers are penalized if they don’t want to buy into the process”.56
People are not willing to see spaces in the reality of how we live. The fact that real estate agents have no choice but to resort to distorting reality to sell homes shows that there is a bigger problem of a lack of livable housing in the city.
Regent Park was Canada’s first and largest public housing development. It was built in the mid-20th century, during the time when the modernist movement had ambitions for social responsibility and urban renewal. In 2003, it was approved to be one of Canada’s first revitalization projects, which rested on the model of socially mixed income development. What set this development apart from others was its unique “right-of-return” policy, which guarantees a unit of similar size to existing tenants.57 However, only 27% of the new housing was subsidized, with a lottery determining who would be able to return.58 Martine August argues that the mixed-income development was marketed under the guise of promoting equality, when really it was about unlocking land value and introducing middle-upper income consumers into the city centre.59 August further argues that the city strategy for gaining support for the revitalization project was to “vilify, then gentrify”.60 To vilify the neighbourhood by spreading negative rhetoric that claims the only fix is to completely demolish everything and start with a clean slate. Then gentrify, by bringing higher income residents into the area to increase land value. The city plan even used language that August points out was very “paternalistic and condescending”.61 The Regent Park Revitalization Plan stated,
“Behavioral patterns of lower-income tenants will be altered by interaction with higher income neighbours. For example, social norms about workforce participation will be passed on to lower income residents”.62
Regent Park is an example of the city putting precedence of exchange value over use value. Higher-income residents are already able to command the space around them through exchange value, where as low-income neighbourhoods rely heavily on the community for support. By deconcentrating low-income residents, it becomes more difficult for people to contribute to and receive support from their communities. It is also a way to make poverty invisible. Before the revitalization of Regent Park, there were strong community ties, and the ability to organize that support was much easier. This is what Lefebvre would see as important to commanding ones own space in everyday life. Instead, the strategy of cities is to declare entire areas as “diseased”, and “they can only be cured by radical surgery as something necessary for protecting citizens”.63
How Architects Challenge the Commodification of Architecture
It is difficult to imagine how architecture can be an agent of social change when the work of an architect depends so heavily on others, which further perpetuates this sense of hegemony. Architects often feel frustrated with the external influences that prevent them from doing the kind of work they want to do. Samuel Mockbee states,
“The professional challenge, whether one is an architect in the rural American South or elsewhere in the world, is how to avoid being so stunned by the power of modern technology and economic affluence that one does not lose sight of the fact that people and place matter”.64
Lefebvre sees any form of building as a “direct expression of power”.65 However, Coleman provides some solace through pinpointing aspects of Lefebvre’s work that indicate how one can challenge the commodification of architecture. Lefebvre saw the everyday urban setting as a driver for capitalist consumptions, as well as a source of resistance.66 Coleman calls Lefebvre the “philosopher of cracks”.67 By finding these contradictions in everyday life, one can form cracks in the system that begin to break away at the entire structure. Coleman states that, “In Lefebvre’s view, it is also – at least potentially – the landscape of the everyday out of which change can arise, but not before the everyday is subjected to sustained critique”. This requires rethinking the definition of an architect and expanding the scope of their work. The following section will explore examples of three different ways architects can challenge the commodification of architecture. The first is through representation that does not deceive and try to upsell unattainable lifestyles. The second is by using architectural knowledge to provide a critique of society, making the public see something that they may have overlooked before. The third is by broadening the role of the architect to design not for others, but with others. Each of these examples, which I would classify as counter-hegemonic practices, emphasize process over the final product.
Architects cannot escape representation; it is the basis of how they communicate. However, architects do have control over what they are communicating. Extra attention must be drawn to this when the imagery is being consumed by the masses. With increased public attention towards architecture as an art and a commodity, there lies a responsibility, and an opportunity for architects to capture this attention and draw it towards more realistic and meaningful perspectives. There is also a danger of not just fooling the potential buyers, but also fooling the architects themselves.68 Technology and computer visualizations have allowed architects to visualize imagined spaces in new ways that appear polished and perfect as soon as they are digitally modelled. As Coleman states, jumping to these techniques too early can “prematurely convince them of the value of their own work”.69 Tatiana Bilbao is a Mexican Architect that bans renders from her process until the very end of a project. Instead, she uses collages, models, and sketches, which allow for mistakes during the design process, and remind one that it is a work in progress. Bilbao states, “A Collage allows a lot of voices to be in one place.”.70 Figure 1 shows a collage for a Masterplan for Hunter’s Point in San Francisco. This kind of representation does not control the intent of the image but allows for multiple interpretations of it.
![]()
Figure 1. Masterplan for Hunter’s Point in San Francisco.71
When representation is about reality, honesty is important. However, as discussed earlier, representation can also be political, providing a critique about society.72 Architects are trained to see space in ways that others have not, and can make others see things that they may not have previously thought much about. In 1973, Gordon Matta Clark, part of the Anarchitecture Group, used his knowledge of space as an architecturally trained artist, to critique the “value of space”.73 His project titled Reality Properties: Fake Estates, consisted of buying left over bits of land that was being auctioned off by the city of New York.74 As seen in Figure 2, Matta Clark presents this work by displaying the legal written descriptions of the land, with the architectural plans of the city block and realistic photographs of each plot, in order to reveal the conflicting interests and intentions behind each form of representation.76
![]()
Figure 2. Reality Properties: Fake Estates (Maspeth Onions’), 1973.75
Stephan Walker states that, “Matta-Clark’s initial purchases and subsequent (re)presentations call into question the illusory space of the drawing that predicates the real estate system”.77 There was a total of 15 estates, each one completely useless, yet still contained enough exchange value that the City of New York was not willing to let go of the land without some monetary exchange.
It is difficult to imagine how architecture can be an agent of social change when the work of an architect depends so heavily on others, which further perpetuates this sense of hegemony. Architects often feel frustrated with the external influences that prevent them from doing the kind of work they want to do. Samuel Mockbee states,
“The professional challenge, whether one is an architect in the rural American South or elsewhere in the world, is how to avoid being so stunned by the power of modern technology and economic affluence that one does not lose sight of the fact that people and place matter”.64
Lefebvre sees any form of building as a “direct expression of power”.65 However, Coleman provides some solace through pinpointing aspects of Lefebvre’s work that indicate how one can challenge the commodification of architecture. Lefebvre saw the everyday urban setting as a driver for capitalist consumptions, as well as a source of resistance.66 Coleman calls Lefebvre the “philosopher of cracks”.67 By finding these contradictions in everyday life, one can form cracks in the system that begin to break away at the entire structure. Coleman states that, “In Lefebvre’s view, it is also – at least potentially – the landscape of the everyday out of which change can arise, but not before the everyday is subjected to sustained critique”. This requires rethinking the definition of an architect and expanding the scope of their work. The following section will explore examples of three different ways architects can challenge the commodification of architecture. The first is through representation that does not deceive and try to upsell unattainable lifestyles. The second is by using architectural knowledge to provide a critique of society, making the public see something that they may have overlooked before. The third is by broadening the role of the architect to design not for others, but with others. Each of these examples, which I would classify as counter-hegemonic practices, emphasize process over the final product.
Architects cannot escape representation; it is the basis of how they communicate. However, architects do have control over what they are communicating. Extra attention must be drawn to this when the imagery is being consumed by the masses. With increased public attention towards architecture as an art and a commodity, there lies a responsibility, and an opportunity for architects to capture this attention and draw it towards more realistic and meaningful perspectives. There is also a danger of not just fooling the potential buyers, but also fooling the architects themselves.68 Technology and computer visualizations have allowed architects to visualize imagined spaces in new ways that appear polished and perfect as soon as they are digitally modelled. As Coleman states, jumping to these techniques too early can “prematurely convince them of the value of their own work”.69 Tatiana Bilbao is a Mexican Architect that bans renders from her process until the very end of a project. Instead, she uses collages, models, and sketches, which allow for mistakes during the design process, and remind one that it is a work in progress. Bilbao states, “A Collage allows a lot of voices to be in one place.”.70 Figure 1 shows a collage for a Masterplan for Hunter’s Point in San Francisco. This kind of representation does not control the intent of the image but allows for multiple interpretations of it.

Figure 1. Masterplan for Hunter’s Point in San Francisco.71
When representation is about reality, honesty is important. However, as discussed earlier, representation can also be political, providing a critique about society.72 Architects are trained to see space in ways that others have not, and can make others see things that they may not have previously thought much about. In 1973, Gordon Matta Clark, part of the Anarchitecture Group, used his knowledge of space as an architecturally trained artist, to critique the “value of space”.73 His project titled Reality Properties: Fake Estates, consisted of buying left over bits of land that was being auctioned off by the city of New York.74 As seen in Figure 2, Matta Clark presents this work by displaying the legal written descriptions of the land, with the architectural plans of the city block and realistic photographs of each plot, in order to reveal the conflicting interests and intentions behind each form of representation.76

Figure 2. Reality Properties: Fake Estates (Maspeth Onions’), 1973.75
Stephan Walker states that, “Matta-Clark’s initial purchases and subsequent (re)presentations call into question the illusory space of the drawing that predicates the real estate system”.77 There was a total of 15 estates, each one completely useless, yet still contained enough exchange value that the City of New York was not willing to let go of the land without some monetary exchange.
The ability for architects to critique society also goes beyond representation. Today in Chicago, Theaster Gates turns land that has almost no exchange value left and uses it to create a space that has immense use value for the surrounding communities. Although this kind of work may be difficult in “superstar” cities like New York, where even the small slivers of land retain a significant exchange value, there are opportunities in the peripheral landscapes of cities that can bring a sense of centrality to their residents. Theaster Gate’s project, Stoney Island Arts Bank (Figure 3), where he turned a derelict building into an art and cultural centre, was presented in the Chicago Biennale 2019.78 The Biennale that year was titled “…and other such stories”. This topic emerged out of a desire for architecture to not neglect its social responsibility and impact on society. The crisis of urbanization that has dominated the planet, in combination with neoliberal hegemony, has raised concern within the architectural community to remind themselves that architecture is really about people. This biennale exhibited many powerful stories were told through the lens of architecture that reminds us of Lefebvre’s call for the Right to the City.
![]()
Figure 3. Stoney Island Arts Bank.79
The top-down approach to architecture, where the architect holds all the intelligence, lends itself to commodification by monopolizing knowledge. Architectural knowledge should instead be used in conjunction with others, especially those that will be the users of what is being designed. Just as Lefebvre sees the potential for change in the everyday, Sarah Wigglesworth and Jeremy Till examine architecture outside of the realm of vanity, perfection, the iconic, and the monumental, by looking at architecture in the context of the everyday.80 The Everyday and Architecture is a collection of work by architects, such as Samuel Mockbee and others alike, who emphasize that the “real productive potential for architects lies in an endless movement between engagement and retreat”,81 to allow creativity to flourish and have many voices heard. Spatial Agency: Other Ways of Doing Architecture, of which Till is also a contributor, along with Nishat Awan and Tatjana Schneider, look at many examples of architectural practice, just as Matta Clark’s Fake Estates, which work outside the neoliberal realm of commodification.82 They also speak to Henri Lefevre, stating that “Lefebvre wrests the production of space from the clutches of specialists, most notably architects and planners, and places it in a much broader social context.”83 The contributors to this book argue not to abandon architectural intelligence, but instead foster mutual knowledge and agency to broaden the profession of architecture.84
An example of a practice that exemplifies what Wigglesworth, Till, Awan and Schneider are advocating is an organization in Sao Paulo called USINA_ctah.85 Their work was also displayed in the Chicago Biennale 2019.86 Sao Paulo is often discussed in terms of the Right to the City, due to its legal recognition of a collective right to the city that was included into their constitution in 2001.87 USINA_ctah is a group of architects, and researchers that work with communities to help them build their own homes and public spaces.88 Their exhibit, The Architecture of Land Struggles, displayed some of their projects that emphasize their focus on collaborative construction processes. One of the more substantial projects they worked on was the construction of Talara, which consisted of 20 buildings, a community hall, and a daycare, which would accommodate for 408 families.89 These were more than just single-family homes. Their main objective was to utilize the skills of the members within the communities to be included in both the decision making and construction process. They focused on “innovative uses of space driven by the needs of those who use it”.90 By reducing the need for skilled construction labor as much as possible, the community members were able to construct 5 to 6 storey buildings using self-supporting masonry (Figure 4-6). Their main objective is to
In addition to their practice, they work to expand the knowledge of what they do through exhibitions and educational workshops. In this context, the profession of the architect has been broadened to not just work for a community but with a community.
![]()
Figure 6. Construction of Talara94

Figure 3. Stoney Island Arts Bank.79
The top-down approach to architecture, where the architect holds all the intelligence, lends itself to commodification by monopolizing knowledge. Architectural knowledge should instead be used in conjunction with others, especially those that will be the users of what is being designed. Just as Lefebvre sees the potential for change in the everyday, Sarah Wigglesworth and Jeremy Till examine architecture outside of the realm of vanity, perfection, the iconic, and the monumental, by looking at architecture in the context of the everyday.80 The Everyday and Architecture is a collection of work by architects, such as Samuel Mockbee and others alike, who emphasize that the “real productive potential for architects lies in an endless movement between engagement and retreat”,81 to allow creativity to flourish and have many voices heard. Spatial Agency: Other Ways of Doing Architecture, of which Till is also a contributor, along with Nishat Awan and Tatjana Schneider, look at many examples of architectural practice, just as Matta Clark’s Fake Estates, which work outside the neoliberal realm of commodification.82 They also speak to Henri Lefevre, stating that “Lefebvre wrests the production of space from the clutches of specialists, most notably architects and planners, and places it in a much broader social context.”83 The contributors to this book argue not to abandon architectural intelligence, but instead foster mutual knowledge and agency to broaden the profession of architecture.84
An example of a practice that exemplifies what Wigglesworth, Till, Awan and Schneider are advocating is an organization in Sao Paulo called USINA_ctah.85 Their work was also displayed in the Chicago Biennale 2019.86 Sao Paulo is often discussed in terms of the Right to the City, due to its legal recognition of a collective right to the city that was included into their constitution in 2001.87 USINA_ctah is a group of architects, and researchers that work with communities to help them build their own homes and public spaces.88 Their exhibit, The Architecture of Land Struggles, displayed some of their projects that emphasize their focus on collaborative construction processes. One of the more substantial projects they worked on was the construction of Talara, which consisted of 20 buildings, a community hall, and a daycare, which would accommodate for 408 families.89 These were more than just single-family homes. Their main objective was to utilize the skills of the members within the communities to be included in both the decision making and construction process. They focused on “innovative uses of space driven by the needs of those who use it”.90 By reducing the need for skilled construction labor as much as possible, the community members were able to construct 5 to 6 storey buildings using self-supporting masonry (Figure 4-6). Their main objective is to
“overcome the authorial and strictly commercial production of architecture and urbanism… to integrate and engineer alterative processes to the logic of capital through counter-hegemonic social, spatial, technical and aesthetic experiences”.91
In addition to their practice, they work to expand the knowledge of what they do through exhibitions and educational workshops. In this context, the profession of the architect has been broadened to not just work for a community but with a community.



Figure 6. Construction of Talara94
Conclusion
Having a sense of social responsibility towards urban renewal is not new. This was evident in the modernist movement before it became branded as a corporate aesthetic. In hindsight, we can learn from the failures of their intentions. However, they had the support of the government behind them. In North America today there is a stigma against public housing, and governments are less willing to financially back them. They are however, still promoting equality and social responsibility to back urban renewal projects, which have been revealed as a guise for unlocking exchange value of land. Cities have entered a crisis today where the value of land and development is so high that architects are designing buildings that are not for those who live in the cities. This begs the question, who are cities for? This re-ignites Lefebvre’s famous call for the Right to the City. The commodification of space, combined with the focus of architecture as an art which ignores any sense of social responsibility, is a recipe for commodity fetishism. It is not that architecture cannot be artistic and beautiful. The problem occurs when that art no longer becomes about the users of the architecture. Architecture is not just about art; it is about creating spaces that address how people interact in their everyday lives. As Mcleod states, “buildings are rarely perceived at once for their aesthetic qualities and “content”; rather their impact occurs gradually through use and repeated contact”.95
Having a sense of social responsibility towards urban renewal is not new. This was evident in the modernist movement before it became branded as a corporate aesthetic. In hindsight, we can learn from the failures of their intentions. However, they had the support of the government behind them. In North America today there is a stigma against public housing, and governments are less willing to financially back them. They are however, still promoting equality and social responsibility to back urban renewal projects, which have been revealed as a guise for unlocking exchange value of land. Cities have entered a crisis today where the value of land and development is so high that architects are designing buildings that are not for those who live in the cities. This begs the question, who are cities for? This re-ignites Lefebvre’s famous call for the Right to the City. The commodification of space, combined with the focus of architecture as an art which ignores any sense of social responsibility, is a recipe for commodity fetishism. It is not that architecture cannot be artistic and beautiful. The problem occurs when that art no longer becomes about the users of the architecture. Architecture is not just about art; it is about creating spaces that address how people interact in their everyday lives. As Mcleod states, “buildings are rarely perceived at once for their aesthetic qualities and “content”; rather their impact occurs gradually through use and repeated contact”.95
Architecture as a commodity puts the final product before the process. I argue that it is the process that brings greater value to architecture, which never actually reaches a final product, because it is always subject to daily use and changes of use.
The role of the architect is once again being challenged to not be passive, and instead be what Samuel Mockbee calls “subversive leaders and teachers”.96 He states,
The examples discussed above show incremental ways that architects can be active actors in the community. Although it is incremental, these strategies provide real change in people’s lives. A modest project can have a larger impact on everyday life than a prestigious project can, which may look aesthetically pleasing but is deemed useless to the majority of the population. The neoliberal hegemonic system may seem so pervasive that it is hard to imagine any alternative. Rather than tackling the entire system as a whole, incremental counter-hegemonic practices that focuses on everyday life can reveal cracks in the system that challenge the commodification of architecture and create opportunities for everyone to have a right to their own centrality.
The role of the architect is once again being challenged to not be passive, and instead be what Samuel Mockbee calls “subversive leaders and teachers”.96 He states,
“I believe that architects are given a gift of second sight and when we see something that others can’t we should act, and we shouldn’t wait for decisions to be made by politicians or multinational corporations”.97
The examples discussed above show incremental ways that architects can be active actors in the community. Although it is incremental, these strategies provide real change in people’s lives. A modest project can have a larger impact on everyday life than a prestigious project can, which may look aesthetically pleasing but is deemed useless to the majority of the population. The neoliberal hegemonic system may seem so pervasive that it is hard to imagine any alternative. Rather than tackling the entire system as a whole, incremental counter-hegemonic practices that focuses on everyday life can reveal cracks in the system that challenge the commodification of architecture and create opportunities for everyone to have a right to their own centrality.
Footnotes
- Coleman, Lefebvre for Architects (New York & London: Routledge Taylor & Francis Group, 2015).
- Kipfer, Stefan. “Urbanization, Everyday Life and the Survival of Capitalism: Lefebvre, Gramsci and the Problematic of Hegemony”. CNS, 13, no. 2 (2002): 142.
- Coleman 2015, 34.
- Lefebvre, Henri. The Production of Space. Translated by Donald Nicholson-Smith. (MA: Blackwell
Publishing. 1991).
- Harvey, David. The Condition of Postmodernity. (Cambridge, MA: Blackwell Publishers, 1989), 100.
- Harvey, David. Social Justice and the City. (Athens & London: The University of Georgia Press, 2009), 316.
- Harvey 2009, 318-319. Process of stabilizing capitalism after 1945.
- Harvey 2009, 319.
- Harvey 2009, 319.
- Harvey 2009, 319.
- Kipfer 2002, 128.
- Kipfer 2002.
- Harvey 2009, 320.
- Van der Steen, Ask Katzeef and Leendert van Hoogenhuijze. The City is Ours: Squatting and
Autonomous Movements in Europe from the 1970s to the Present. (PM Press, 2014). - Van der Steen et. al. 2014.
- Harvey, David. “Flexible Accumulation Through Urbanization Reflections on ‘Post-Modernism’ in the American City.” Perspecta 26 (1990): 255, Accessed October 20, 2020. https://wwwjstororg.ezproxy.lib.ryerson.ca/stable/1567167?pqorigsite=summon&seq=1#metadata_info_tab_contents.
- Harvey 1990, 255.
- McLeod, Mary. “Architecture and Politics in the Reagan Era: From Postmodernism to Deconstructivism”, Assemblage, no. 9 (Feb. 1989): 25.
- 19 McLeod 1989, 25.
- Harvey 1989, 68.
- McLeod 1989, 26.
- McLeod 1989, 26.
- McLeod 1989.
- Coleman 2015, 35.
- McLeod 1989.
- McLeod 1989.
- Mcleod 1989.
- McLeod 1989.
- McLeod 1989.
- McLeod 1989, 37.
- Florida 2017.
- Florida, Richard. The Rise of the Creative Class, Revisited. (New York: Basic Books. 2002).
- Florida 2017, xiv.
- Florida 2017.
- Harvey 1990.
- Florida 2017, xv.
- Florida 2017, 6.
- Harvey, David. Rebel Cities: From the Right to the City to the Urban Revolution. (London & New
York: Verso, 2013), xvii.
- Adam Smith cited in Harvey 2009, 153.
- Adam Smith cited in Harvey 2009, 153.
- Harvey 2009, 155.
- Harvey 2009.
- Harvey 2009, 155.
- Harvey 2009, 155.
- Minton, Anna. “Who is the City For”. A Right to the City: A Verso Report. (London: Verso, 2017).
- Lefebvre cited in Coleman 2015, 71.
- Harvey 1989, 100.
- Chattopadhyay, Swati. “Architectural Representations, Changing Technologies, and Conceptual Extensions,” in Journal of the Society of Architectural Historians, no. 3, no. 71 (September 2012): 271. accessed November 15, 2020. https://www.jstor.org/stable/10.1525/jsah.2012.71.3.270.
- Chattopadhyay 2012.
- Lefebvre 1991, 97.
- Coleman 2015, 58.
- Rosen, Gillad. “Toronto’s condo-builders: development approaches and spatial preferences”, in Urban Geography 38, no. 4 (2017): 606-625.
- Florida 2017.
- Rosen 2017.
- Rosen 2017.
- Counter, Rosemary. “Real estate photos are distorting reality, frustrating would-be home buyers”, Maclean’s. May 15, 2019.
- Hayes, David. “Inside Regent Park: Toronto’s test case for public-private gentrification”. The Guardian. December 8, 2016.
- August, Martine. “Social Mix and Canadian Public Housing Redevelopment: Experiences in
Toronto”. In Canadian Journal of Urban Research (2008): 82-100. Accessed October 18, 2020, https://search-proquest com.ezproxy.lib.ryerson.ca/docview/208735543?pq-origsite=summon. - August 2008. Also see August, Martine. “Challenging the Rhetoric of Stigmatization: the benefits of concentrated poverty in Toronto’s Regent Park”. Environment and Planning A, no. 46 (2014): 1317-1333. Accessed October 18. 2020, https://journals-sagepub-com.ezproxy.lib.ryerson.ca/doi/abs/10.1068/a45635.
-
August 2014, 1322.
-
August 2008, 94.
-
Regent Park Revitalization Plan, cited in August 2008, 94.
-
Coleman 2015, 24.
- Mockbee, Samuel. “Samuel Mockbee: The Rural Studio”. In Architectural Design Profile, Guest edited by Sarah Wigglesworth and Jeremy Till. no. 134 (1998): 77.
- Coleman 2015, 84.
-
Kipfer 2002, 138.
-
Coleman 2015, 10.
-
Coleman 2015, 58.
-
Coleman 2015, 58.
- Frearson, Amy. “We banned renders” from the design process says Tatiana Bilbao.” December 4, 2019 . Dezeen. accessed November 24, 2020. https://www.dezeen.com/2019/12/04/tatiana-bilbao-banned-renderings-architecture-interview/.
- Tatiana Bilbao. Hunter’s Point Masterplan. Collage, Tatiana Bilbao Estudio. accessed November 24, 2020. https://tatianabilbao.com/projects/hunters-point-masterplan.
-
Chattopadhyay 2018.
- Walker, S. Gordon Matta-Clark: Art, Architecture and the Attack on Modernism (London: I.B. Tauris & Co Ltd. 2009, 138.
- Awan, Nishat, Tatjana Schneider and Jeremy Till. Spatial Agency: Other Ways of Doing Architecture. (New York & London: Routledge Taylor & Francis Group, 2011), 94.
-
Gordon Matta Clark, Reality Properties: Fake Estates (Maspeth Onions’), 1973. In Walker 2009, 136.
-
Walker 2009.
-
Walker 2009, 138.
-
Gates, Theaster. “Stoney Island Arts Bank.” accessed November 20, 2020. https://www.theastergates.com/project-items/stony-island-arts-bank?view=slider.
- Tom Harris. Stony Island Arts Bank. Hedrick Blessing. Courtesy of Rebuild Foundation. Accessed November 26, 2020. https://www.theastergates.com/project-items/stony-island-arts-bank?view=slider.
- Wigglesworth, Sarah and Jeremy Till. “The Everyday and Architecture”. Guest edited by Sarah Wigglesworth and Jeremy Till. In Architectural Design Profile, no. 134 (1998): 7-9.
-
Wigglesworth and Till 1998, 7.
-
Awan et. al. 2011.
-
Awan et. al. 2011, 29.
-
Awan et. al. 2011.
-
USINA_ctah. accessed November 20, 2020. http://www.usina-ctah.org.br/.
- Umolu, Yesomi, Sepake Angiama and Paulo Tavares. …And Other Such Stories. Columbia Books on Architecture and the City (2019).
- Merrifield, Andy. “Fifty Years On: The Right to the City”. A Right to the City: A Verso Report. London: Verso (2017).
-
USINA_ctah.
- USINA_ctah. “TALARA”, accessed November 20, 2020. http://www.usinactah.org.br/talara.html. https://2019.chicagoarchitecturebiennial.org/current/contributors/usina_ctah
-
USINA_ctah.
-
USINA_ctah. Talara Building Section. Accessed November 26, 2020. http://www.usina-ctah.org.br/talara.html target="_blank">http://www.usina-ctah.org.br/talara.html
-
USINA_ctah. Talara Site Plan. Accessed November 26, 2020. http://www.usina-ctah.org.br/talara.html
-
USINA_ctah. Construction of Talara. Accessed November 26, 2020. http://www.usina-ctah.org.br/talara.html
- Mcleod 1989, 25.
-
Mockbee 1998, 73.
- Mockbee 1998, 73.
References
August, Martine. “Social Mix and Canadian Public Housing Redevelopment: Experiences in Toronto”. In Canadian Journal of Urban Research (2008):
82-100. Accessed October 18, 2020, https://search-proquest com.ezproxy.lib.ryerson.ca/docview/208735543?pq-origsite=summon.
August, Martine. “Challenging the Rhetoric of Stigmatization: the benefits of concentrated poverty in Toronto’s Regent Park”. Environment and
Planning A, no. 46 (2014): 1317-1333. Accessed October 18. 2020, https://journals-sagepub-com.ezproxy.lib.ryerson.ca/doi/abs/10.1068/a45635.
Awan, Nishat, Tatjana Schneider and Jeremy Till. Spatial Agency: Other Ways of Doing Architecture. New York & London: Routledge Taylor & Francis Group, 2011.
Bilbao, Tatiana. Hunter’s Point Masterplan. Collage, Tatiana Bilbao Estudio. accessed November 24, 2020. https://tatianabilbao.com/projects/hunters-point-masterplan.
Chattopadhyay, Swati. “Architectural Representations, Changing Technologies, and Conceptual Extensions,” in Journal of the Society of Architectural Historians, no. 3, no. 71. (September 2012): 270-272. accessed November 15, 2020 https://www.jstor.org/stable/10.1525/jsah.2012.71.3.270.
Coleman, Nathaniel. Lefebvre for Architects. New York & London: Routledge Taylor & Francis Group, 2015.
Counter, Rosemary. “Real estate photos are distorting reality, frustrating would-be home buyers”, Maclean’s. May 15, 2019. Accessed November 20, 2020. https://www.macleans.ca/economy/realestateeconomy/real-estate-photos-are-distorting-reality-frustrating-would-be-home-buyers/.
Florida, Richard. The Rise of the Creative Class, Revisited. New York: Basic Books. 2002.
Florida, Richard. The New Urban Crisis: How Our Cities are Increasing Inequality, Deepening Segregation, and Failing the Middle Class – and What We Can Do About It. New York: Basic Books. 2017. 25
Frearson, Amy. “We banned renders” from the design process says Tatiana Bilbao.” December 4, 2019 . Dezeen. Accessed November 24, 2020. https://www.dezeen.com/2019/12/04/tatiana-bilbao-banned-renderings-architecture-interview/.
Gates, Theaster. “Stoney Island Arts Bank.” Accessed November 20, 2020.
https://www.theastergates.com/project-items/stony-island-arts-bank?view=slider.
Harris, Tom. Stony Island Arts Bank. Hedrick Blessing. Courtesy of Rebuild Foundation. Accessed November 26, 2020. https://www.theastergates.com/project-items/stony-island-artsbank?view=slider.
Hayes, David. “Inside Regent Park: Toronto’s test case for public-private gentrification”. The Guardian. December 8, 2016.
Harvey, David. The Condition of Postmodernity. Cambridge, MA: Blackwell Publishers, 1989.
August, Martine. “Social Mix and Canadian Public Housing Redevelopment: Experiences in Toronto”. In Canadian Journal of Urban Research (2008):
82-100. Accessed October 18, 2020, https://search-proquest com.ezproxy.lib.ryerson.ca/docview/208735543?pq-origsite=summon.
August, Martine. “Challenging the Rhetoric of Stigmatization: the benefits of concentrated poverty in Toronto’s Regent Park”. Environment and
Planning A, no. 46 (2014): 1317-1333. Accessed October 18. 2020, https://journals-sagepub-com.ezproxy.lib.ryerson.ca/doi/abs/10.1068/a45635.
Awan, Nishat, Tatjana Schneider and Jeremy Till. Spatial Agency: Other Ways of Doing Architecture. New York & London: Routledge Taylor & Francis Group, 2011.
Bilbao, Tatiana. Hunter’s Point Masterplan. Collage, Tatiana Bilbao Estudio. accessed November 24, 2020. https://tatianabilbao.com/projects/hunters-point-masterplan.
Chattopadhyay, Swati. “Architectural Representations, Changing Technologies, and Conceptual Extensions,” in Journal of the Society of Architectural Historians, no. 3, no. 71. (September 2012): 270-272. accessed November 15, 2020 https://www.jstor.org/stable/10.1525/jsah.2012.71.3.270.
Coleman, Nathaniel. Lefebvre for Architects. New York & London: Routledge Taylor & Francis Group, 2015.
Counter, Rosemary. “Real estate photos are distorting reality, frustrating would-be home buyers”, Maclean’s. May 15, 2019. Accessed November 20, 2020. https://www.macleans.ca/economy/realestateeconomy/real-estate-photos-are-distorting-reality-frustrating-would-be-home-buyers/.
Florida, Richard. The Rise of the Creative Class, Revisited. New York: Basic Books. 2002.
Florida, Richard. The New Urban Crisis: How Our Cities are Increasing Inequality, Deepening Segregation, and Failing the Middle Class – and What We Can Do About It. New York: Basic Books. 2017. 25
Frearson, Amy. “We banned renders” from the design process says Tatiana Bilbao.” December 4, 2019 . Dezeen. Accessed November 24, 2020. https://www.dezeen.com/2019/12/04/tatiana-bilbao-banned-renderings-architecture-interview/.
Gates, Theaster. “Stoney Island Arts Bank.” Accessed November 20, 2020.
https://www.theastergates.com/project-items/stony-island-arts-bank?view=slider.
Harris, Tom. Stony Island Arts Bank. Hedrick Blessing. Courtesy of Rebuild Foundation. Accessed November 26, 2020. https://www.theastergates.com/project-items/stony-island-artsbank?view=slider.
Hayes, David. “Inside Regent Park: Toronto’s test case for public-private gentrification”. The Guardian. December 8, 2016.
Harvey, David. The Condition of Postmodernity. Cambridge, MA: Blackwell Publishers, 1989.
Harvey, David. “Flexible Accumulation Through Urbanization Reflections on “Post-Modernism”
in the American City.” Perspecta 26 (1990): 251-272. Accessed October 20, 2020,
https://wwwjstororg.ezproxy.lib.ryerson.ca/stable/1567167?pqorigsite=summon&seq=1#metadata_info_tab_contents.
Harvey, David. Social Justice and the City. Athens & London: The University of Georgia Press, 2009.
Harvey, David. Rebel Cities: From the Right to the City to the Urban Revolution. London & New York: Verso, 2013.
Kipfer, Stefan. “Urbanization, Everyday Life and the Survival of Capitalism: Lefebvre, Gramsci and the Problematic of Hegemony”. CNS, 13, no. 2 (2002).
Lefebvre, Henri. The Production of Space. Translated by Donald Nicholson-Smith. MA: Blackwell Publishing. 1991. Accessed November 15, 2020. https://books-scholarsportal
info.ezproxy.lib.ryerson.ca/en/read?id=/ebooks/ebooks1/ace_ia/2013-11-10/1/productionofspac00lefe&cdl=true#page=4.
McLeod, Mary. “Architecture and Politics in the Reagan Era: From Postmodernism to Deconstructivism”, Assemblage, no. 9 (Feb. 1989): 22-59. Accessed November 12, 2020. https://www.jstor.org/stable/3171013.
Merrifield, Andy. “Fifty Years On: The Right to the City”. A Right to the City: A Verso Report. London: Verso, 2017.
Minton, Anna. “Who is the City For”. A Right to the City: A Verso Report. London: Verso, 2017.
Mockbee, Samuel. “Samuel Mockbee: The Rural Studio”. In Architectural Design Profile, Guest edited by Sarah Wigglesworth and Jeremy Till. no. 134 (1998): 73-79.
Mockbee, Samuel. The Children of Eutaw Pose Before Their Ancient Cabins. Accessed November 6, 2020. http://samuelmockbee.net/work/art/eutaw/.
Rosen, Gillad. “Toronto’s condo-builders: development approaches and spatial preferences”, in Urban Geography 38, no. 4 (2017): 606-625. Accessed November 15, 2020, http://dx.doi.org/10.1080/02723638.2016.1179426.
Umolu, Yesomi, Sepake Angiama and Paulo Tavares. …And Other Such Stories. Columbia Books on Architecture and the City. 2019.
USINA_ctah. Accessed November 20, 2020. http://www.usina-ctah.org.br/.
USINA_ctah. “TALARA”, accessed November 20, 2020. http://www.usinactah.org.br/talara.html
USINA_ctah. “The Architecture of Land Struggles, 2019”. Chicago Architecture Biennial. accessed November 20, 2020. https://2019.chicagoarchitecturebiennial.org/current/contributors/usina_ctah
Van der Steen, Ask Katzeef and Leendert van Hoogenhuijze. The City is Ours: Squatting and Autonomous Movements in Europe from the 1970s to the Present. PM Press. 2014.
Walker, S. Gordon Matta-Clark: Art, Architecture and the Attack on Modernism, London: I.B. Tauris & Co Ltd. 2009.
Wigglesworth, Sarah and Jeremy Till. “The Everyday and Architecture”. Guest edited by Sarah Wigglesworth and Jeremy Till. In Architectural Design Profile, no. 134 (1998): 7-9.
Harvey, David. Social Justice and the City. Athens & London: The University of Georgia Press, 2009.
Harvey, David. Rebel Cities: From the Right to the City to the Urban Revolution. London & New York: Verso, 2013.
Kipfer, Stefan. “Urbanization, Everyday Life and the Survival of Capitalism: Lefebvre, Gramsci and the Problematic of Hegemony”. CNS, 13, no. 2 (2002).
Lefebvre, Henri. The Production of Space. Translated by Donald Nicholson-Smith. MA: Blackwell Publishing. 1991. Accessed November 15, 2020. https://books-scholarsportal
info.ezproxy.lib.ryerson.ca/en/read?id=/ebooks/ebooks1/ace_ia/2013-11-10/1/productionofspac00lefe&cdl=true#page=4.
McLeod, Mary. “Architecture and Politics in the Reagan Era: From Postmodernism to Deconstructivism”, Assemblage, no. 9 (Feb. 1989): 22-59. Accessed November 12, 2020. https://www.jstor.org/stable/3171013.
Merrifield, Andy. “Fifty Years On: The Right to the City”. A Right to the City: A Verso Report. London: Verso, 2017.
Minton, Anna. “Who is the City For”. A Right to the City: A Verso Report. London: Verso, 2017.
Mockbee, Samuel. “Samuel Mockbee: The Rural Studio”. In Architectural Design Profile, Guest edited by Sarah Wigglesworth and Jeremy Till. no. 134 (1998): 73-79.
Mockbee, Samuel. The Children of Eutaw Pose Before Their Ancient Cabins. Accessed November 6, 2020. http://samuelmockbee.net/work/art/eutaw/.
Rosen, Gillad. “Toronto’s condo-builders: development approaches and spatial preferences”, in Urban Geography 38, no. 4 (2017): 606-625. Accessed November 15, 2020, http://dx.doi.org/10.1080/02723638.2016.1179426.
Umolu, Yesomi, Sepake Angiama and Paulo Tavares. …And Other Such Stories. Columbia Books on Architecture and the City. 2019.
USINA_ctah. Accessed November 20, 2020. http://www.usina-ctah.org.br/.
USINA_ctah. “TALARA”, accessed November 20, 2020. http://www.usinactah.org.br/talara.html
USINA_ctah. “The Architecture of Land Struggles, 2019”. Chicago Architecture Biennial. accessed November 20, 2020. https://2019.chicagoarchitecturebiennial.org/current/contributors/usina_ctah
Van der Steen, Ask Katzeef and Leendert van Hoogenhuijze. The City is Ours: Squatting and Autonomous Movements in Europe from the 1970s to the Present. PM Press. 2014.
Walker, S. Gordon Matta-Clark: Art, Architecture and the Attack on Modernism, London: I.B. Tauris & Co Ltd. 2009.
Wigglesworth, Sarah and Jeremy Till. “The Everyday and Architecture”. Guest edited by Sarah Wigglesworth and Jeremy Till. In Architectural Design Profile, no. 134 (1998): 7-9.
Konner Mitchener, Nicola Caccavella, Tobi Omisore
![]()
Silo Park Community Arts Centre

The Silo Park Community Arts Centre provides a space for gathering and recreation on Toronto’s rapidly developing harbourfront. The Silo Centre turns an underutilized site on prime harbourfront land into a communal jewel in the center of a dense residential development. The Victory Mills Soya Silos are an icon from Toronto’s industrial past, now transformed into recreational, creative, and exploratory spaces accessible to the public.
The goal of the Silo Park Community Arts Centre is to give back to the community. The building provides spaces for artistic creation, learning, and recreation. Included are spaces for indoor performances, markets, outdoor exhibitions, and exploratory paths for community members to engage with the industrial relic itself. Through this design proposal, a once dilapidated and often overlooked symbol of Toronto’s historic identity becomes a lively and playful hub defining Toronto harbour’s new community identity.
The goal of the Silo Park Community Arts Centre is to give back to the community. The building provides spaces for artistic creation, learning, and recreation. Included are spaces for indoor performances, markets, outdoor exhibitions, and exploratory paths for community members to engage with the industrial relic itself. Through this design proposal, a once dilapidated and often overlooked symbol of Toronto’s historic identity becomes a lively and playful hub defining Toronto harbour’s new community identity.








Julianne Guevara & Adam Hollings
![]()
Waterfront Toronto Development: Museum of the Great Lakes

Situated on the edge of one of the five most significant sources of freshwater in the world, the Museum of the Great Lakes invites users to contemplate their relationship with water through a series of immersive experiences. Exhibitions will focus on advocacy for the Great Lakes ecosystem, educating about it’s destabilization due to invasive species, pollution, and climate change. The architecture acts as a didactic tool, exposing the water conservation system through stormwater retention on the roof, filtration throughout the building, and storage in an underground cistern which is then reused for the building’s grey water. At the junction of Parliament Street and Queens Quay, the site is the last opportunity of connection between the city and the waterfront moving east. This proposal aims to act as a gateway from the neighbourhoods to the north to the Portlands naturalization project to the south, maintaining a green space on the waterfront for the public.









Tess Macpherson &
Kavita Garg
Carbon21: Linking Threshold
![]()
Carbon21: Linking Threshold

The majority of Toronto’s waterfront is disconnected from the rest of the city due to industrial infrastructure such as the Gardiner Expressway and running parallel alongside it, the railway. The Sidewalk Labs proposal also remained isolated, turning its back to the city. Our proposal chooses to address the difficult infrastructure and the neglected space in-between the surrounding developments where sidewalk labs was proposed, to provide a better connection between the city and the waterfront, and to enhance the public realm. The under-utilized land, deemed as “junkspace” under the existing railway, is reclaimed to provide affordable art spaces for the community. Additionally, we chose to engage with the ‘oppressive experience’ under the Gardiner, with an installation called the Light Well, to create a naturally lit and humane environment for pedestrians, while also increasing the consciousness of drivers. The Light Well responds to the levels of CO2 released from car exhaust, raising awareness by making the invisible pollutants visible. The project as a whole aims to increase connectivity, reclaim urban public space, and induce a sense of slowness across the infrastructural junctions.









Sally Huang, Emily Phagoo, Rutuja Atre
The Museum of Woodwork and Watercraft
The Museum of Woodwork and Watercraft is a community hub that fosters public engagement and activity along Toronto's waterfront, fulfilling the needs of the neighbourhood as well as the city. The main programming of workshop and gallery is integrated within a network of art institutions that exist within Toronto, bringing a unique focus to the craft of woodwork. Located along the lake, the project contributes to Toronto's rich history of water-based activities, recognizing the indigenous cultures that once resided along these waterways. Driven by the intent of giving land back to the public, the building occupies a small footprint on grade to allow for a birch garden and a central water feature, generating a healthy public realm on site. A larger massing that hosts gallery functions is raised above to frame views and connect people to the natural beauty of the lake and waterfront. The project is designed with wood construction and aspires to be net-zero in operation through the application of sustainable passive and active strategies.







Zero Energy Building Design Project:
TRCA Satellite Visitors Centre and Office

As the Second Place winner for the Office Division of the 2021 Solar Decathlon Design Competition, this project proved to be resilient in being a self-sustaining Net-Zero office building. The TRCA Satellite Visitors Centre and Office is located in Vaughan, just north of Toronto at the edge of the city. It is within the Kortright Centre surrounded by pristine woodlands. This building shares surplus energy and water with the surrounding buildings to create a sustainable community. The vision of the project presents a minimal impact approach in relation to the surrounding site.
The form of the building is elevated on pile foundations, creating gentle impact and sitting lightly on the land. The goal is to set an example for future developments to follow the principle of modular design, where building components are made from modular parts for assembling, to be used to their full potential, disassembling when necessary, and finally recycled and reused. Key features of the project include mass timber construction, prefabricated modular envelope panels, a living machine, photovoltaic arrays on the roof and parking lot, a DOAS + ERV/ ASHP +VRF system, open concept workstations for promoting collaboration, optimizing for daylight use with southern exposure, light shelves, and a grand skylight crowned on top of the central staircase. One major design goal that was set and achieved includes focusing on occupant health and wellbeing.








Zero Energy Building Design: Retrofitting a City School


Retrofitting a City School approaches the restoration of the 100-year-old Our Lady of Perpetual Help Catholic Elementary School as an example for many heritage schools throughout urban centres. Our project came in 2nd place in the elementary school division of the 2021 U.S. Department of Energy Solar Decathlon Design Competition.
The design preserves the school's historic brick masonry by insulating to the interior, adds a two-storey extension to the south, and creates a welcoming entrance via a sunlit atrium. Beyond addressing existing issues, the design is aimed at Toronto Green Standard Tier 3 performance standards, and achieves net-positive energy consumption.
The design preserves the school's historic brick masonry by insulating to the interior, adds a two-storey extension to the south, and creates a welcoming entrance via a sunlit atrium. Beyond addressing existing issues, the design is aimed at Toronto Green Standard Tier 3 performance standards, and achieves net-positive energy consumption.
The design highlights the use of mass timber with glulam and dowel-laminated timber in new construction, vapour-open masonry wall assemblies, and minimal thermal bridging across the building envelope. Design also minimizes water consumption with rainwater recycling from rooftops and permeable pavements, and wastewater recycling with an on-site Living Machine. The building specs mixed-mode ventilation via a dedicated outdoor air system (DOAS), supplemented by operable windows in all rooms. The large sports field allows for geothermal energy exchange; a ground-source heat pump sends heat to the spaces via radiant flooring throughout. Fan-coil units are installed in select spaces needing additional cooling. Photovoltaic (PV) panels are installed on the large roof and a parking shading structure, and building-integrated PV (BIPV) cladding is used for the extension facade, maximizing potential electricity generation. Excess energy is sent to the grid to generate additional revenue. All energy efficiency strategies throughout the design also function as learning opportunities for students to better understand and practice sustainable design.






