Ysabel Arboleda & Ted Bulaclac
Commentary on the GTA's Missing Middle:
Commentary on the GTA's Missing Middle:
The Gateway
The streetscape of the Shoppers World site in Brampton comprises of typical tower-podium and condensed townhouse residential typologies that produces poor pedestrian experience and walkability. In comparison to Dutch urban residential ideal, the City of Brampton fails to establish lively community, circular, and commuter focused living.
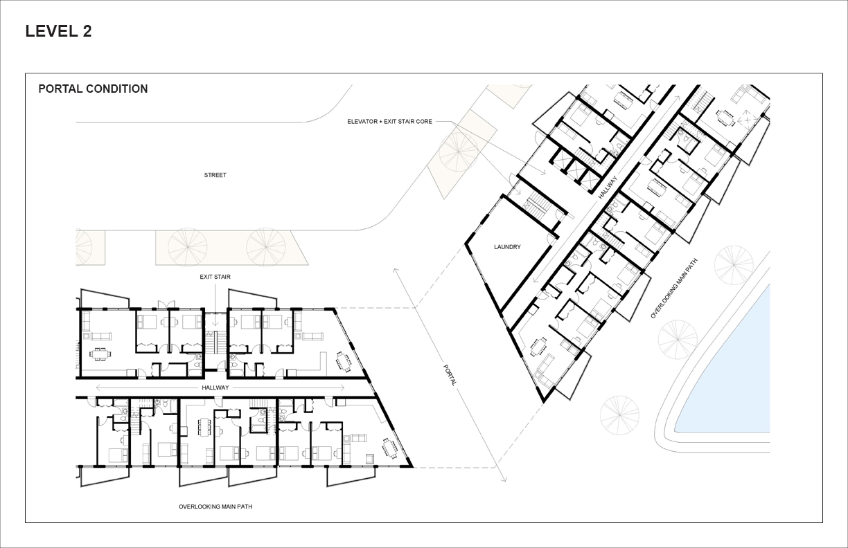
The Gateway prioritizes this pedestrian experience by creating a main communication corridor between the transit station and the community hub. The introduction of landscaping at grade through reflecting pools , grassy pits, and continuous tree lines creates a dynamic travel experience and various public gathering spaces. Larger multi-level 3 and 4 bedroom units with staggered sunrooms, and communal rooftop patios with winter gardens cater towards the large multi-generational demographic in Brampton. Constructed utilizing a sustainable light-weight Trespa panelized cladding system following a CLT structure.
The Gateway prioritizes this pedestrian experience by creating a main communication corridor between the transit station and the community hub. The introduction of landscaping at grade through reflecting pools , grassy pits, and continuous tree lines creates a dynamic travel experience and various public gathering spaces. Larger multi-level 3 and 4 bedroom units with staggered sunrooms, and communal rooftop patios with winter gardens cater towards the large multi-generational demographic in Brampton. Constructed utilizing a sustainable light-weight Trespa panelized cladding system following a CLT structure.





